Tipologia_10_2016.pptx
- Количество слайдов: 41
Типология общественных зданий лекция 9 Торговые здания. Спортивные сооружения Игорь Викторович Поповский заведущий кафедрой АГЗ доцент
ТОРГОВЫЕ ЗДАНИЯ
Торговые здания Магазины (розничная торговля) Универсамы (торговая сеть) Торгово-развлекательные центры Магазин-склад (мелкооптовая торговля) Пункт выдачи покупок
Основные группы помещений Торговые и др. помещения для обслуживания покупателей Помещения приема и хранения товаров и подготовки их к продаже Подсобные помещения Цех полуфабрикатов и/или готовой продукции Административные и бытовые помещения Технические помещения
Торговый центр «Гвоздь» бюро «Остоженка»
Магазин «Айсберг» Нижний Новгород арх. Быков
Торговый центр «Зар» на Рублевке МНИИПОКОСи. З
5. 42* В продовольственных магазинах для покупателей следует предусматривать уборные с оборудованием из расчета: один унитаз на каждые 400 м торговой площади, а в непродовольственных магазинах - на каждые 600 м , но не менее двух унитазов. Для торговых предприятий площадью торгового зала не более 150 м включительно санузлы для покупателей допускается не предусматривать. В торгово-развлекательных комплексах и центрах следует предусматривать комнату матери и ребенка из расчета одно место на 1000 покупателей (посетителей), оборудованную пеленальным столом, душевым поддоном, унитазом и умывальником. Детские игровые зоны следует размещать не выше второго этажа и не далее 20 м от эвакуационного выхода.
Пособие к СНи. П 2. 08. 02 -89 Проектирование предприятий розничной торговли СПРАВОЧНОЕ ПОСОБИЕ К СН и П МОСКВА СТРОЙИЗДАТ 1992
Рис. 1. Планировка территории магазина 1 - здание универсама; 2 - пешеходная зона; 3 - зона сезонной торговли; 4 - кафетерий (летняя посадка); 5 - хозяйственный двор; 6 - автостоянка Вблизи пешеходной зоны территория магазина и с учетом остановок городского транспорта и характера окружающей застройки следует предусматривать стоянки для легковых машин, обслуживающих покупателей. Хозяйственную зону можно изолировать от остальной территории в случае, если это предусмотрено заданием на проектирование, и использовать ее для организации процессов разгрузки и отправки товаров и грузов, размещения объектов инженерных служб (при необходимости) и для отстоя грузовых машин.
Рис. 3. Примерная схема одноэтажного универсама торговой площадью 400 - 1000 м 2 1 - торговый зал; 2 - отделы заказов и кулинарии, кафетерий; 3 - кладовые, используемые для расширения торгового зала; 4 -кладовые (в том числе для ночного завоза); 5 - охлаждаемые камеры; 6 - приемочная; 7 - прием стеклотары; 8 - служебные и бытовые помещения; 9 - подсобные помещения; 10 - технические помещения; 11 - разгрузочная платформа; 12 - площадка автомобилей, разгружающих товары (может быть защищена тентовым покрытием)
Рис. 4. Примерная схема двухэтажного универсама торговой площадью 1500 м 2 и более а - 1 этаж; б - 2 этаж; 1 - торговый зал; 2 - кафетерий, отдел кулинарии, отдел заказов; 3 - кладовые, используемые для расширения торгового зала; 4 - кладовые (в том числе для ночного завоза); 5 - охлаждаемые камеры; 6 - прием стеклотары; 7 - приемочная; 8 - разгрузочная платформа; 9 - площадка для автомобилей, разгружающих товары (может быть защищена тентовым покрытием); 10 - служебные и бытовые помещения; 11 - подсобные помещения; 12 - технические помещения; 13 - киоски; 14 - камера пищевых отходов; 15 - помещение для приема продуктов в ночное время
Рис. 5. Примерная схема универсама двухъярусной структуры торговой площадью 1500 м 2 и более а - план на отм. 2, 100; б - план на отм. 2, 100; в - план на отм. 5, 400; 1 - торговый зал; 2 - кафетерий (отдел кулинарии); 3 - отдел заказов; 4 - кладовые, используемые для, расширения торгового зала; 5 - кладовые; 6 - охлаждаемые камеры; 7 - подсобные помещения; 8 - помещения для разгрузки и погрузки; 9 -платформы для разгрузки и погрузки; 10 - прием стеклотары; 11 - технические помещения; 12 - служебные помещения; 13 - бытовые помещения
Рис. 5. Примерная схема универсама двухъярусной структуры торговой площадью 1500 м 2 и более а - план на отм. 2, 100; б - план на отм. 2, 100; в - план на отм. 5, 400; 1 - торговый зал; 2 - кафетерий (отдел кулинарии); 3 - отдел заказов; 4 - кладовые, используемые для, расширения торгового зала; 5 - кладовые; 6 - охлаждаемые камеры; 7 - подсобные помещения; 8 - помещения для разгрузки и погрузки; 9 -платформы для разгрузки и погрузки; 10 - прием стеклотары; 11 - технические помещения; 12 - служебные помещения; 13 - бытовые помещения
Рис. 6. Принципиальная схема серии унифицированных зданий магазинов различных мощностей для сельских местностей, разработанных Центросоюзпроектом на основе применения единой функционально-планировочной системы а - схема развития планировки по диагонали квадрата; б - схема планировки магазинов торговой площадью 250 м 2 и более; в - схема планировки магазинов торговой площадью до 150 м 2; 1 - торговый зал; 2 - помещения дополнительного обслуживания, 3 - прием, хранение и подготовка товаров к продаже; 4 - трансформируемые помещения хранения товаров; 5 - служебно-бытовые помещения; 6 - подсобные помещения; 7 - технические помещения; 8 – вестибюль
Рис. 7. Примерная схема специализированного двухэтажного с подвалом непродовольственного магазина торговой площадью 1000 -15000 м 2 а - II этаж; б - I этаж; в - подвальные помещения; 1 - торговый зал; 2 - помещения дополнительного обслуживания покупателей; 3 - кладовые, используемые для расширения торговых залов; 4 -кладовые; 5 - подсобные помещения; 6 - кладовые крупногабаритных товаров; 7 - служебные и бытовые помещения; 8 - зал собраний и красный уголок; 9 - кладовые тары; 10 - технические помещения; 11 - площадка для автомобилей, разгружающих товары; 12 - разгрузочная платформа
Рис. 9. Примерная схема основных эвакуационных проходов и выходов из торгового зала 1 - основные эвакуационные проходы; 2 - направления движения покупателей; 3 - наиболее удаленная точка торгового зала до ближайшего выхода из торгового зала
Рис. 8. Примерные схемы централизации расчетных узлов а, б - линейные расчетные узлы; в - "шведский" расчетный узел; 1 - кассовая кабина; 2 - кассовый аппарат; 3 - стол для упаковки; 4 - прилавок - секция для хранения вещей; 5 - тележки, корзины; 6 - горка
СПОРТИВНЫЕ СООРУЖЕНИЯ
Нормативы 1. СП 31 -112 -2004 Физкультурно-спортивные залы. Часть 1 часть первая включает физкультурно-спортивные залы размером до 36 х18 м, а также залы 42 х24 м - для спортивной гимнастики; 2. СП 31 -112 -2004 Физкультурно-спортивные залы. Часть 2 часть вторая включает физкультурно-спортивные залы и манежи размером 42 х24 м и более, а также залы 36 х18 м и более для универсального использования
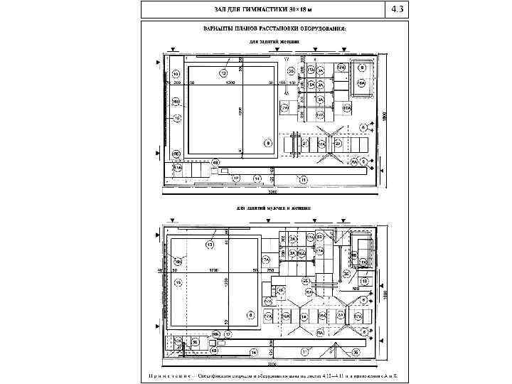
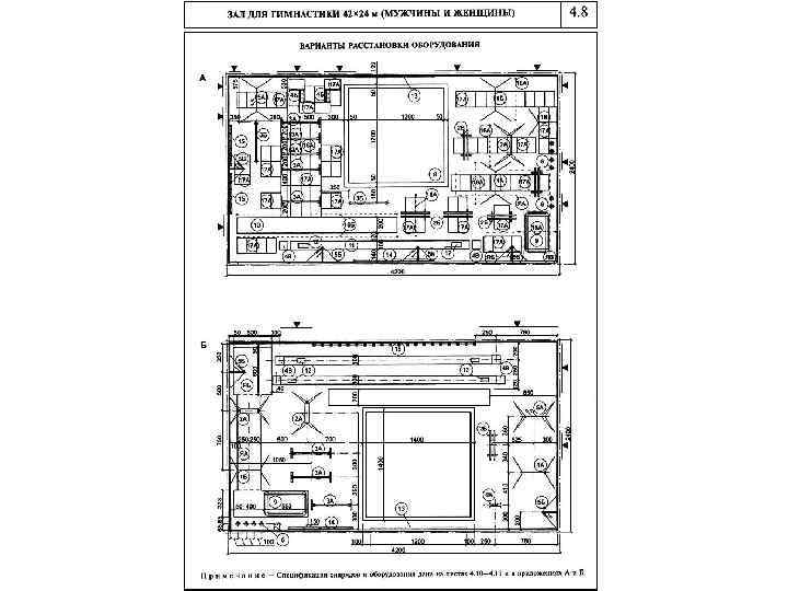
СП 31 -112 -2004 Физкультурно-спортивные залы. Часть 1 Таблица 3. 1 Вид спорта Строительные размеры зала для учебнотренировочных занятий, м Пропускная способность игровой площадки Длина Ширина Минимальная высота до низа выступающих конструкций При учебносоревнования тренирох на аренах вочных спортивнозанятиях в демонстрацио зале, чел. / нных или смену спортивнозрелищных залов, чел. /смену 1. Акробатика 36 18 6 32 2. Бадминтон. На одну площадку 15 9 7 3. Баскетбол. На одну площадку 30 18 7 Размеры арены для соревнований в спортивно-демонстрационном или спортивно-зрелищном зале, м Длина Ширина Минима льная высота (в предела х площади арены) 75 44 21 7 8 8 18 10 9 24 48 34 19 7 (4 команды по 12)
СП 31 -112 -2004 Физкультурно-спортивные залы. Часть 1 Таблица 3. 1 Вид спорта Строительные размеры зала для учебнотренировочных занятий, м Пропускная способность игровой площадки Длина 4. Бокс. На один ринг Ширина Минимальная высота до низа выступающих конструкций При учебносоревнования тренирох на аренах вочных спортивнозанятиях в демонстрацио зале, чел. / нных или смену спортивнозрелищных залов, чел. /смену 18 12 4 17 24 15 4 30 Размеры арены для соревнований в спортивно-демонстрационном или спортивно-зрелищном зале, м Длина Ширина Минима льная высота (в предела х площади арены) 20 14 14 5 20 (на каждый ковер) 18 18 5 5. Борьба: * греко-римская, вольная, самбо. На один ковер диаметром 9 м или два ковра диаметром 7 м (на один ковер диаметром 9 м)
СП 31 -112 -2004 Физкультурно-спортивные залы. Часть 1 Таблица 3. 1 Вид спорта Строительные размеры зала для учебнотренировочных занятий, м Пропускная способность игровой площадки Длина Ширина Минимальная высота до низа выступающих конструкций При учебносоревнования тренирох на аренах вочных спортивнозанятиях в демонстрацио зале, чел. / нных или смену спортивнозрелищных залов, чел. /смену 6. Волейбол. На одну площадку 24 15 8 24 7. Гимнастика спортивная 30 18 6 8. Гимнастика художественная. На одну площадку 21 15 9. Теннис. На одну площадку** 36 18 Размеры арены для соревнований в спортивно-демонстрационном или спортивно-зрелищном зале, м Длина Ширина Минима льная высота (в предела х площади арены) 48 (4 команды по 12) 36 21 12, 5 50 75 48 24 7 8 10 50 31 18 9 8 12 8 (4 пары) 42 22 9
СП 31 -112 -2004 Физкультурно-спортивные залы. Часть 1 Таблица 3. 1 Вид спорта Строительные размеры зала для учебнотренировочных занятий, м Длина 10. Теннис настольный. На три стола Ширина Минимальная высота до низа выступающих конструкций 15 9 4 Пропускная способность игровой площадки При учебносоревнования тренирох на аренах вочных спортивнозанятиях в демонстрацио зале, чел. / нных или смену спортивнозрелищных залов, чел. /смену 4 (на каждый 8 (на каждый стол) Размеры арены для соревнований в спортивно-демонстрационном или спортивно-зрелищном зале, м Длина Ширина Минима льная высота (в предела х площади арены) 12 -14 6 -7 4 (на каждый стол) 11. Тяжелая атлетика. На четыре помоста 18 9 4 16 40 (на один помост) 13 13 (на один помост) 5
СП 31 -112 -2004 Физкультурно-спортивные залы. Часть 1 Таблица 3. 1 * Длина арены при двух коврах диаметром 9 м принимается 32 м, при трех - 46 м, при четырех - 60 м, при двух "татами" принимается 36 м, при трех - 52 м, при четырех - 68 м, а пропускная способность соответственно 40, 60 и 80 чел. ** Высота помещения для досуговых занятий и школ - 7 м, для международных соревнований - 12 м. На расстоянии 6, 4 м за задней линией площадки допускается снижение высоты до 3 м. Примечания: 1. По видам спорта, по которым в спортивно-демонстрационных или спортивно-зрелищных залах предусматривается также и проведение учебно-тренировочных занятий, пропускная способность принимается по наибольшему из показателей, приведенных в гр. 5 и 6. 2. При предназначении зала для соревнований не выше регионального масштаба размер площади арены и высота, как правило, принимаются равными размеру площади и высоте спортивного зала (см. гр. 2, 3 и 4), а пропускная способность согласно гр. 5. 3. Поскольку в зданиях спортивных корпусов предусматривается помещение для индивидуальной силовой подготовки в залах для бокса и борьбы размещение тренажеров и другого вспомогательного оборудования для физической подготовки не рекомендуется. В этих случаях размер зала бокса уменьшается до 15 х12 м, а пропускная способность - до 14 чел. /смену. 4. В зале для борьбы, приведенном в таблице, могут разместиться два спаренных ковра диаметром 7 м для учебнотренировочных занятий начинающих и борцов младших разрядов или один ковер оптимального диаметра 9 м. При выносе из зала вспомогательного оборудования размер зала с ковром диаметром 9 м уменьшается до 18 х15 м с пропускной способностью 12 чел. , а со спаренными коврами диаметром 7 м - до 24 х12 м с пропускной способностью 13 чел. /смену. В последнем случае стены зала у ковров до высоты 1, 8 м должны иметь мягкую обивку. 5. В зале для спортивной гимнастики проведении одновременных занятий мужчин и женщин место для вольных упражнений предусматривается общим. 6. В залах для настольного тенниса при большем числе столов размер зала принимается исходя из размеров площадки 7, 75 х4, 5 м на каждый стол. 7. Строительные размеры и пропускная способность приняты исходя из одного комплекта табельного оборудования.
3. 5 Высота вспомогательных помещений (от пола до потолка) принимается, как правило, 3, 0 м. В зависимости от архитектурнопланировочного и конструктивного решения и технологических требований, а также при размещении вспомогательных помещений в подтрибунном пространстве высоту помещений возможно снижать, но не более (в чистоте, до низа выступающих конструкций): в гардеробных верхней и домашней одежды (за барьером) - 2, 1 м; в помещениях для судей и прессы - 2, 4 м; в остальных помещениях (кроме вестибюля) - 2, 7 м
3. 7 Залы для тяжелой атлетики, а также помещения для индивидуальной силовой подготовки рекомендуется размещать на первом этаже. Залы для гимнастики размещаются, как правило, на первом этаже здания с устройством пола по грунту. При необходимости размещения на втором (и выше) этаже или над подвалом следует предусматривать такую конструкцию перекрытия, которая позволяла бы устраивать в зале ямы под снарядами. В исключительных случаях (например, при реконструкции зданий) ямы можно не устраивать. Залы для спортивных игр, бокса, борьбы, общей физической подготовки (ОФП), аэробики и помещения для тренажеров допускается размещать на любом этаже здания
3. 8 Инвентарные при спортивных залах должны располагаться смежно с этими залами и сообщаться с ними через проемы. Пол инвентарной устраивается на одной отметке с полом зала без порога. 3. 9 Раздевальные для занимающихся должны, как правило, непосредственно примыкать к спортивному залу. Допускается сообщение между ними через коридор или по лестнице, которые предназначаются только для перемещения спортсменов
Спасибо за внимание! 11. 02. 2018
Tipologia_10_2016.pptx