Поповский Tipologia_8_2016 .pptx
- Количество слайдов: 103
Типология общественных зданий лекция 3 Образовательные учреждения: Детские образовательные учреждения (детские сады и ясли) Школы ВУЗы Игорь Викторович Поповский заведущий кафедрой АГЗ доцент
ДЕТСКИЕ ДОШКОЛЬНЫЕ ОБРАЗОВАТЕЛЬНЫЕ УЧРЕЖДЕНИЯ ДОУ
Нормы Сан. Пи. Н 2. 4. 1. 1249 -03 2. 4. 1. ГИГИЕНА ДЕТЕЙ И ПОДРОСТКОВ. ДЕТСКИЕ ДОШКОЛЬНЫЕ УЧРЕЖДЕНИЯ. САНИТАРНО-ЭПИДЕМИОЛОГИЧЕСКИЕ ТРЕБОВАНИЯ К УСТРОЙСТВУ, СОДЕРЖАНИЮ И ОРГАНИЗАЦИИ РЕЖИМА РАБОТЫ ДОШКОЛЬНЫХ ОБРАЗОВАТЕЛЬНЫХ УЧРЕЖДЕНИЙ
Предельная наполняемость групп 1. 7. Количество и соотношение возрастных групп детей ДОУ во вновь строящихся ДОУ определяется заданием на проектирование, исходя из их предельной наполняемости: для ясельного возраста · от 2 месяцев до 1 года - не более 10 человек; · от 1 года до 3 лет - не более 15 человек; · при наличии в группе детей двух возрастов (от 2 мес. до 3 лет) - 8 человек; для дошкольного возраста · для детей 3 - 7 лет - не более 20 человек (оптимальная 15 человек); · в разновозрастных группах при наличии в группе детей любых трех возрастов (3 - 7 лет) - не более 10 человек; · при наличии в группе детей любых двух возрастов (3 - 7 лет) - не более 20 человек (оптимальная - 15 человек).
Вместимость ДОУ Не более 350 мест Пристроенных к торцам жилых домов и встроенных – не более 150 мест Для сельских мест и поселков городского типа – не более 140 мест
Радиус пешеходной доступности В городах не более 300 м Для сельских мест и поселков городского типа – не более 500 мест
Площадь земельного участка ДОУ Функциональные зоны 40 м 2 на 1 место при вместимости до 100 мест 35 м 2 на 1 место для встроенного ДОУ 29 м 2 на 1 место при вместимости более 100 мест ФУНКЦИОНАЛЬНЫЕ ЗОНЫ Зона застройки Зона игровой территории Хозяйственная зона
Зона игровой территории включает: групповые площадки - индивидуальные для каждой группы - из расчета не менее 7, 2 м 2 на 1 ребенка ясельного возраста и не менее 9, 0 м 2 на 1 ребенка дошкольного возраста; общую физкультурную площадку. Групповые площадки соединяют кольцевой дорожкой шириной 1, 5 м по периметру участка (для езды на велосипеде, хождения на лыжах, изучения правил дорожного движения). Для защиты детей от солнца и осадков на территории каждой групповой площадки устанавливают теневой навес площадью не менее 40 м 2. Площадь озеленения территории ДОУ должна составлять не менее 50 %.
Санитарные разрывы: не менее 3 м между групповыми площадками, между групповой и физкультурной площадками; не менее 6 м между групповой и хозяйственной площадками, между общей физкультурной и хозяйственной площадками; не менее 2 м между ограждением участка и групповыми или общей физкультурной площадками.
────┬───────────────────────────────── N │ Помещения │ Ориентация окон помещений по расчетным п. п. │ │ географическим поясам северной широты │ ├────────────────┬───────── │ │ севернее 60° │ 60 - 45° │ южнее 45° │ ├───────┬────────┼────┬──── │ │опти- │допу│опти│допу│ │мальная│стимая в│мальная │стимая в │ │ │азимутах│ │азимутах ────┼─────────┼───────┼────────┼──────── 1 │ 2 │ 3 │ 4 │ 5 │ 6 │ 7 │ 8 ────┼─────────┼───────┼────────┼──────── 1 │Групповая │ Ю │ От 70° │ Ю │ От 85° │ Ю │ От 25° │ │ │до 290° │ │до 275° │ │до 335° 2 │Спальня │ В │ Любая │ С │ Любая 3 │Зал для │ Ю │ " │музыкальных и │ │ │ │гимнастических │ │ │ │занятий, палаты │ │ │ │изолятора, комната│ │ │ │с ванной для │ │ │ │массажа, физио│ │ │ │терапевтический │ │ │ │кабинет │ │ │ 4 │Кухня, │ С │ Любая │заготовочный и │ │ │ │доготовочный цехи │ │ │ 5 │Медицинская │ В │ " │и процедурная │ │ │ │комнаты │ │ │
Здания ДОУ включают: групповые ячейки - изолированные помещения, принадлежащие каждой детской группе; специализированные помещения для занятий с детьми, предназначенные для поочередного использования всеми или несколькими детскими группами; сопутствующие помещения (медицинские, пищеблок, постирочная); служебно-бытовые помещения для персонала.
В состав групповой ячейки входят: : раздевальная (приемная для детей ясельного возраста) групповая (игровая) спальня Буфетная Туалетная (умывальная).
МЛАДШАЯ ЯСЕЛЬНАЯ ГРУППА И-С СП-В Б Т ПР
СРЕДНЯЯ И СТАРШАЯ ЯСЕЛЬНАЯ ГРУППА И-С СП-В Б Т ПР
СРЕДНЯЯ И СТАРШАЯ ЯСЕЛЬНАЯ ГРУППА ГР СП-В Б У Т Р
В состав групповой ячейки входят: раздевальная (приемная) - площадью не менее 18 м 2; в IA, IБ и IГ климатических подрайонах площадь раздевальных не менее 20 м 2; групповая (игровая) - площадью не менее 50 м 2 (для ясельных групп из расчета не менее 2, 5 м 2 на 1 ребенка, в дошкольных группах не менее 2, 0 м 2); буфетная - площадью не менее 3, 8 м 2; спальня - площадью не менее 50 м 2 (для ясельных групп из расчета не менее 1, 8 м 2 на 1 ребенка, для дошкольников - не менее 2, 0 м 2)*. Для районов Крайнего Севера площади раздевальной (приемной) и спален детей ясельного возраста должны быть увеличены на 10 %; туалетная - площадью не менее 16 м 2 (для ясельных групп из расчета не менее 0, 8 м 2 на 1 ребенка).
Специализированные помещения для занятий с детьми : Зал для музыкальных занятий – 75 м 2 Зал для физкультурных занятий - 75 м 2 допускается размещение плавательного бассейна с ванной 3 6 (7) м или 6 10 (12, 5) м и переменной глубиной от 0, 6 до 0, 8 м
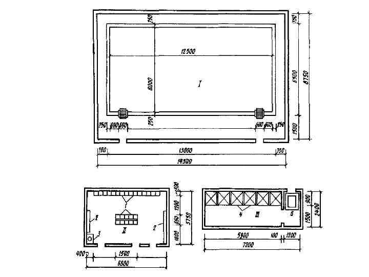
Расстановка оборудования в залах специализированных детских учреждении а - для физкультурных занятий детей; б - то же, с нарушением опорно-двигательного аппарата; в - для музыкальных занятий; 1 - стенка гимнастическая; 2 - канат; 3 - кольцо для пролезания; 4 - мостиккачалка; 5 - скамья гимнастическая; 6 стойка для игровых пособий; 8 - зеркало; 9 - ковер; 10 шкаф для спортинвентаря; 11 - стеллаж; 12 - пианино; 13 табурет для пианино; 14 - стул детский; 15 - стол; 16 - магнитофон; 17 - геометрический или цветовой рисунок пола; 18 - шкаф для пособий
Схема функциональной взаимосвязи помещений бассейна 1 - бассейн; 2 - раздевальня; 3 - зал для подготовительных занятий; 4 - душ; 5 - методический кабинет, класс; 6 - вестибюль; 7 - административно-бытовые помещения
Сопутствующие помещения : Медпункт: медицинский кабинет, процедурная, изолятор (число мест 1, 5% от вместимости ДОУ) Пищеблок Постирочная: в ДОУ вместимостью до 50 мест постирочная может иметь одно помещение, свыше 50 мест - 2 помещения (стиральная и гладильная).
Ограждения лестниц: Высота ограждений лестниц, используемых детьми, должна быть не менее 1, 2 м, а в дошкольных учреждениях для детей с нарушением умственного развития - 1, 8 или 1, 5 м при сплошном ограждении сеткой. Расстояние между вертикальными элементами ограждения лестницы не более 10 см, горизонтальные в детских учреждениях нельзя.
10. 02. 2018 27
10. 02. 2018 28
10. 02. 2018 29
10. 02. 2018 30
10. 02. 2018 31
10. 02. 2018 32
Детские ясли. Утрехт, Нидерланды
ОБЩЕОБРАЗОВАТЕЛЬНЫЕ УЧРЕЖДЕНИЯ
Типология общеобразовательных учреждений: - общеобразовательные с углубленным изучением - специализированные (художественные, музыкальные) - для детей с умственными и физическими отклонениями - школы-интернаты профессиональные училища ВУЗы
СНи. П 31 -06 -2009 П. 4. 2 Площади основных учебных помещений общеобразовательных учебных заведений (в дальнейшем - школы), учреждений начального и среднего профессионального образования, учреждений высшего профессионального образования (в дальнейшем - высшие учебные заведения) следует принимать по таблице 4. 2.
Нормы: Сан. Пи. Н 2. 4. 2. 1178 -02 «Гигиенические требования к условиям обучения в общеобразовательных учреждениях» СП 35 -117 -2006 «Свод правил по проектированию и строительству домаинтернаты для детей-инвалидов»
Размеры земельных участков школ Общеобразова│тельные школы, │учащиеся │ │ │ │ │Следует принимать с │При вместимости │Размеры земельных │ │учетом 100%-ного │общеобразовательной школы, │участков школ могут │ │охвата детей неполным│учащихся <***>: │быть: уменьшены на 40% в│ │средним образованием │св. 40 до 400 50 м 2 │климатических подрайонах│ │(I - IX классы) и до │ на 1 учащегося│IА, IБ, IГ, IД и IIА, на│ │75% детей - средним │ " 400 " 500 60 " │20% - в условиях │ │образованием │ " 500 " 600 50 " │реконструкции; │ │(X - XI классы) │ " 600 " 800 40 " │увеличены: на 30% - в │ │при обучении │ " 800 " 1100 33 " │сельских поселениях, │ │в одну смену. │ " 1100 " 1500 21 " │если для организации │ │В поселениях│ " 1500 " 2000 17 " │учебно-опытной работы не│ │новостройках │ " 2000 " 16 " │предумотрены специальные│ │необходимо принимать │ │участки на землях │ │не менее 180 мест на │ │совхозов и колхозов. │ │1 тыс. чел. │ │Спортивная зона школы │ │может быть объединена │ │с физкультурно│ │ │ │оздоровительным │ │комплексом микрорайона ("СП 42. 13330. 2011. Свод правил. Градостроительство. Планировка и застройка городских и сельских поселений. Актуализированная редакция СНи. П 2. 07. 01 -89*" (утв. Приказом Минрегиона РФ от 28. 12. 2010 N 820))
Радиус доступности школ: во II и III строительно-климатических зонах, предусматривается не более 0, 5 км пешеходной доступности или транспортной доступности: для обучающихся I ступени обучения - 15 мин (в одну сторону). В сельской местности размещение для обучающихся I ступени обучения радиус доступности не более 2 км пешком и при транспортной доступности не более 15 мин (в одну сторону) при транспортном обслуживании.
Требования к участку школ: Удаление зданий школ от межквартальных проездов с регулярным движением транспорта на расстояние 100 - 170 м Территория участка ограждается забором высотой 1, 5 м и вдоль него - зелеными насаждениями Озеленение участка предусматривается из расчета не менее 50 % площади его территории. Физкультурно-спортивная зона размещается на расстоянии не менее 25 м от здания учреждения, за полосой зеленых насаждений Хозяйственная зона располагается со стороны входа в производственные помещения столовой (буфета) на границе участка на расстоянии от здания школы не менее 35 м, ограждается зелеными насаждениями и имеет самостоятельный въезд с улицы. Мусоросборники обеспечиваются плотно закрывающимися крышками. Их следует устанавливать на бетонированной площадке на расстоянии не менее 25 м от окон и входа в столовую (буфет).
Вместимость школ: Вместимость вновь строящихся городских общеобразовательных учреждений не должна превышать 1000 человек. Наполняемость каждого класса не должна превышать 25 человек. Высота здания общеобразовательного учреждения не должна превышать 3 этажей. Допускается в условиях плотной застройки городов строительство учреждений высотой в 4 этажа.
Учебные помещения: Площадь кабинетов принимается из расчета 2, 5 м 2 на одного обучающегося при фронтальных формах занятий, 3, 5 м 2 - при групповых формах работы и индивидуальных занятиях. Учебные помещения включают: рабочую зону (размещение учебных столов для обучающихся), рабочую зону учителя, дополнительное пространство для размещения учебно-наглядных пособий, технических средств обучения (ТСО), зону для индивидуальных занятий обучающихся и возможной активной деятельности.
При оборудовании учебных помещений соблюдаются следующие размеры проходов и расстояния между предметами оборудования (см): · между рядами двухместных столов - не менее 60; · между рядом столов и наружной продольной стеной - не менее 50 - 70; · между рядом столов и внутренней продольной стеной (перегородкой) или шкафами, стоящими вдоль этой стены - не менее 50 - 70; · от последних столов до стены (перегородки), противоположной классной доске, - не менее 70, · от задней стены, являющейся наружной, - не менее 100; а при наличии оборотных классов - 120; · от демонстрационного стола до учебной доски - не менее 100; · от первой парты до учебной доски -240 - 270; · наибольшая удаленность последнего места обучающегося от учебной доски - 860;
Спортивные залы (размещение на 1 этаже в пристройке). Площади спортивных залов приняты 9 х 18 м, 12 24 м, 18 30 м при высоте не менее 6 м. При спортивных залах должны быть предусмотрены: снарядные, площадью 16 - 32 м 2 в зависимости от площади спортзала; раздевальные для мальчиков и девочек, площадью 10, 5 м 2 каждая; душевые, площадью 9 м 2 каждая; уборные для девочек и мальчиков, площадью 8 м 2 каждая; комната для инструктора, площадью 9 м 2.
Актовые залы Размеры актового зала определяются числом посадочных мест из расчета 0, 65 м 2 на одно место и 60 % от общего количества обучающихся учреждения. При актовом зале предусматриваются: артистические уборные, площадью не менее 10 м 2 каждая, кинопроекционная, площадью 27 м 2, склад декораций и бутафории, музыкальных инструментов, площадью 10 м 2, склад хранения костюмов, площадью 10 м 2.
Библиотеки (площади м 2) в школах и учреждениях начального профессионального образования. . . 0, 6; в учреждениях среднего профессиональ ного образования. . . 0, 8; в высших учебных заведениях: технического профиля. . . . . 1, 1;
Библиотеки В помещении библиотеки предусматриваются следующие зоны: читательские места, информационный пункт (выдача и прием литературы), места для работы с каталогами, фонды открытого доступа, фонды закрытого хранения, зона с кабинками для индивидуальных занятий с ТСО(технич. ср-в обуч. ), боксы для хранения передвижных тележек.
Медпункт общеобразовательного учреждения включает: кабинет врача длиной не менее 7 м (для определения остроты слуха и зрения обучающихся), площадью не менее 14 м 2; кабинет зубного врача, площадью 12 м 2, оборудованный вытяжным шкафом; процедурный кабинет, площадью 14 м 2; кабинет психолога, площадью 10 м 2.
Площадь обеденного зала (без раздаточной) следует принимать по расчетному показателю площади на одно посадочное место в зале, не менее, м 2: в школах (на 1/3 численности учащихся, преподавателей, администрации): до 80 мест в зале. . . . . 0, 75; на 80 и более мест в зале. . . 0, 7; в учреждениях начального профессиональ ного образования. . . 0, 8; в учреждениях среднего профессиональ ного образования. . . 1, 3; при высших учебных заведениях. . 1, 8;
Санузлы (на каждом этаже): Количество санитарных приборов определяется из расчета 1 унитаз на 20 девочек, 1 умывальник на 30 девочек, 1 унитаз, 0, 5 лоткового писсуара и 1 умывальник на 30 мальчиков. Площадь санитарных узлов для мальчиков и девочек следует принимать из расчета не менее 0, 1 м 2 на одного обучающегося. Для персонала выделяется отдельный санузел.
ШКОЛА № 1414 С УГЛУБЛЕННЫМ ИЗУЧЕНИЕМ АНГЛИЙСКОГО Авторы Президент ЗАО «АРСТ» , Руководитель проекта - Коновальцев ЯЗЫКА по адресу: Москва, СВАО, ул. Советской Армии, д. 9 К. М. ; Главный архитектор - Коновальцев О. К. ; Главный конструктор - Рубинштейн А. А. ; Архитектор - Тищенко О. Н. ; Заказчик: ОАО “Москапстрой”, ЗАО “УКС-5 10. 02. 2018 53
10. 02. 2018 54
10. 02. 2018 55
МАОУ "Школа дизайна "Точка" г. Перми. 10. 02. 2018 56
Начальная школа Heathfield, проектное бюро Holmes Miller Architect, г. Эр, Шотландия, реставрация и реконструкция в 2010 г. Общая площадь проекта составляет 4, 183 кв. м. 10. 02. 2018 57
10. 02. 2018 58
10. 02. 2018 59
10. 02. 2018 60
10. 02. 2018 61
10. 02. 2018 62
10. 02. 2018 63
10. 02. 2018 64
«Зеленая» школа в Париже, студия Chartier Dalix Architectes 10. 02. 2018 65
10. 02. 2018 66
10. 02. 2018 67
10. 02. 2018 68
10. 02. 2018 69
10. 02. 2018 70
Архитектурное бюро: Mikou Design Studio Расположение: Бобиньи, Франция 10. 02. 2018 71
10. 02. 2018 72
10. 02. 2018 73
10. 02. 2018 74
10. 02. 2018 75
На стыке городского и природного пейзажей, в городе Сен-Дени, появилась яркая, разноцветная школа, построенная по проекту французского бюро Mikou Studio. 10. 02. 2018 76
10. 02. 2018 77
10. 02. 2018 78
10. 02. 2018 79
10. 02. 2018 80
10. 02. 2018 81
Новая “Зеленая школа” в Стокгольме (Швеция) датская архитектурная компания 3 XN Architects 10. 02. 2018 82
10. 02. 2018 83
10. 02. 2018 84
Рандич, Турато. Начальная школа Fran Krsto Francopan Крк. Хорватия
Стивен Холл. Школа искусств и истории искусств Университета Айовы Айова-Сити, США
Школа-интернат для детей-сирот в г. Кожухове. Г. Москва Арх. мастерская «Атриум»
Эрестадская гимназия. г. Копенгаген. Арх. бюро 3 ХN
Физический институт университета Гумбольдта, Берлин. Augustin & Frank
Центр для студентов старших курсов Metropoliten University. Лондон. Даниэль Либескинд
Спасибо за внимание! 10. 02. 2018
Поповский Tipologia_8_2016 .pptx