Sam_rabota_2_3_kurs.pptx
- Количество слайдов: 31
Самостоятельная работа № 2 ОСНОВНЫЕ НЕСУЩИЕ СИСТЕМЫ ГРУППА В – ЗО 2, 2014 ГОД МАТЕРИАЛ ПРЕДСТАВЛЕН В ДВУХ ЧАСТЯХ
Часть первая. В этой части задания все макеты выполняются из белого ватмана. И самые тонкие детали тоже. Просто ставить на ребро для уменьшения ощущения массивности, чтобы не искажать масштаб. Высоту условного деления на этажи (или как в книге говорят – ярусы) нужно принять у всех макетов этой группы одинаковой -8 мм. Величина шага на плане примерно в два раза больше, если посмотреть по пропорциям изображения. Количество этажей у всех макетов можно сократить. См. на листах соответственно. Уровень пола на отметке ноль у всех макетов отсутствует. Приклеить стойки можно на белый прямоугольник, равный контуру макета. Основание не делать. На компьютере (не вручную) выполнить ярлычок размером 15 х45 мм, где указать тип семейства конструкций, номер группы и свои данные. Ярлычок приклеить вертикально внизу к ребру дома.
Основные системы концентрации и передачи нагрузок (горизонтальная концентрация)
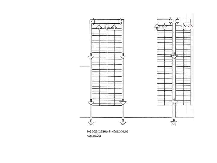
Соколова С. План можно сделать 3 х4 ячейки, ярусов - 12
Бахуров Р. Количество ярусов можно 16
Юланова Ю. Сократить количество ярусов до 16
Сибирцева В.
Рогулина М. Нижний блок из 8 ярусов , а верхний - из 5
Ульянов И.
Назарова А.
Мельничук Н.
Системы косвенной вертикальной передачи нагрузок. Растровая концентрация. Мостовые высотные сооружения. Поэтажно сконцентрированные над опорами нагрузки можно направить через ванты наверх, где поперечная балка передаст нагрузки на центральные или переферийные пилоны
Вильданова Г. Можно сократить : в плане – два пролета, а не три; соответственно и другой размер плана - две ячейки убрать, чтобы квадрат примерно сохранить в плане.
Григорьев К. Можно сделать только одну секцию. Квадрат в плане 3 х3 ячейки. В высоту тоже убавить. Средний блок из 7 ярусов убрать.
Давыдова З.
Елисеева С.
Часть вторая. Все макеты из этой группы выполняются : внешние контуры из пленки (для растровых и стволовых типов пленка прозрачная с нанесением делений легким процарапыванием; для оболочкового типа – пленка матовая или дымчатая. Уровни выполняются из белого ватмана. Все подробности этих уровней начертить. Готовая модель не имеет основания. На компьютере (не вручную) выполнить ярлычок размером 15 х45 мм, где указать тип семейства конструкций, номер группы и свои данные. Ярлычок приклеить вертикально внизу к ребру дома. Размеры см. на листах. Для выполнения макета необходимо предварительно вычертить недостающие проекции.
ДИФФЕРЕНЦИАЦИЯ ГЕОМЕТРИИ ВЕРТИКАЛЬНЫХ ПРОЕКЦИЙ В ВЫСОТНЫХ СООРУЖЕНИЯХ Размер: план 30 х30 мм, общая высота 200 мм 1. ПРИМЕРЫ БАШЕННЫХ ФОРМ В РАСТРОВОЙ СИСТЕМЕ Гизатуллина Э.
1. ПРИМЕРЫ БАШЕННЫХ ФОРМ В РАСТРОВОЙ СИСТЕМЕ Мартьянова М. Размеры: план 30 х30 мм; общая высота 210 мм Муллахматова Р.
1. ПРИМЕРЫ БАШЕННЫХ ФОРМ В РАСТРОВОЙ СИСТЕМЕ Гомозова Е. Размеры: план - сторона треугольника нижнего – 40 мм; диаметр круга для шестигранника – 40 мм; высота 220 мм Марушкин В.
Яушев И. 2. ПРИМЕРЫ ФОРМ БАШЕН В СИСТЕМЕ С ОБОЛОЧКАМИ Размеры: диаметр 35 мм, квадрат 30 х30 мм; Высота – 200 мм. Силин Д.
Соколова А. 3. ПРИМЕРЫ ФОРМ БАШЕН В СТВОЛЬНОЙ СИСТЕМЕ Размеры: ствол 8 мм; Большие квадраты 35 х35 мм; высота 210 мм. Сутормина А. Остальные все размеры по пропорциям.
4. ПРИМЕРЫ ФОРМ НАРУЖНЫХ СТЕН В РАСТРОВОЙ СИСТЕМЕ Размеры: высота 180 мм; Модуль плана 7 мм Белова А. , Чертищева М.
4. ПРИМЕРЫ ФОРМ НАРУЖНЫХ СТЕН В РАСТРОВОЙ СИСТЕМЕ Размеры: высота 180 мм; Модуль плана 7 мм Дубынин А
4. ПРИМЕРЫ ФОРМ НАРУЖНЫХ СТЕН В РАСТРОВОЙ СИСТЕМ Размеры: высота 180 мм; Модуль плана 7 мм Кошелева Е. , Маргунова Л.
4. ПРИМЕРЫ ФОРМ НАРУЖНЫХ СТЕН В РАСТРОВОЙ СИСТЕМЕ Сторона треугольника – модуль 10 мм; Высота 200 мм. Жилин А. , Иванисько А.
Sam_rabota_2_3_kurs.pptx