Брюки.ppt
- Количество слайдов: 40
РАСЧЕТ И ПОСТРОЕНИЕ ЧЕРТЕЖА КОНСТРУКЦИИ ЖЕНСКИХ БРЮК ПО МЕТОДИКЕ ЦОТШЛ ПЛАН 1. Общая характеристика форм и конструкций брюк 2. Характеристика брюк классической формы 3. Выбор исходных данных 4. Построение передней половинки брюк 5. Построение задней половинки брюк
Модели брюк различных форм и конструкций
Характеристика брюк классической формы
ИСХОДНЫЕ ДАННЫЕ РАЗМЕРНЫЕ ПРИЗНАКИ • Ст – полуобхват талии • Сб – полуобхват бедер • Ди – длина брюк – измеряют по боковому срезу от линии талии до пола • Дсб – расстояние от линии талии до пола сбоку • Дсз – расстояние от линии талии до пола сзади • Дсп – расстояние от линии талии до пола спереди • Дс – расстояние от линии талии до плоскости сидения • Дтк – расстояние от линии талии до колена • Дн – длина ноги по внутренней поверхности • Об – обхват бедра • Шн – ширина брюк внизу – по модели ПРИБАВКИ
При ширине брюк внизу • 52 56 см (26 28 см в готовом виде) и каблуках средней высоты Дбш не изменяется; • 46 50 см (23 25 см в готовом виде) и низких каблуках Дбш уменьшают на 2 4 см; • 38 44 см (19 22 см в готовом виде) Дбш уменьшают на 4 6 см. Чем уже брюки, тем короче они должны быть; • больше 56 см (больше 28 см в готовом виде) и высоких каблуках Дбш увеличивают на 4 6 см.
ТН = Ди ТЯ = Дс + Пдс Или ТЯ = 0, 5 Сб + 1, 5 см ЯБ = ТЯ/3 БК = 0, 5 БН – 2, 0 5, 0 см Или ТК = Дтк - 0 2, 0 см
ЯЯ 2 = 0, 5(Сб+Пб)+0, 1 Сб
Я 2 Я 1 = 0, 1(Сб+Пб)
ЯЯ 3 = ЯЯ 2 / 2
Н 2 Н 3 = Шн – (0 2) см • 0 – для брюк свободных форм; • 1, 0 – для брюк умеренного объема; • 2, 0 – для малообъемных брюк Н 1 Н 2 = Н 1 Н 3 = 0, 5 Н 2 Н 3
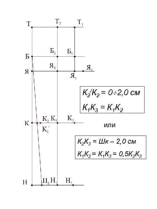
К 2/К 2 = 0 2, 0 см К 1 К 3 = К 1 К 2 или К 2 К 3 = Шк – 2, 0 см К 1 К 2 = К 1 К 3 = 0, 5 К 2 К 3
К 3 К 31 = 0, 5 К 3 Я 4
Т 1 Т 10 = 1, 0 1, 5 см или Т 1 Т 10 = Дсб – Дсп
Т 10 Т 11 = 0 1, 0 см
Т 11 Т 3=0, 5(Ст+Пт)+1, 0+Rв где 1, 0 – разница между шириной передней и задней половинок брюк; Rв = 2, 0 5, 0 см – раствор вытачек ТТ 3 3, 0 см
1 вытачка: раствор 2, 0 2, 5 см длина 8, 0 10, 0 см 2 вытачка: раствор 2, 0 2, 5 см длина 10, 0 12, 0 см ось Т 2 в 2 = 0, 5 Т 2 Т 3
Я 2 – 1 = 0, 5 Я 2 Б 1
Б 1 Б 11 = 0, 5 0, 7 см – для узких брюк Я 1– 2 = 0, 5(Я 1– 1)+1, 0 см – брюки умеренного объема Я 1 2 = 2/3(Я 1– 1) – для узких брюк
Н 1 Н 11 = 0, 5 1, 0 см
Т 2 Т 4 = 0, 5 Т 2 Т 11
Т 4 Т 5 – баланс брюк Т 4 Т 5 = 0, 05 Сб – (Дсб – Дсз) – для узких и среднего объема брюк с ВТО Т 4 Т 5 = 0, 05 Сб+1, 0 – (Дсб – Дсз) – для джинсов Т 4 Т 5 =0, 05 Сб–(0, 5÷ 2, 0)–(Дсб–Дсз) – для свободных брюк
ширина шага задней половинки брюк Я 1 Я 5 = 0, 2(Сб+Пб)
2÷ 3 = 1, 0÷ 1, 5 см Я 2 Я 21 = 1, 0÷ 1, 5 см
Ширина задней половинки на уровне бедер Б 3 Б 4 = (Сб + Пб) – ББ 11
Т 5 Т 6=0, 5(Ст+Пт) – 1, 0+Rв где 1, 0 – разница между шириной передней и задней половинок брюк; Rв = 3, 0 5, 0 см – раствор вытачек Б 4 Т 6 = БТ 3
Н 4 Н 5 = Шн + (0 2) см • 0 – для брюк свободных форм; • 1, 0 – для брюк умеренного объема; • 2, 0 – для малообъемных брюк Н 1 Н 4 = Н 1 Н 5 = 0, 5 Н 4 Н 5 К 2 К 4 = Н 2 Н 4 К 3 К 5 = К 2 К 4
Н 1 Н 12 = 0, 5 1, 0 см
К 5 К 51 = 0, 5 К 5 Я 5 К 51 К 52 = 0, 5÷ 2, 0 см К 5 Я 51= К 3 Я 2 – 0, 5 см
вытачка: раствор 3, 0 см длина 10, 0 12, 0 см ось Т 5 В = 0, 5 Т 5 Т 6
Брюки.ppt