Rantsu th 2013.pptx
- Количество слайдов: 13
RAMK Rantavitikan kampus luokat ja työhuoneet Syksyllä 2013 Tilanne 2013. 08. 20 JP
Aunola Eija Kesti Eini Kämäräinen Leila Rastas Pirjo Repokorpi Katariina Ryhänen Sari Siro Tiina Laukkanen Esa Nätynki Seppo Vaarala Jarmo Valtanen Tuomas Rauhala Pertti Petäjäjärvi Juha Laakko Juha Salonen Arttu Servicedesk Ruotsalainen Petri Issakainen Arja B 148 B 149 Sormunen Jussi B 146 Ollila Mirja Sassi Leena Koponen Maija Mäntylä Tiina Rantapirkola Tapani Ryynänen Kai Kämäräinen Pekka Nikkanen Kauko Moilanen Matti Poikajärvi Janne Sääskilahti Seppo Alalouko Heikki
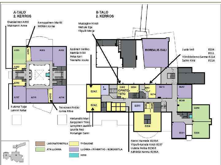
Ovaskainen Antti Maimann Anne Kemppainen Martti Mölläri Jorma Mustajärvi Kirsti Nietula Eija Ylipulli Merja Keränen Veikko Mattila Erkki Peisa Kari Teeriaho Jouko Juola Veli B 204 B 211 Ylimikkotervo Sanna B 214 Salmi Kirsi B 214 B 243 B 244 B 214 Kuisma Tuija Lammi Kaisa Tervonen Pirkko Junna Ritva B 242 B 235 Hietamäki Mari Karppinen Timo Lampinen Jaakko Laurila Pasi Porsanger Sami Niemi Hannele B 235 A Ylipulli-Kairala Kirsti B 237 Uutela Pekka B 236 B Kähkölä Hannu B 236 A
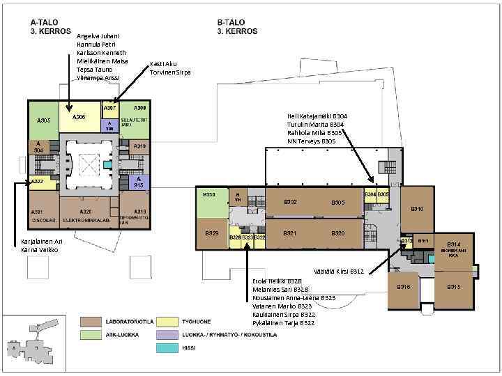
Angelva Juhani Hannula Petri Karlsson Kenneth Mielikäinen Maisa Tepsa Tauno Ylinampa Anssi A 305 Kesti Aku Torvinen Sirpa Heli Katajamäki B 304 Turulin Marita B 304 Rahkola Mika B 305 NN Terveys B 305 A 306 A 308 A 304 A 315 B 331 B 302 B 303 B 310 B 329 B 321 B 320 Karjalainen Ari Kärnä Veikko B 313 B 314 BIOMEKANII KKA Väärälä Kirsi B 312 Erola Heikki B 328 Melamies Sari B 328 Nousiainen Anna-Leena B 323 Vatanen Marko B 323 Kaukiainen Sirpa B 322 Pykäläinen Tarja B 322 B 316 B 315
5 C C 115 Hakkarainen Bertta C 129 Oikarinen Kerttu C 137 Honkela Tuovi C 135 Iivari Sanna C 135 Marita Ylipieti C 115 Kononen Vuokko C 128 Kuisma Petri C 131 Leppiaho Hellevi C 115 C Lempiäinen Matti C 136 Putaansuu Mari C 135 Riihiniemi Niina C 130 Airaksinen Risto C 131 NN C 115 NN C 128 Raita-aho Ilari C 118 IBS
Aho Irma C 206 A Laitinen-Tolonen Aulikki C 238 Rummukainen Aune C 230 Mastosaari Päivi C 231 Ala-Louko Ritva C 222 Perunka Sirpa C 215 Huhtaniska Jyrki C 237 Lampela Ritva C 222 Kallioniemi Marja C 238 Ruokanen Leena C 215 A Kivirinta Outi C 229 Haataja Hannu C 239 NN C 230 Saarelainen Lauri C 237 Lammi Pirjo C 232 Svanberg Leena C 232 Karjalainen Lahja C 236 Saari Päivi C 206 Turunen Eija C 239
7 9 C 31 18 C 331 C 8 Jaakola Heidi Kuusela Kaisa 5 C 32 C 309 Kangastie Helena C 329 Trast Marika C 309 Rahkola Erja C 335 Tolvanen Taimi C 325 Kiistala Maria C 318 Rajaniemi Pia C 330 Leppänen Tero C 325 Rintala Johanna C 313 Liu Taina C 330 Rautio Anne C 325 Tieranta Outi C 317 Seppänen Raija C 336 Jääskeläinen Arja C 320 Huovinen Jaana C 313 A Törmänen Outi C 338 Saranki-Rantakokko Sirkka C 320 Välimaa Leena C 313 Turpeenniemi Kaisa C 331 Varrio Ritva C 319 Soikkeli Outi C 306 Korteniemi Paula C 328 Kantola Susanna C 306 A Immonen Anne C 328 Havela Sirkka C 337 Yliniemi Paula C 337 Niskala Aila C 319
3 C 40 0 C 40 2 C 40 Pasma Seija Perkkiö Juha Enbuske Seija C 419 Ervast Päivi C 408 Forest Merja C 417 Hintikka-Kukkola Kristiina C 432 Hyry-Honka Outi C 440 Hämäläinen Katja C 403 Tolppi Reijo C 416 Malvalehto Erja C 403 Lohi Heli C 402 Konu Ari C 424 C 402 Kylmälä Kaija C 439 Okkonen Ulla C 402 Lampela Martti C 433 Laukkanen Sirpa C 403 Tulkki Pasi C 423 NN (taloushall harj) C 403 Nevala Paula C 438 Nissinen Pirkko C 406 Oinas Maire C 419 C 415 Huhtalo Tiina Kinnunen Laura C 400 Jänkälä Sinikka C 407 C 414 Piirainen Aino Alajärvi-Kauppi Riitta C 418 C 422 NN*2 C 421 Tiirola Jouko C 431 Syrjälä Niina C 402 Alasuutari Lahja C 414 A
Dutka Arturs C 520 Hirvaskari Milla C 520 Gerashenhenko Irina C 520 Sohlman Eiri C 520 NN C 520
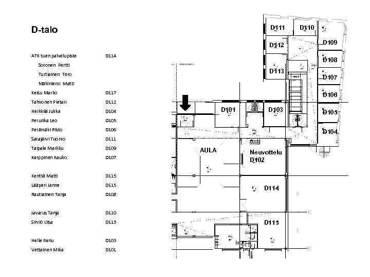
D 111 D-talo D 112 ATK tuen palvelupiste D 114 D 113 Turtiainen Tero Mäkiniemi Matti D 117 Tahvonen Pietari D 104 Perunka Leo D 105 Perämäki Risto D 106 Sarajärvi Tuomo D 111 Taipale Markku D 109 Karppinen Kauko D 107 Kenttä Matti D 115 Lääperi Janne D 115 Rautiainen Tanja D 108 Javarus Tanja D 110 Sirviö Liisa D 113 Helle Panu D 103 Vettainen Mika D 101 D 107 D 112 Heikkilä Jukka D 109 D 108 Soronen Pertti Keisu Marko D 110 D 106 D 101 D 103 D 105 D 104 AULA Neuvottelu D 102 D 114 D 115
AP ja STP Alakunnas Tuomas Autioniemi Juha Autioniemi Matti Hämäläinen Toni Kallunki Ismo Karjalainen Ari Konttaniemi Heikki Kähkönen Päivi Mattson Jesse Moilanen Kari Määttä Kalle Taskila Mika Uusipulkamo Marko Vaara Pasi Vatanen Matti Vatanen Mikko STP STP AP STP
D-rakennus


