f698a51194b03012b422976a69a8c71c.ppt
- Количество слайдов: 4
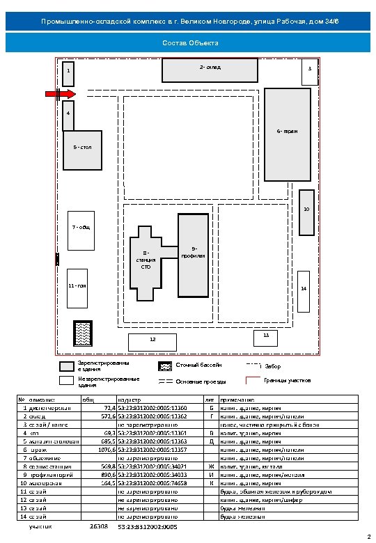
Промышленно-складской комплекс в г. Великом Новгороде, улица Рабочая, дом 34/6 Краткое описание Объекта Расположение Объекта ► Вашему вниманию предлагаются промышленноскладской комплекс (далее «Объект» ), расположенный по адресу: Новгородская область, г. Великий Новгород, улица Рабочая, дом 34/6. ► Объект находится в собственности Банка Уралсиб. ► В состав Объекта входят: • земельный участок общей площадью 2, 63 га • 8 нежилых зарегистрированных зданий общей площадью 4 101, 3 кв. м. • 6 незарегистрированных зданий и сооружений ► Назначение: промышленное, для эксплуатации производственной базы (в собственности) ► Часть помещений сдано в аренду. ► Имеются все коммуникации: отопление, электроснабжение, канализация. водо-, Условия реализации Объекта Контакты Дубинин Олег Дирекция реализации активов ПАО "БАНК УРАЛСИБ" 119048, г. Москва, ул. Ефремова, д. 8, тел. : +7 (495) 785 -12 -12 доб. 2968 моб. +7 -915 -427 -30 -49 e-mail: Dubinin. OE@uralsib. ru ► Желаемая форма продажи: договор купли-продажи ► Цена продажи Объекта: по запросу Вид на земельный участок со спутника 5 км до цен тра Въезд на территорию Земельный участок 2, 63 га 1
Промышленно-складской комплекс в г. Великом Новгороде, улица Рабочая, дом 34/6 Состав Объекта 2 - склад 1 3 4 6 - гараж 5 - стол 10 7 - общ 8 станция СТО 9 профилак 11 - гсм 14 13 12 Зарегистрированны е здания Сточный бассейн Забор Незарегистрированные здания Основные проезды Границы участков 2
Промышленно-складской комплекс в г. Великом Новгороде, улица Рабочая, дом 34/6 Фотографии Объекта Диспетчерская КПП Склад Гараж Мастерская Общежитие 3
Промышленно-складской комплекс в г. Великом Новгороде, улица Рабочая, дом 34/6 Фотографии Объекта Станция СТО Профилакторий Магазин-столовая Территория 4
f698a51194b03012b422976a69a8c71c.ppt