fc6f98cd036261886fc8333bcc84c2cb.ppt
- Количество слайдов: 14
Предложение по проведению корпоративного мероприятия в многофункциональном развлекательном комплексе «Таврический сад» ул. Потемкинская д. 4 а
Местоположение Ледового Дворца
Новая уникальная площадка для корпоративного отдыха МРК «Таврический сад» представляет собой уникальное для Санкт-Петербурга спортивноразвлекательное учреждение и потенциальную современную площадку для проведения разного рода мероприятий. Основные направления по организации мероприятий: § Корпоративные и частные праздники любого объема § Коммерческие выставки § Масштабные спонсорские мероприятия § Концертные программы
Прилегающая территория к МРК «Таврический сад»
Площадкой, наиболее точно отвечающей всем требованиям организации события “Platinum Stars” является МРК «Таврический сад» . Выбор обусловлен следующими факторами: 1) расположение в историческом центре Петербурга; 2) современный дизайн здания и внутренних интерьеров; 3) общая площадь более 6000 кв. м. 4) площадь прилегающей территории более 2000 кв. м, которую в случае аренды можно использовать по своему усмотрению. В случае варианта парковки можно разместить 45 автомобилей. 5) гардеробы (до 1500 мест). 6) большое количество подсобных помещений: -раздевалки общей площадью 240 кв. м. , оборудованные шкафчиками, зеркалами, туалетами и душевыми; -складские помещения, предоставляемые на время проведения мероприятия. 7) большое количество туалетных комнат на всей территории комплекса. 8) 5 основных входов: со стороны Потемкинской улицы, со стороны Таврического сада, отдельные входы в кафе и ресторан, технологический проход через гаражное помещение, а также 8 вспомогательных (служебные и аварийные).
1 – Сауна на 8 мест 2, 3, 4, 5 – Раздевалки 6 – Бассейн 7 – Комната отдыха 8 – Гардероб 9 – Техническое помещение 10 – Гардероб * - Туалетные комнаты
1 - Касса 2, 3, 7, 8 – Гардеробы 3 – VIP-зона первого этажа – ресторан 4, 5 – Раздевалки 6 - Медпункт * - Туалетные комнаты
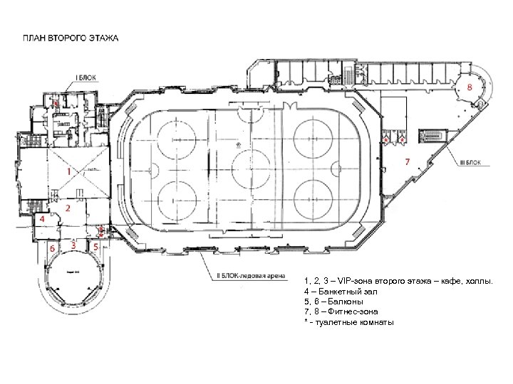
1, 2, 3 – VIP-зона второго этажа – кафе, холлы. 4 – Банкетный зал 5, 6 – Балконы 7, 8 – Фитнес-зона * - туалетные комнаты
Многофункциональный развлекательный комплекс «Таврический сад» Уникальность: 1) расположение в историческом центре Петербурга; 2) ледовая арена для любительского и профессионального катания; 3) современный дизайн здания и внутренних интерьеров; 4) общая площадь более 6000 кв. м. 5) площадь прилегающей территории более 2000 кв. м, которую в случае аренды можно использовать по своему усмотрению. В случае варианта парковки можно разместить 60 автомобилей. 6) Современный охранный комплекс, включающий в себя систему видеонаблюдения, системы пожарной и охранной сигнализации, электронная система допуска на всей территории. 7) VIP – зона второго этажа, площадью 400 кв. м (кафе – 262 кв. м. , холл – 66 кв. м. , балкон – 42 кв. м. , банкетный зал – 34 кв. м. ) На плане второго этажа – 1 - 6. 8) Гардеробы (до 1500 мест). • Большое количество подсобных помещений: раздевалки общей площадью 240 кв. м. , оборудованные шкафчиками, зеркалами, туалетами и душевыми складские помещения, предоставляемые на время проведения мероприятия. 10) Большое количество туалетных комнат на всей территории комплекса. 11) 5 основных входов: со стороны Потемкинской улицы, со стороны Таврического сада, отдельные вход в кафе, технологический проход через гаражное помещение, а также 8 вспомогательных (служебные и аварийные)
Интерьер Комплекса Главный вход, коридор, холл Зона главного входа представляет собой круглое помещение «из стекла и стали» , с балконом второго этажа, кассами и диванами
Интерьер Комплекса. Ледовая арена
Интерьер Комплекса. VIP-зоны 1 -го блока VIP – зона первого блока второго этажа: 3. – кафе с панорамой на ледовую арену. 4. - зона отдыха.
Предложение Арендная стоимость комплекса Таврический сад» включает в себя следующие позиции: Также мы предлагаем следующие услуги, которые не входят в арендную стоимость и оплачиваются отдельно: Аренда второго блока (ледовой арены) Высокопрофессиональные охранные услуги различного уровня сложности в соответствии с поставленной задачей. Покрытие поверхности ледовой арены термоизоляционным паркетом RAITA Монтажно–верхолазные работы. Аренда VIP-зоны на втором этаже 1 -го блока Декорационные и сценографические работы Аренда гардеробов Сценический свет Аренда подсобных помещений Сценический звук Аренда прилегающей территории Подготовка и проведение программ Энергетические ресурсы Полный спектр кейтеринговых услуг Работа штатного обслуживающего персонала Возможна аренда отдельных помещений комплекса
Контакты Многофункциональный развлекательный комплекс «Таврический Сад» ООО «Петербургрегионгаз-спорт» Ул. Потемкинская, 4 А Старший администратор: Паршикова Татьяна Валентиновна Тел. +7(921)964 -25 -63 e-mail: Parshikova@tavrsad. com


