Лекция2.pptx
- Количество слайдов: 58
Нормативно-технічні основи архітектурно-будівельного проектування Модульна координація розмірів у будівництві Основні положення модульної координації розмірів при проектуванні будівель установлює державний стандарт ГОСТ 28984 -91, який є основою уніфікації та стандартизації розмірів у будівництві для забезпечення взаємозамінності та обмеження кількості типорозмірів будівельних виробів. Стандарт розповсюджується на будівлі різного призначення усіх галузей народного господарства і обов’язковий при розробці: • нормативних документів, що використовуються у будівництві; • проектів будівель і споруд; • сортаментів, номенклатури, каталогів і проектів будівельних конструкцій. Стандарт необов'язковий при проектуванні будівель: • унікальних; • експериментальних; • які реконструюються, і були побудовані раніше без дотримання правил модульної координації в будівництві та реставруються; • із використанням виробів із не модульними розмірами; • з косокутними і криволінійними окресленнями; • із розмірами, що встановлені спеціальними міжнародними угодами.
Модульна система координації розмірів у будівництві (МСКРБ) – це сукупність правил взаємного узгодження розмірів будівель, їх конструкцій і виробів на основі кратності установленій одиниці – модулю (М=100 мм). Для точного визначення положення вертикальних несучих і огороджувальних конструкцій на будівельних кресленнях використовують модульну просторову координаційну систему. На плані будівлі ця система має вигляд прямокутної сітки ліній, відстань між якими дорівнює вибраному планувальному модулю. Модульні осі, які збігаються із розташуванням несучих і огороджувальних конструкцій, називають координаційними осями. Модульною просторовою координаційною системою називають умовну тривимірну систему площин і ліній їх перетину з відстанями між ними, які дорівнюють основному або похідним модулям. Модульна система у будівництві віддає перевагу прямокутній координаційній системі, але допускає застосування косокутної та центричної систем. Координаційна площина – одна з площин модульної просторової координаційної системи, що обмежує координаційний простір. Координаційна лінія – лінія перетину координаційних площин. Координаційна вісь – одна з координаційних ліній, яка визначає членування будівлі на модульні кроки, прогони і висоти поверхів. Осі розташовують у взаємно перпендикулярних напрямах. До них прив’язують основні несучі й огороджувальні конструкції будівель.
Модулем називають умовну лінійну одиницю виміру, яку використовують для координації розмірів будівель, їх елементів і обладнання. Основний модуль (М=100 мм) – прийнятий за основу для призначення похідних від нього модулів. У країнах із футодюймовою системою М=4’ (101, 6 мм), що ускладнює міжнародну торгівлю будівельними виробами та обладнанням. Використання модульних координаційних систем у будівництві: а – прямокутна; б – косокутна; в – центрична; г – укрупнені модулі планів; д – укрупнені та подрібнені модулі лінійних розмірів конструкцій; е – розріз багатоповерхової будівлі
Модульна система в будівництві Об’ємно-планувальні рішення будівель на основі модульної координаційної системи: а – модульна сітка; б – планувальні рішення житлового будинку; в – основні параметри будівель
Правила призначення координаційних осей та розмірної прив’язки конструкцій будівель до них а, б – призначення координаційних осей; в – варіанти прив’язки несучих і самонесучих стін до осей; г – варіанти прив’язки колон до осей; д – призначеня координаційних осей в будівлях стінової конструктивної системи
Позначення координаційних осей на планах будівель: а – прямокутної координаційної системи; б – центричної координаційної системи; в – позначення додаткових координаційних осей
Збільшений модуль (мультимодуль) – це похідний модуль, кратний основному модулю в ціле число раз: 3 М, 6 М, 12 М, 15 М, 30 М і 60 М. Подрібнений модуль (субмодуль) – це похідний модуль, який складає частину від основного: 1/2 М, 1/5 М, 1/10 М, 1/20 М, 1/50 М і 1/100 М. Модульний розмір – це розмір, який дорівнює або кратний основному або похідному. Правилами використання похідних модулів за МСКРБ: Збільшений модуль, покладений в основу визначення планувальних рішень будівель, планувальний модуль ПМ, використовують: для цегляних будівель 2 М і 3 М (300 мм), для панельних – 3 М, 6 М і 12 М, для каркасних – 30 М і 60 М. Для визначення висоти поверхів усіх будівель, ширини та висоти прорізів, простінків у зовнішніх стінах, розмірів панелей і стінових блоків використовують основний та збільшені модулі М, 3 М і 6 М. Основний М і подрібнений 1/2 М модулі застосовують для призначення розмірів перерізів конструктивних елементів – колон, балок, товщини стін і балок перекриття, а також розмірів віконних і дверних прорізів. Модуль 1/5 М – для призначення малих розмірів елементів (товщини плит перекриттів і тонкостінних конструкцій, розмірів балок і перемичок). Подрібнені модулі 1/10 М, 1/20 М, 1/50 М і 1/100 М – для призначення товщини плитних і листових матеріалів, ширини зазорів і швів між елементами та розмірів допусків при виготовленні виробів тощо.
Границі застосування модулів, СТ СЭВ 1001 -78 Позначення модуля М 2 М 3 М 6 М 6 М 12 М 15 М 30 М 60 М 1/2 М 1/5 М 1/10 М 1/20 М 1/50 М 1/100 Зона застосування Основний За всіма вимірами Збільшений У плані По вертикалі У плані та по вертикалі У плані По вертикалі У плані Подрібнений За всіма вимірами перерізів конструкцій Граничні розміри застосування, мм 100… 1200 200… 3600 2800 300. . . 3600 600… 7200 600…без обмеження 1200… 7200 1200… без обмеження 1500… 12000 3000… 18000 6000…без обмеження 50… 600 20… 300 10… 150 5… 100 2… 50 1… 20 Примітка 1. Допускається застосування координаційної висоти поверху Но=2800 мм. Примітка 2. Збільшений модуль 2 М призначений лише для житловогромадського. Примітка 3. За вертикальними розмірами будівлі модулі 12 М, 6 М, 3 М узгоджені з нормальною висотою східця 150 мм. Для житлових будинків при висоті приміщення 2500 мм (+2%), а також як виключення при висоті поверху 2800 можна приймати особливі розміри східців.
МСКРБ передбачає використання наступних розмірів: • координаційний, модульний – визначає межі координаційного простору в одному із напрямів будівлі (прогонів L, кроків B і висот поверхів H будівель); • номінальний – визначає модульні розміри будівельної конструкції, який дорівнює або кратний основному чи похідному модулю; • конструктивний – це проектний розмір будівельної конструкції, елемента або виробу, який відрізняється від координаційного на величину нормативного зазору δ між конструкціями або виробами; • натурний – це фактична відстань між координаційними осями будівлі або фактичні розміри його конструктивних елементів і виробів. Може відрізнятися від номінальних і конструктивних лише в межах установлених допусків ДСТУ. Номінальні розміри конструктивних елементів приймають: • рівними основним координаційним розмірам будівлі, якщо відстань між двома координаційними осями будівлі повністю заповнена цим елементом, наприклад, довжина ферми покриття або плити перекриття, висота колони каркаса або стінової панелі; • рівними частині основного координаційного розміру будівлі, якщо декілька конструктивних елементів заповнюють відстань між двома координаційними осями будівлі, наприклад, ширина плити перекриття, стінові панелі; • більшими від основного координаційного розміру будівлі, якщо конструктивний елемент виходить за межі основного координаційного розміру будівлі, наприклад, довжина ферми покриття з консолями, рама з консолями.
Модульна система у будівництві: а – система модульних площин; б – розріз багатоповерхової будівлі; в – розміри плити перекриття; г – розміри балки покриття; д – розріз одноповерхової будівлі; е – розміри плити покриття; ПМ – планувальний модуль; ВПМ – вертикальний планувальний модуль; h – висота поверху; L – прогін; Lн – номінальний розмір конструкції; Lк – конструктивний розмір конструкції; d – нормований зазор між конструкціями; с – будівельна висота перекриття; a – внутрішня прив’язка; b – зовнішня прив’язка
Номінальні розміри прорізів вікон у плані та за висотою призначають переважно кратними 3 М: ширина – 600, 900, 1200, 1350, 1500, 1800 мм; висота – 1200, 1500, 1800 мм. Конструктивні розміри віконних рам за шириною менше на 30 мм, а за висотою на 40 мм. Умовні графічні зображення вікон і балконних дверей: а – прорізи; б – рами; в – напрями відкривання рам; г, д – вікна залежно від системи відкривання стулок; е – розміри вікон
Правила розмірної прив'язки конструктивних елементів будівель до координаційних осей Прив’язкою до координаційної осі називають розташування будівельних конструкцій та елементів будівлі по відношенню до координаційних осей. Прив'язку – це відстань від координаційної осі будівлі до зовнішньої або внутрішньої площини елемента, або до геометричної осі його перерізу. Варіанти прив’язок конструктивних елементів до координаційних осей: „нульова” – якщо внутрішня грань конструкції збігається з координаційною віссю (приймається для зовнішніх самонесучих, фахверкових та навісних стін і колон); „матеріальна” – якщо відстань від внутрішньої грані конструкції до координаційної осі дорівнює 100, 250 або 500 мм (приймається для зовнішніх несучих стін та колон); „центральна” – якщо геометрична та координаційна осі збігаються (приймається для внутрішніх несучих стін та колон).
“центральна” “нульова” “матеріальна” Прив’язка стін до координаційних осей: а – внутрішніх несучих стін; б, в, г – зовнішніх несучих стін; д, е – зовнішніх самонесучих, фахверкових і навісних стін; + – внутрішня площина стін знаходиться з правого боку кожного зображення
1 Прив’язка колон каркасних будівель до координаційних осей: а – середніх колон; б…д – крайніх рядів; е – біля торців будівель; 1 – фахверкова колона
На планах будівель арабськими цифрами (зліва – направо) позначають координаційні осі по довгій стороні плану, а великими літерами українського алфавіту (знизу-вгору) – по короткій стороні плану. Розрізка будівель за вертикаллю, рівні окремих поверхів і горизонтальні позначки (прорізів, опор балок, ферм) прив’язують до модульних горизонтальних площин, які відповідають вертикальному планувальному модулю. Висота поверху – це розмір Модульні та координаційні осі: по вертикалі від рівня чистої а – горизонтальний планувальний модуль підлоги нижче розташованого ПМ-6; б – вертикальний планувальний поверху до того ж рівня модуль ПМ-2; в – вертикальний наступного або до верху планувальний модуль ПМ-3 горищного перекриття.
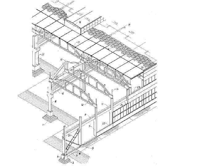
Об’ємно-планувальний елемент – це частина будівлі, яка має основні координаційні розміри: прогін, крок, висоту поверху. Прогін – це відстань між координаційними осями вертикальних несучих елементів будівлі (колон, стін) уздовж найбільшого із несучих конструкцій перекриття або покриття (довжина ферми, балки, плити). Крок – відстань між координаційними осями несучих конструкцій (стін, колон, Об’ємно-планувальний елемент будівлі другорядних балок, плит) у перпендикулярному до прогону каркасної конструктивної системи: напрямі. 1 – середня колона; 2 – підкранова Планувальний елемент – це балка; 3 – плита покриття; 4 – стінова горизонтальна проекція об’ємнопанель; 5 – кроквяна балка; 6 – крайня планувального елемента. колона
Склад і порядок розроблення проектної документації для будівництва Для погодження і затвердження об’єкта розробляється проект (П), а для будівництва – робоча документація (РД). Проектом будівлі називається сукупність технічних документів, які складаються з креслень, розрахунків, макетів, опису прийнятих рішень та інших матеріалів, що дозволяють оцінювати експлуатаційні, архітектурнохудожні, технічні та економічні якості будівлі. Для будівель масового будівництва розробляють типові проекти. За одним типовим проектом будується велика кількість типових будівель. Для будівель, які не повторюються, та унікальних розробляються індивідуальні проекти. Типові або індивідуальні проекти будівель і споруд виконують у дві стадії. Перша стадія – це проект (П), а друга – це робочий проект (РП) або робочі креслення, за якими споруда будується безпосередньо. Будівлі, що будують за типовими або індивідуальними проектами, які повторно використовуються, мають одну стадію проектування – техноробочий проект.
До складу проекту (П) входять: • плани всіх поверхів будівлі, які дозволяють уявити його композиційне рішення, розміри приміщень, їх розміщення, функціональні зв’язки та конструктивну систему і схему будівлі; • архітектурні розрізи будівлі у такій кількості, яка дозволяє з’ясувати об’ємнопросторову структуру будівлі та її конструктивну систему. На таких розрізах спрощено зображують елементи наземної частини будівлі без деталізації конструкцій стін, перекриттів, покриттів тощо. На розрізи наносять тільки розміри і висотні позначки, які необхідні для оцінки прийнятого архітектурного рішення та подальшої розробки робочих креслень; • фасади будівлі, які дозволяють уявити зовнішній вигляд будівлі (для будівель із складною об’ємно-просторовою композицією, крім фасадів, розробляють перспективу і макет); • ситуаційний план району будівництва, який характеризує природні умови, шляхову мережу, найближчу забудову, що межує з майданчиком забудови; • генеральний план будівельної ділянки із зображенням сторін світу, напрямку переважаючих вітрів, горизонтального рельєфу, розмірів ділянки і будівлі, що проектується, шляхової мережі, зелених насаджень тощо; • пояснювальна записка, що складається з опису та обґрунтування прийнятих рішень.
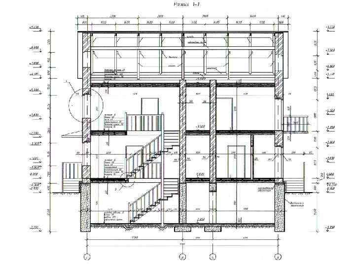
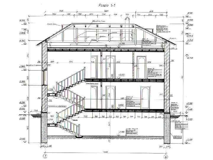
Розрізи триповерхового житлового будинку: а – архітектурний; б – конструктивний
Архітектурний розріз житлового будинку з мансардним приміщенням
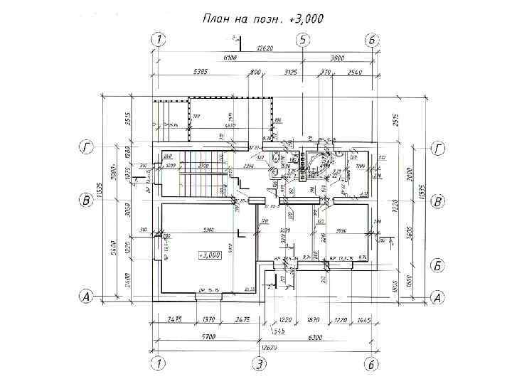
Приклад виконання робочого креслення плану другого поверху житлового будинку
Приклад виконання робочого креслення розрізу нежитлової будівлі каркасної конструктивної системи
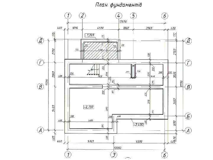
До складу робочого проекту (РП) архітектурно-будівельного розділу входять: • плани всіх поверхів будівлі, на яких зображені: всі несучі та огороджувальні конструкції, їх розміри та прив’язки до координаційних осей за довжиною і шириною, а також розміри усіх прорізів із маркуванням вікон і дверей; • плани фундаментів, перекриттів, покрівлі, на яких зображені усі несучі та огороджувальні конструкції, їх розміри з прив’язками до координаційних осей, місця спирання на нижче розташовані конструкції, можливі прорізи в конструкціях і монолітні ділянки з розмірами і прив’язками до координаційних осей, а також марки та кількість збірних конструкцій; • конструктивні розрізи будівлі у двох взаємно-перпендикулярних напрямах, на яких зображують усі несучі та огороджувальні конструкції з умовними графічними зображеннями їх матеріалів у розрізах, наносять усі необхідні розміри конструкцій з прив’язками до осей, висотні позначки, прапорці із зображенням складів підлоги першого поверху, міжповерхових перекриттів і покриття (для багатоповерхових будівель обов’язковий розріз по сходовій клітці); • креслення фасадів будівлі із зображенням загального виду та деталей. Для будівель з панельними стінами: розрізку стін; характерні координаційні осі (крайні, в місцях уступів будівлі у плані та за висотою, біля деформаційних швів); висотні позначки (рівня землі, вхідної площадки, верха стін, низу і верху прорізів, низу залізобетонних плит балконів, лоджій, козирків, карнизів, позначки гребеня даху і верха труб); зовнішні пожежні драбини; вид оздоблення окремих ділянок стін, які відрізняються від інших (домінуючих).
Правила виконання архітектурно-будівельних креслень На планах кожної будівлі показують координаційні осі з самостійною системою позначень. Координаційні осі наносять тонкими штрих-пунктирними лініями із довгими штрихами, позначають арабськими цифрами і великими літерами українського алфавіту (за винятком літер: Є, З, І, Ї, Й, О, Х, Ц, Ч, Щ, Ь) у кружечках діаметром 6… 12 мм. Якщо для позначення координаційних осей не вистачає літер алфавіту, наступні осі позначають двома літерами, наприклад, АА, ББ, ВВ. Пропуски у цифрових і літерних позначеннях координаційних осей (крім вказаних) не допускаються. Цифрами позначають координаційні осі з боку будівлі з більшою кількістю осей. Послідовність цифрових і літерних позначень координаційних осей приймають за планом: зліва направо та знизу вгору. Позначення координаційних осей, як правило, наносять по лівій та нижній сторонах плану будівлі. При незбіжності координаційних осей протилежних сторін плану позначення вказаних осей додатково наносять у місцях розходження по верхній та (або) правій сторонах будівлі. Для окремих елементів, які розташовані між координаційними осями основних несучих конструкцій, наносять додаткові осі та позначають їх у вигляді дробу: над рискою вказують позначення попередньої координаційної осі, під рискою – додатковий порядковий номер у межах ділянки між суміжними координаційними осями.
Розмір шрифту для позначення координаційних осей та позицій повинен бути на один-два кеглі більший, ніж розмір шрифту, прийнятий для розмірних чисел на тому самому кресленні. На будівельних кресленнях розміри наносять у міліметрах у вигляді замкнутих ланцюжків. Розмірні лінії на їх перетинах з виносними лініями, лініями контуру або осьовими обмежують засічками у вигляді основних ліній завдовжки 2… 4 мм, які проводять з нахилом вправо під кутом 45 о до розмірної лінії. При цьому розмірні лінії повинні виступати за крайні виносні лінії на 1… 3 мм. Відстань від контуру креслення до першої розмірної лінії рекомендується приймати не менше 10 мм. Але у практиці проектних робіт цю відстань приймають 14… 21 мм. Відстань між паралельними розмірними лініями повинна бути однаковою, але не менше 7 мм, а від розмірної лінії до кружечка координаційної осі – 4 мм. Відмітки рівнів елементів конструкцій від рівня відліку (умовної «нульової» відмітки) позначають умовним знаком і вказують у метрах з трьома десятковими знаками, відокремленими від цілого числа комою. «Нульову» позначку, яку приймають для поверхні підлоги першого поверху, вказують без знака, а відмітки вище нульової – зі знаком «+» , нижче нульової – зі знаком «–» . При нанесенні на одному кресленні декількох позначок, які розташовані одна під другою, вертикальні лінії виноски знаків відміток розміщують одну під одною.
Монолітна залізобетонна перемичка Лінії-виноски не повинні перетинатися між собою. Якщо лінія-виноска проходить по заштрихованому полю, вона не повинна бути паралельною лінії штриховки. Не рекомендується також перетинати розмірні лінії та елементи зображення, до яких не відноситься розміщений на поличці лінії-виноски надпис. Надписи, що відносяться безпосередньо до зображення, можуть мати не більше двох рядків, розташованих над поличкою лінії-виноски і під нею. Позначення розмірів, відміток, ухилів, виносних надписів і номерів позицій елементів конструкцій будівель: а – відмітка рівня висоти; б – на розрізі; в – на плані
Виносні надписи до багатошарових конструкцій виконують у вигляді «прапорців» . У цьому випадку лінія-виноска зображується прямою лінією із стрілкою, на якій у порядку розташування шарів (зверху до низу або праворуч -ліворуч) указують назви будівельних матеріалів та їх розміри у міліметрах. На будівельних кресленнях деякі розміри наносять без розмірних і виносних ліній, наприклад, похил даху, уклон вимощення. Величина похилу даху однієї поверхні будівлі по відношенню до другої – це тангенс кута, який може позначатися: простим або десятковим дробом, або у відсотках, наприклад, 1: 20, 0, 050 або 5%. При цьому на розрізах перед розмірним числом похилу наносять умовний знак із двох ліній, що перетинаються під гострим кутом , при цьому нижня лінія знака уклону повинна бути паралельна лінії контуру або лінії виноски, а гострий кут направлений у бік уклону. На планах напрямок уклону площин указують стрілкою, над якою проставляють величину. У текстових документах уклони площин позначають літерою і, наприклад, і = 1: 12 або і = 0, 083 або і = 8, 33%.
Плани поверхів При виконанні плану поверху положення умовної січної площини приймають на рівні віконних прорізів або на 1/3 висоті поверху, що зображується. На плани поверхів наносять: координаційні осі будівлі; товщини стін і перегородок, відмітки ділянок, розташованих на різних рівнях; лінії розрізів, які наносять з таким розрахунком, щоб у нього потрапили прорізи вікон, зовнішніх воріт і дверей, сходів; позиції (марки) елементів будівлі, заповнення прорізів вікон, дверей; позначення вузлів і фрагментів планів; найменування приміщень, їх площі. Площі проставляють у нижньому правому кутку приміщення і підкреслюють.
Розрізи будівель виконують вертикальною січною площиною, перпендикулярною до поздовжніх або поперечних капітальних стін. Положення січних площин призначають з розрахунком, щоб при мінімальній кількості розрізів найбільш повно виявити об’ємно-планувальне і конструктивне вирішення будівлі, висотні розміри, а також, щоб на розрізах були зображені: прорізи вікон, зовнішніх дверей, сходові клітки (січна площина повинна пройти по найближчому до спостерігача сходовому маршу), балкони, лоджії тощо. Незалежно від положення січної площини поздовжній розріз будівлі у межах горища зображують завжди по гребеню покриття. Лінії контурів елементів конструкцій у розрізі зображують суцільною товстою основною лінією, а лінії контурів, які не потрапляють у площину розрізу, – суцільною тонкою лінією. Розрізи будівлі позначають арабськими цифрами послідовно у межах основного комплекту робочих креслень. Направлення погляду для розрізу за планом будівлі або споруди приймають, як правило, знизу вгору та справа наліво. На розрізи наносять: координаційні осі будівлі із розмірами, що визначають відстань між ними; відмітки, що характеризують розташування елементів несучих і огороджувальних конструкцій за висотою; розміри та прив’язки за висотою усіх прорізів у стінах і перегородках, які зображені у розрізах; назви елементів будівлі; матеріали елементів, які потрапили в розріз; позначення вузлів.
Приклади виконання робочих креслень архітектурних рішень: а – фасаду адміністративної будівлі промислового підприємства; б – плану покрівлі одноповерхової промислової будівлі; в – схеми розташування елементів збірних перегородок
Умовні графічні зображення будівельних конструкцій та їх елементів (за ДСТУ Б А. 2. 4 -7: 2009)
Графічні зображення матеріалів у розрізах і видах
Умовні графічні зображення елементів санітарно-технічних пристроїв
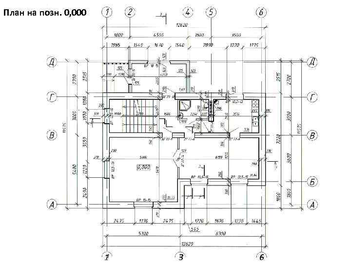
План на позн. 0, 000 1 3 6
Лекция2.pptx