36б - Метаболизм 1960-1970 гг..pptx
- Количество слайдов: 62
МЕТАБОЛИЗМ 1960 -1970 -х гг.
Кэндзо Тангэ (1913 — 2005) — японский архитектор. Лауреат Притцкеровской премии (1987). Отталкиваясь от традиционной японской эстетики и структурных принципов, проектировал в «интернациональном стиле» и стиле «хай-тек» . Руководил перестройкой Хиросимы после бомбардировок 1945 года и созданием Парка мира. Среди его работ — католический собор Пресвятой Девы Марии и Олимпийский центр (оба — в Токио, закончены в 1964 году). Одним из первых использовал перекрытия-оболочки: Олимпийский центр и собор Святой Марии в Токио, конгресс-холл в префектуре Эхимэ. С середины 1960 -х в центре интересов Тангэ и его архитекторского бюро — масштабная городская планировка (новый центр Скопье после землетрясения, столица Нигерии Абуджа, деловые кварталы Болоньи и Неаполя).
Проект расширения Токио Япония, 1960 г. Арх. К. Танге
Главный павильон ЭКСПО-70 в Осаке Япония, 1970 г. Арх. К. Танге
Здание компании «Сидзуока» в Токио Япония, 1966 -1967 гг. Арх. К. Танге
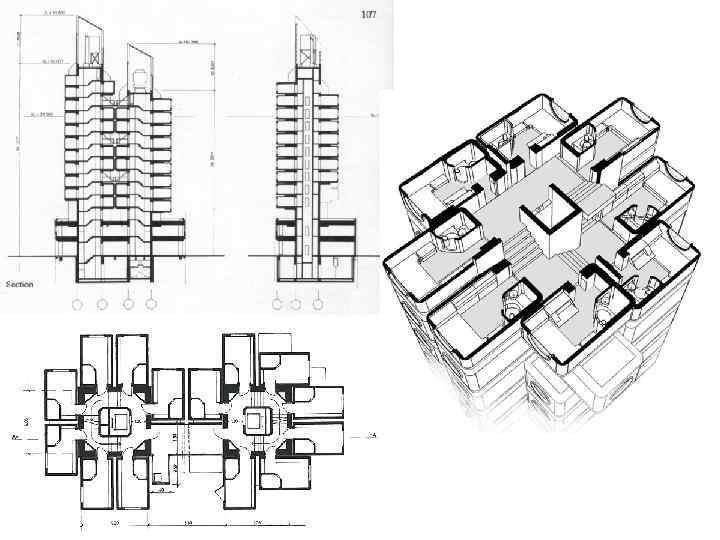
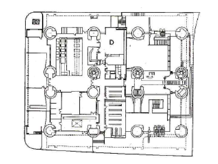
Центр информации в Кофу Япония, 1962 -1967 гг. Арх. К. Танге
Кисё Курокава (1934 - 2007) — японский архитектор и один из основателей движения метаболистов. Закончил Университет Киото в 1957 году, затем учился в аспирантуре Токийского Университета у Кендзо Танге (закончил в 1964). В 1960 Курокава получил известность как один из основателей движения метаболизма, выступивших против принципа "машинерии" модернизма. Он выступал за развитие органических тенденций в архитектуре. Несмотря на успех на международной выставке в Осаке в 1970 году, группа метаболистов распалась. Но Курокава продолжал развивать ее идеи в своем творчестве и теоретических трудах. В 1962 году он основал свое бюро "Kisho Kurokawa Architect & Associates". Сейчас филиалы мастерской существуют в Токио, Осаке, Нагое, Астане (генеральный план которой он разрабатывал), Куала-Лумпуре и Пекине.
Капсульный дом «Накагин» в Токио Япония, 1972 г. Арх. К. Курокава
Киёнори Кикутакэ (1928 - 2011) — японский архитектор, один из основоположников движения метаболистов. Дебютными проектами архитектора стали урбанистические системы морских городов. В начале 60 х годов он спроектировал дома согласно собственной метаболической концепции. В то же время он начинает задумываться о проблеме густонаселенности городов. Дефициту земли, высокой плотности застройки, небольшой жилплощади по мнению архитектора есть отличная альтернатива. Он начал проектировать высотные сооружения. Являлся руководителем исследовательского центра, посвященного изысканиям в области макро-инженерии. Организация объединяет архитекторов и строителей. Являлся членом международных тематических институтов и академий. Лауреатом множества национальных и международных премий.
Башня на выставке ЭКСПО-70 в Осаке Япония, 1970 г. Арх. К. Кикутаке
«Акваполис» на о. Окинава Япония, 1975 г. Арх. К. Кикутаке
Концепция домов-деревьев Япония, 1966 г. Арх. К. Кикутаке
Концепция плавающего города Япония, 1973 г. Арх. К. Кикутаке
Концепция воздушного города Япония, 1962 г. Арх. Исодзаки Арата
36б - Метаболизм 1960-1970 гг..pptx