6d7601c892642c35ac37daa4206e664a.ppt
- Количество слайдов: 15
Life Safety Networks A Parallel Network Approach Matthew K. Arthur, CISSP Director – Enterprise Networks Washington University in St. Louis ACUHO-I, 30 September 2007
AGENDA l Background l Requirements l Planning l Implementation l Current Status l Futures l Questions
BACKGROUND l WU l Network Setup - A Federated Model Core Network, Departmental Control l Facilities l - Pain and Frustration Layer 2 requirements, Departmental Control l Spring 07 Tragedy l CCTV Requirement for Residence Halls
REQUIREMENTS l General Principles of the WU CCTV Policy l l l Protection of individuals, including students, faculty, staff, and visitors Protection of University owned and/or operated property, and buildings, including building perimeters, entrances and exits, lobbies and corridors, … Verification of alarms and access control systems; Investigation of criminal activity and serious disciplinary activity, such as, for example sabotage of research projects; and Protecting the University interest against negligence liability
REQUIREMENTS l Camera Viewing Criteria l l l As a reaction to known threats and incidents (theft, assault, vandalism, sabotage, etc. ) Coverage of residential housing and parking areas. Coverage of emergency audio assistance stations located on University property Coverage of access control devices on University property Coverage of general property & assets Proactive coverage for heightened security needs (events, construction, ralies, etc. )
REQUIREMENTS l IT Requirements l l Latency, Jitter, Packet Loss, Network Availability, Mean to Repair Network Vulnerability: l l A disruption to security surveillance information represents another level of concern for physical security professionals. If the network can be proven to be reliable and secure, the technology would be embraced. Privacy and Security Sensitive Information (SSI): l A key advantage to an IP based CCTV system is the availability of live and archived video to system stakeholders. Network software and hardware design would need to ensure that video could be viewed, but not saved or stored under any circumstances.
REQUIREMENTS Must Be UP and accessible ALL the time l Student Network Can’t Be in Position to Overwhelm l Must Be Able to Provide Evidence Quality Video l Private, Secure, Private, Secure l
PLANNING l CCTV Policy + Chancellor’s Committee on CCTV + Spring 07 Tragedy = Meetings & Planning l CCTV + Facilities Hopes and Dream = Parallel, Private, Secure Network l AVC Facilities and AVC IS&T level meetings l Budget for Residential Implamentation
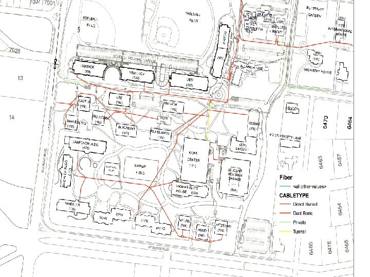
IMPLEMENTATION l POE Building Switches => Fiber Pick-up Switches => Core Router l Establish Fiber Routes l Configure Building Switches Private Address Space l CCTV, Monitoring, Access Control, & Laundry/Vending… l
IMPLEMENTATION l 38 Buildings l 132 Cameras l 46 POE Switches l 4 Fiber Pick-up Switches l 2 Monitoring Stations l Network Monitoring - NOC l IT Costs = $213 K (including fiber upgrades)
CURRENT STATUS l All Buildings Installed Prior To Move-In l Communications/Coordination Problems l Add-On’s Fraternity House Change Over l Parking Garage l New Venue in Bad Neighborhood l l Main Campus Planning l Fiber Infrastructure Problems…
FUTURES l Coordination w/ Medical School l Change From: Life Safety Network l To l University Services Network l l Financing USN and Fiber Upgrade l Traction Works…
QUESTIONS? ? ? l Matt Arthur l arthur@wustl. edu l 314. 935. 7388


