Эври, Сержи-Понтуаз и Мари-ля-Валле


























































































Эври, Сержи-Понтуаз и Мари-ля-Валле Наиболее общая черта новых городов - гибкий, открытый для роста и возможных мутаций характер их планировочных структур. Четкое разделение автомобильного и пешеходного движения, при котором традиционные улицы с проезжей частью и тротуарами нередко отсутствуют, а транспортные системы дифференцированы на автомобильные дороги и автобусные линии. Независимая от них сеть пешеходных улиц и эспланад проходит через центры кварталов. Принцип интегральной застройки, при котором в структуру отдельных участков города вводятся различные в типологическом отношении функциональные группы. Цель такой интеграции - добиться максимальной возможности выбора деятельности, создать атмосферу обжитости и оживленности, присущей историческим городам. Особое внимание при проектировании новых городов направлено на создание художественно организованной городской среды по разрабатываемым "сценарным планам". Диапазон композиционных средств, используемых для этой цели, очень широк - от характера самой планировочной структуры, масштаба застройки, дифференцированного по принципу его восприятия в пространстве и времени, детальной разработки архитектуры до уже широко апробированных во Франции приемов гуманизации жилой среды при помощи малых форм, городского оборудования и благоустройства.
Эври. Общая планировочн ая схема. 1 - квартал Эври -1; 2 - Шантье дю Кок; 3 - Корбей Эссон; 4 - Рис- Оранжис; 5 - Куркуронн; 6 - Вири- Шатийон; 7 - Ля Гранд Борн
Эври. Городской центр (план). 1 - префектура; 2 - Генеральный Совет; 3 - Дворец Правосудия; 4 - бюро; 5 - Агора; 6 - торговый центр; 7 - вокзал; 8 - парк; 9 - квартал Эври-1; 10 - площадь Террас; 11 - сектор Пассаж
Квартал Эври-1. Жилые пирамиды. Архитекторы М. Андро, П. Пара, Архитектурная группа garp. Благодаря своей пирамидальности квартал, несмотря на значительную плотность застройки, не кажется затесненным. Кроме того динамическая композиция архитектурных форм со сложными сдвигами террас создает бесконечное разнообразие интересных и острых ракурсов, воспринимающихся в уровне пешеходного движения. Живописность внутрикварталь-ных пространств еще более усиливается мастерским использованием небольших перепадов рельефа и разнообразными элементами благоустройства, способствующими индивидуализации отдельных зон.
Общий вид, варианты планировки квартир. 1 - прихожая; 2 - общая комната; 3 - кухня; 4 - спальня; 5 - терраса; 6 - кладовая
Эври-1. Пешеходная дорога 'Аллея дракона'. Скульпторы Б. и И. В. Аллеом
Для Эври выбран принцип линейно-радиальной организации. Развитие нового города осуществляется по нескольким осям, главная из которых проходит с северо-запада на юго-восток, объединяя территорию между автодорогой А-6 и Сеной. Северо-западная ось Вири-Рис-Грини проходит через существующую агломерацию Рис -Оранжис, зону отдыха Вири-Шатийон, связанную с Сеной и расположенным за ней лесом Сенар. Юго-восточная ось соединяет центр со старой застройкой Корбей - Эссон. Дополнительные оси идут вдоль долины Эссон и к соседнему городу Мелен-Сенар. Центральная часть между Куркурони и старым Эври представляет территорию, имеющую в плане букву "X", где ветви креста образуют кварталы значительной плотности, а промежутки между ними - озелененные пространства. Эти кварталы, окаймленные парками, в своем пересечении образуют городской центр. Берег Сены планируется оставить свободным от застройки, размещая здесь только базы отдыха и спорта. Для градостроительной структуры Эври характерно стремление избежать разрывов городской ткани, создать ощущение непрерывности городского пейзажа и одновременно сохранить большие зеленые пространства. Это положение осуществляется при помощи непрерывной застройки высокой плотности вдоль осей развития по принципу "интегрированного урбанизма" и озеленения территории, расположенной между этими осями. Дорожная сеть Эври построена на взаимосвязи нескольких уровней движения: скоростной сети, полностью обособленной от пешеходного движения, второстепенной сети движения и сети общественного транспорта, причем последняя автономна от других видов автомобильного движения. Для городских автобусов выделены специальные дороги, где остальные виды транспорта запрещены. Центральный квартал Эври (авторский коллектив под руководством архит. Дебрюйера) представляет в плане гигантский крест, четыре ветви которого соответствуют осям общественного транспорта. Каждая автодорога, ведущая в центр, заканчивается многоуровневым паркингом. Стремление противопоставить центр Эври Парижу, сделать его полюсом притяжения не только нового города, но и других частей Парижского района, способным в определенной степени соперничать с интенсивностью культурной жизни столицы, привело к решению этого квартала как особого архитектурного комплекса, объединяющего все функции традиционного городского центра: место встреч, торговля, зрелища, всевозможная информация и т. д. Французская критика характеризует подобную тенденцию, ставшую определяющей для большинства новых городов, как "возвращение к традициям в рамках новаторства". Особенно остро эта тенденция прослеживается в создании общественного комплекса Агора (архитекторы Ле- кутёр, Ришар), возрождающего в модифицированном виде градостроительные решения античных полисов.
На северо-западной границе агломерации Эври еще в 1967 - 1971 гг. был построен небольшой городок Ля Гранд Борн (архит. Э. Айо, ассистенты К. Лукашевич, Ф. Риети), архитектура которого заслуживает более детального рассмотрения, так как в нем был осуществлен один из первых опытов комплексного решения художественных проблем городской среды (площадь города 90 га, население 15 тыс. жителей, средняя плотность застройки 40 квартир на 1 га). Ля Гранд Борн состоит из двух относительно крупных частей: "Нижнего города", застроенного по принципу античных полисов одноэтажными блокированными домами с патио, и "Верхнего города"- треугольного участка, замыкаемого автодорогами. Этот район формирует шесть кварталов низкой этажности (3 - 4 этажа), различных по архитектурному образу, конфигурации плана и плотности застройки. (Низкая застройка обусловлена отчасти расположенной поблизости радиостанцией, исключающей строительство выше пяти этажей). Один из главных принципов, которым руководствовался Э. Айо в решении генерального плана - полный вывод автомобилей из внутригородских пространств. Все паркинги расположены на периферии, вдоль автодороги. Основные торгово-бытовые центры, нуждающиеся в развитых подъездных путях, группируются также по периметру участка, центр которого занят жилой застройкой. Жилая архитектура в Ля Гранд Борн представлена исключительно крупнопанельными домами с использованием незначительного количества сборных элементов (три типа различных панелей). Несмотря на такую скупую палитру конструктивных средств, архитектору удалось достичь большого разнообразия в сочетании архитектурных форм и внутриквартальных пространств. Новый город представляет одну из первых успешных попыток создания особого заранее запрограммированного "климата" городской среды, сложного городского мира со сложившимся и запоминающимся образом. В качестве средств художественной выразительности, определяющих эстетический климат города, Айо выдвигает не только привычные средства композиции (масштаб, ритм, пропорции, цвет и т. д. ), но и сенсорные воздействия среды. Так, по замыслу авторов, в некоторых кварталах должен быть слышен звук шагов; восприятие города должно нюансироваться различной фактурой мощения, которую человек чувствует при движении. Каждый квартал города персонифицирован. Разнообразная их планировка, индивидуализация цветом, элементами городского оборудования и произведениями пластических искусств создают разные и вместе с тем структурно родственные архитектурно-художественные "темы".
Ля Гранд Борн. Гл. архит. А. Эйо Генеральный план, жилая застройка. 1 - Верхний город; 2 - Нижний город; з-'Радары'; 4 - 'Лабиринт'; 5 - зона отдыха
Квартал "Лабиринт" образован изгибающимися в плане выпукло-вогнутыми непрерывными стенами трехэтажных домов. Эти стены то сближаются друг с другом, образуя интимные закрытые пространства, то расходятся, "затягивая" внутрь квартала зеленые лужайки межквартальных зон. Плавные волны "Лабиринта" находят отзвук в соседнем квартале "Родары", который формируется жилыми домами, имеющими в плане форму четверти круга. Форма домов и их разнообразная ориентация создают ту живописную пространственную сложность городской среды, которая, по мнению Э. Айо, необходима для обеспечения психологического комфорта жителей. Вдоль западной границы города расположены кварталы, основанные на прямолинейных формах плана. В застройке выбран тот же мелкий полуинтерьерный масштаб, позволяющий создать легко обживаемые, уютные городские пространства. Большое значение в формировании их архитектурно-художественного образа играет полихромия (железобетонные панели отделаны керамической плиткой различных оттенков). Приемы применения цвета здесь самые разнообразные - от "растяжки" цвета по его насыщенности до вертикальной перебивки протяженных фасадов контрастными цветовыми вставками.
Это самый ближний из пяти городов, предусмотренных Генеральной схемой развития Парижского района. Его создание преследовало цель уравновесить несколько однобокое стихийное развитие Парижской агломерации в западном направлении, сократить маятниковые миграции, которым были подвержены две трети населения этого района. Кроме того, выбор Марн-ля-Валле в качестве нового урбанистического центра был обусловлен близостью двух наиболее крупных парижских аэропортов Руасси и Орли. Расположенный вне вредных зон аэродромов Марн -ля-Валле должен разместить на своей территории их различные службы и предприятия. Город связан с Парижем скоростной автодорогой, железной дорогой и линией регионального метро Марн-ля-Валле - Сен-Жермен-ан-Ле, соединяющей через его центр западные и восточные пригороды столицы. Поездки из нового города в центр Парижа занимают около 20 мин. Планирование и строительство Марн-ля-Валле осуществляется общественной организацией EPAMARNE, созданной в 1972 г. В настоящее время Марн-ля-Валле выделяется из других новых городов Парижского района наибольшей последовательностью в реализации принятого первоначального варианта Генеральной схемы. Город находится на почти нетронутой урбанизацией территории, где отсутствие транспортных инфраструктур и промышленных предприятий благоприятствовало сохранению больших природных пространств, которыми славится этот район. Необходимость сохранения лесопарковых массивов привела к выбору линейной прерывистой структуры плана с относительно небольшими городскими единицами, связанными между собой линиями общественного транспорта. Общий характер застройки Марн-ля-Валле, резко отличающийся от Эври, довольно органично вытекает из необычной конфигурации самой территории, отданной под урбанизацию, и характера ландшафта. Город вытянут на 20 км с запада на восток от Нуази-ле-Гран до Гран Морен и только на 2 - 4 км с севера на юг между Марной и лесным массивом Креси-Арменвильер. Площадь нового города 15 тыс. га, причем более трети ее занято парками и лесами. Согласно Генеральной схеме, Марн-ля- Валле делится на четыре городских единицы, население каждой из которых должно достигнуть 40 - 150 тыс. жителей 1. Эти относительно автономные городские образования с завершенной структурой соединяются между собой в их центральной части линией регионального метро, а на южной периферии - скоростной автодорогой А-4. Расположение станций метро было определено с таким расчетом, чтобы большинство жилых районов и предприятий находилось в пределах десятиминутной пешеходной доступности от них (600 -800 м).
Марн-ля-Валле. а - общая планировочная схема: 1 - общегородской центр Нуази-ле-Гран; 3 - квартал Арш-Гведон; 4 - городской центр Женитои; 5 - лес Буа де ля Гранж; 6 - лесной массив Креси-Арменвильер
Марн-ля-Валле. б - городской центр Нуази-ле-Гран (план): 1 - бюро; 2 - региональный торговый центр; 3 - общественный центр 'Пьяцца'; 4 - жилая застройка; 5 - университет; 6 - городской парк; 7 - водоем; 8 - станция метро
Марн-ля-Валле. Городской центр Нуази-ле-Гран. Пешеходные террасы
Сержи-Понтуаз. а - общая планировочная схема; 1 - квартал Префектуры 2 - центр Пюизё; 3 - г. Понтуаз; 4 - район Пюизё; 5 - район Эраньи; 6 - район Отиль; 7 - зеленые зоны; 8 - железная дорога; 9 - автодороги; 10 - промышленные зоны; б - городской центр (план): 1 - префектура; 2 - административный комплекс; 3 - ратуша; 4 - торговый центр; 5 - социально-культурный комплекс; 6 - бассейн, каток; 7 - кинотеатр; 8 - высшее торгово-экономическое училище; 9 - станция автосервиса; 10 - железнодорожный и автобусный вокзалы; 11 - отель; 12 - почта; 13 - жилой комплекс; 14 - городской парк; 15 - паркинг; 16 - железная дорога; 17 - пешеходные дороги
Сержи-Понтуаз. 'Башня Молодоженов'. Архитекторы Ф. и М. Десланд. План
Сержи-Понтуаз. Школьный комплекс квартала плант. Архитекторы Ж. Реноди, Ж. Шюш, 1972. Общий вид
Сержи-Понтуаз. Школьный комплекс квартала плант. Архитекторы Ж. Реноди, Ж. Шюш, 1972. Интерьер Квартал Префектуры связан с другими кварталами Сержи (Марадас, Тулёз, Плант, Круа-Пти и др. ) при помощи разветвленной системы пешеходных дорожек и мостиков через автомобильные пути. Эти кварталы являются в первую очередь жилыми районами 1, центральное композиционное место в которых отводится школьным комплексам. Школы обычно размещаются вдоль пешеходных дорог и выделяются из относительно нейтральной жилой застройки повышенной пластичностью своих форм и полихромией. Подобная тенденция довольно характерна для французской архитектуры 1970 -х годов в целом, причем сами школы решаются, как правило, по принципу блокировки невысоких (часто в контраст с окружающей застройкой) объемов и не превышают 1 - 2 этажей.
Сержи-Понтуаз. Школьный комплекс квартала плант. Разрез. Макет класса В квартале Плант комплекс начальной школы (архитекторы Ж. Реноди, Ж. Шюш) состоит из блокированных и ярко раскрашенных оболочек в форме кристаллов, образующих классы, кабинеты и рекреации, расположенные в разных уровнях (конструкция - деревянный каркас с последующей обшивкой столярными плитами, оклеенными с внешней стороны брезентом). Структура школы решена в мелком "детском" масштабе, который в данном случае способствовал созданию игрового, привлекательного для детей образа.
Сержи-Понтуаз. Школьный комплекс квартала марадас. Архит. Ж. Панкреаш, 1972. Фрагмент фасада Школьная группа квартала Марадас (архит. Ж. Панкреаш) формируется серией свободно комбинируемых объемов и террас, выполненных из монолитного железобетона. Их пластическая артикуляция зрительно усиливается активной колористической разработкой (художник Ж. Ф. Ленкло). Отдельные объемы окрашены в различные интенсивные цвета, которые продолжаются и в интерьерах. Под рекреационными террасами школы расположен детский сад, центральные пространства которого освещаются зенитными фонарями, выходящими на эксплуатируемые кровли-террасы ярко окрашенными железобетонными объемами. Со школой интегрированы библиотека и несколько поливалентных залов, имеющих отдельные входы, которыми могут пользоваться как школьники, так и жители всего квартала.
Согласно Генеральной схеме, Мелен-Сенар делится на три городских образования - секторы Гран Мелен на юге, Ружо-Сенар на западе и Сенар-Вилленёв на севере. Эти вытянутые вдоль Сены городские единицы, отделенные от нее и друг от друга лесными массивами, должны включать, кроме новой застройки, также старые деревни и поселки. В отличие от Эври или Сержи-Понтуаз здесь нет четко выделенного единого общегородского центра. Таких центров в Мелен-Сенар несколько, причем их иерархия слабо выражена. Обычно они расположены на стыке уже существующей и только создающейся застройки и являются в первую очередь комплексами обслуживания. Одна из отличительных и одновременно более традиционных черт Мелен-Сенар - довольно четкое функциональное зонирование территории. Жилые районы здесь отделены от индустриальных зон, расположенных вдоль железной дороги, значительными зелеными массивами. Зоны отдыха и спорта тяготеют к лесам и Сене, где строятся туристические центры и водно-спортивные станции. Интеграция различных городских функций и служб происходит только в центре некоторых кварталов. Стараясь максимально использовать факторы ландшафта - самые большие зеленые массивы Парижского района - и обеспечить жителям прямой контакт с природой, архитекторы избрали основным типом застройки 1 - 3 -этажные индивидуальные и коллективные жилые дома. Зоны слабой плотности застройки планируются обычно вокруг старых деревень, индустриальных зон и лесов, а зоны средней и (в исключительных случаях) высокой плотности - рядом с крупными общественными комплексами, центрами секторов, вокзалами, университетами или вдоль осей городского транспорта.
Мелен-Сенар. Общая планировочная схема. 1 - квартал Плессис-ле- Руа; 2 - Плессис-ля- Форэ; з - Гранж-дю-Буа; 4 - Ле Куртиллере; 5 - Комб-ля-Виль Сюд; 6 - Лес Ружо; 7 - Лес Сенар
Сен-Кантен-ан-Ивлин. а-общая планировочная схема: 1 -общегородской центр; Городские единицы; 2 - Эланкур-Морепа; 3 - Кле де Сен-Пьер; 4 - Трапп; 5 - Куаньер; 6 - Гюи-анкур; 7 - зона отдыха; 8 - межгородская автострада; 9 - внутригородская автодорога; 10 - железная дорога
Сен-Кантен-ан-Ивлин. б - план городского центра Сэт Map: 1 - спортзал; 2 - дом для престарелых; для молодых рабочих; 3 - детский центр; 4 - Центр здоровья; 5 - паркинг; б - полиция; 7 - Дом для всех; 8 - сервис; 9 - ресторан, кино; 10 - торговая галерея; 11 - бюро; 12 - административный центр; 13 - культурный центр; 14 - бюро; 15 -18 - жилые дома; 19 - лицей и соццентр; 20 - библиотека
Сен-Кантен-ан-Ивлин. Центр Сэт Map. 'Дом для всех'. Архит. П. Венанси, 1975. Разрез, План. 1 - Поливалентный зал; 2 - сцена на открытом воздухе; 3 - зал собраний; 4 - вестибюль; 5 - бюро; 6 - мастерские; 7 - кафе; 8 - ресторан; 9 - кухня; 10 - гардероб; 11 - зрительный зал; 12 - пешеходный проход; 13 - клуб для пожилых
Сен-Кантен-ан-Ивлин. Центр сэт map. Фрагмент фасада В отличие от других новых городов график застройки Сен-Кантен предусматривает первоочередное создание второго по значению городского центра, расположенного в наиболее крупном районе Эланкур-Морепа, строительство которого к 1979 г. в значительной степени завершено. Центральный квартал этого района Сэт Map задуман как полюс притяжения значительной селитебной территории. Строительство квартала Сэт Map велось по единому градостроительному замыслу, предусматривающему создание непрерывной городской ткани, основанной на взаимопроникновении отдельных объемов, площадей, патио, улиц, эспланад и зеленых пространств (гл. архит. Ф. Десланд). Однако в рамках общих архитектурных требований к отдельным постройкам (в основном указание материала и высоты зданий) архитекторам, ведущим их строительство, предоставлялась достаточная свобода в выборе формального языка и композиционных решений
Сен-Кантен-ан-Ивлин. Центр Сэт Map. Пешеходная улица
Сен-Кантен-ан-Ивлин. Парк Кудраи. Архит. -пейзажист М. Коражу Именно последовательные попытки комплексного решения городской среды, ориентированной на человека, его потребности в предметно-пространственном окружении, с учетом и программированием восприятия этого окружения, - наиболее глубокие и интересные черты новых городов Парижского района. Опыт новой градостроительной политики отмечен заметной гуманизацией среды, однако в плане социального функционирования новые города оправдывают далеко не все надежды и прогнозы французских архитекторов. Многие негативные аспекты градостроительной практики послевоенного времени, отвергаемые и порицаемые в теории, сохраняются и в новорожденных урбанистических образованиях. К таким проблемам в первую очередь относятся их медленная заселяемость и маятниковые миграции значительной части населения. Далекими от осуществления оказываются и поиски социальной гармонии. Гигантская диспропорция жизненного уровня приводит к изоляции различных слоев населения и парализует усилия ликвидировать социальную сегрегацию архитектурными средствами.
Застройка квартала Дефанс. План. 1 - бюро, гостиницы; 2 - городская ось; 3 - жилые дома; 4 - высшая школа декоративных искусств; 5 - Высшая архитектурная школа; 6 - Дом культуры; 7 - префектура; 8 - парк; 9 - Дом молодых музыкантов; 10 - 'жилые стержни'; 11 - школьный комплекс им. М. Горького; 12 - дом для престарелых; 13 - центр промышленности и техники; 14 - 'форум' зоны А
Дефанс. Сектор А. общий вид застройки
Разрез по искусственной платформе. 1 - автодороги; 2 - автостоянки; з - метро; 4 - автобусы; 5 - техническая галерея
Дефанс. Сектор Б. Архитектурная школа. Архитекторы Ж. Калиш, Р. Салем. 1971. Общий вид
Дефанс. Сектор Б. Архитектурная школа. Архитекторы Ж. Калиш, Р. Салем. 1971. План
Кретей. Общая схема застройки. 1 - торговый центр, ресторан, кинотеатр; 2 - ясли; 3 - школа; 4 - универсам; 5 - спортивный центр; 6 - университет, 7 - префектура; 8 - Дворец правосудия
Кретей. квартал Аи о Муан. Архитекторы В. Митрофанов, Ж. К. Бернар
Одна из особенностей метода реализации урбанистической политики в Новом Кретее - централизация основных строительных полномочий в руках одного человека - главного архитектора города, задача которого состояла в координации работы различных специалистов (в том числе около 200 архитекторов), ведущих строительство отдельных кварталов и зданий. Урбанистическая структура Кретея тяготеет к линейной схеме. Отдельные кварталы и зоны города примыкают к внутриквартальной транспортной артерии - авеню генерала Де Голля - и трактуются как относительно независимые архитектурные образования со своими характерными силуэтами. Так, квартал Аи о Муан (архитекторы В. Митрофанов, Ж. К. Бернар) застроен системой живописно блокированных разноэтажных домов "Касба", квартал Префектуры - крестообразными в плане башнями, квартал Монтегю образован радиальными корпусами жилых домов, замыкающими внутриквартальное пространство с бассейнами, детскими и спортивными площадками, сгруппированными вокруг дефлекторов подземных гаражей, трактованных как полихромные скульптурные объемы - вертикальные доминанты дворовых пространств. Наибольший интерес представляет квартал Пале (архит. Ж. Грандваль), состоящий из 15 круглых в плане башен и кольцевых зданий, получивших за свою необычную растительную форму прозвище "кукурузных початков". Довольно необычна уже сама круглая форма для жилых односекционных зданий. Центр башен состоит из бетонного цилиндра с винтовой лестницей, и полукруглых коридоров, ведущих к лифтам и расположенным по кругу квартирам, имеющим трапецеидальную в плане форму, раскрытую во внешнее пространство (оси несущих продольных стен совпадают с радиусами башен). Особую пластическую остроту силуэту "початков" придают железобетонные оболочки балконов, расположенных в шахматном порядке и сильно вынесенных по отношению к стенам. Отдельные жилые районы Кретея связаны между собой системой пешеходных мостиков, дорожек, подземных переходов и эксплуатируемых крыш-террас малоэтажных общественных зданий, выполняющих роль своеобразных проходных эспланад, позволяющих попадать из одного квартала в другой, не пересекая автомобильных дорог. Новый Кретей представляет типичный для середины 1970 -х годов пример полихромии в архитектуре, когда стал широко использоваться не только природный цвет различных строительных и отделочных материалов (бетон, керамические плитки, кирпич, анодированный металл, стекло различных оттенков и др. ), но и прием раски зданий после окончания строительства в яркие, динамично соотносимые цвета, подчас дематериализующие архитектурную форму или придающие ей временный характер (это впечатление усиливается и из-за относительной нестойкости применяемых красок).
Кретей. квартал Аи о Муан. Архитекторы В. Митрофанов, Ж. К. Бернар
Кретей. 'Дома-початки'. План, разрезы
Кретей. Детский сад. Архитекторы Б. Фейпел, Э. Жолтовски Ж. Шарпентьер, худ. Вазарели, 1972
Иври жилой комплекс. архит. Ж. Реноди, 1971. Варианты планировки квартир
Аэропорт Руасси-ан-Франс. Гл. архит. П. Андрё, 1974. План, Разрез
Университет Париж I. На ул. Толбиак. Архитекторы М. Андро, П. Пара, Н. Селник, А. Гюван, 1973. План
Университет Париж I. На ул. Толбиак. Архитекторы М. Андро, П. Пара, Н. Селник, А. Гюван, 1973. Макет
Париж. Здание ЦК ФКП. Архитекторы О. Нимейер, Ж. Дерош, И. Шеметов, Ж. Пруве, Ж. Трико, 1972. План, разрез, Крыша-терраса
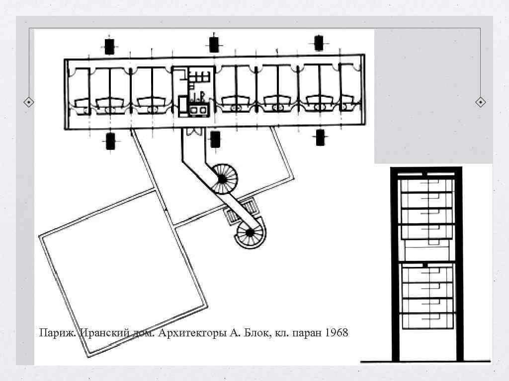
Париж. Иранский дом. Архитекторы А. Блок, кл. паран 1968
Париж. Иранский дом. Архитекторы А. Блок, кл. паран 1968
Квартал Тулуз-ле-Мирай
Супер-Ансамбль Тулуз-ле-Мирай. Генеральный план. Архитекторы Ж. Кандилис, А. Йосич, Ш. Вудс
Тулуз-ле-Мирай. Новые жилые массивы первой очереди строительства: Бельфонтэн, Рейнери, Мирай
Тулуз-ле-Мирай. Многоэтажные здания сложных очертаний. План
Тулуз-ле-Мирай. Объемно-пространственные формы застройки
Тулуз-ле-Мирай. Инфраструктура и озелененная зона - основные планировочные элементы
Тулуз-ле-Мирай. Сетка из шестиугольников - плановая основа построения многоэтажных жилых зданий
Тулуз-ле-Мирай. Различные 'сращения' разновысоких объемов зданий как средство организации непрерывных и многообразных пространств
Водрёй. Планировочная схема городского центра 1, 5 - школьные комплексы; 2 - административны е здания; 3 - детские учреждения; 4 - общежитие молодых рабочих; 6 - спортивный зал; 7 - торговый центр; 8 - стадион; 9 - промышленная зона; 10 - резервная территория; 11, 12 - магазины; 13 - паркинг; 14 - бассейн; 15 - Высшая сельскохозяйстве нная школа; 16 - библиотека; 17 - сад 'Гросс Борн'
Водрёй. Пешеходная улица
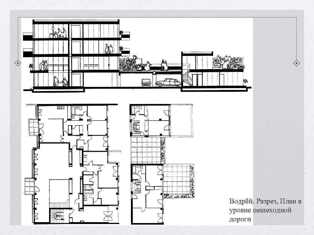
Водрёй. Разрез, План в уровне пешеходной дороги
Лилль-Эст. Генеральный план квартала Триоло. 1 - торговый центр; 2 - школьная группа; 3 - колледж; 4 - спортивный комплекс; 5 - жилая застройка; 6 - линия метрополитена; 7 - пешеходные дороги
Лилль-Эст. Пешеходная дорога Триоло. Архитекторы Б. Гогуа, К. Гислан, Ле Ван Ким
Лилль-Эст. Жилая застройка квартала Пон де Буа. Архитекторы А. Йосич, Ф. Кальза, Д. Иосич. Общий вид
Лилль-Эст. Жилая застройка квартала Пон де Буа. Архитекторы А. Йосич, Ф. Кальза, Д. Иосич. Разрез
Марсель. Новый жилой массив - 'Парк испанского короля', Схема генерального плана. Архитекторы Г. Жиле и Л. Олмета
Марсель. Новый жилой массив - 'Парк испанского короля', Схема генерального плана. Архитекторы Г. Жиле и Л. Олмета
Иль-Д'Або. Местный обслуживающий центр жилого комплекса Рош. Генеральный план. 1 - школа; 2 - торговый центр; з - многофункциональный зал; 4 - медицинское учреждение; 5 - площадь; 6 - культурный центр; 7 - амфитеатр; 8 - колледж; 9 - жилой дом; 10 - автостоянки; 11 - автоподъезд; 12 - сквер
Иль-Д'Або. Здание Эпида-Сканида. План
Гренобль-Эшироль. Генеральный план. 1 - квартал Арлекин; 2 - комплекс CEPASG; 3 - Городской парк; 4 - квартал 2; 5 - 'Олимпийская деревня'; 6 - комплекс 'Гранд Пляс'; 7 -квартал 3; 8 - квартал Лез Ессар (Эшироль); 9 - квартал Сюрье (Эшираль); 10 - квартал Ле Гранж (Эшироль); 11 - парк Спорта; 12 - зоны приложения труда
Новый Гренобль. Квартал Арлекин. Комплекс Cepasg. Архитекторы Р. Пюпа, М. Потье, Б. И О. Феликс- Фор, Ж. Д. Дюпюи, 1972, Пешеходные мостики, соединяющие улицу с детскими садами
Гренобль. Дом культуры. Архит. А. Вожански. Интерьер План 1 - крытая терраса; 2 - верхний уровень вестибюля; 3 ? - зрительный зал на 1253 мест; 4 - дискотека, библиотека; 5 - закусочная; 6 - фойе
Бордо архитектурная школа в бордо. План первого этажа. 1 _ главный вход; 2 - вход для преподавателей и администрации; связь с автостоянкой Р. 2; 3 - вход для учащихся с фойе на этаже; связь с автостоянкой Р. 3; 4 - амфитеатр; 5 - выставочный зал; 6 - архитектурные мастерские; 7 - мастерские отделения пластических искусств; 8 - документация. 9 - отделения общеобразовательного обучения и администрация
В коммуне Таланс, построена новая Архитектурная школа, рассчитанная на 400 учащихся (архит. К. Ферре). Школьный комплекс состоит в основном из одноэтажных структур, среди которых доминирует выставочный зал, трактованный в виде пирамиды. Композиция комплекса развивается вдоль обширной крытой галереи (открытой с одной стороны), связывающей различные корпуса школы, что позволяет видеть лесной массив. Использование объемов криволинейных очертаний, усиливающих перспективные эффекты, позволило оживить композицию и органически вписать ее в природный ландшафт. На галерею выходят главный вход, ведущий на приподнятую платформу, обслуживающую выставочный зал, называемый "пирамида", амфитеатр и кинозал на 500 мест; здесь же находятся входы для администрации и преподавателей, отдельно для студентов, а также коммуникации, которые непосредственно связаны с автостоянками, рассчитанными на 220 мест. Кроме того, на галерею открываются сооружение круглой формы, включающее квартиру консьержа и 24 аудитории, лаборатории физики, химии и структур, зал совета управления, административные помещения, квартиру директора, а также общежитие студентов; архив; четыре архитектурные мастерские; студии изобразительного искусства; технические помещения.
Туристический центр Гранд Мотт. Генеральный план 1 - табун лошадей; 2 - насосная станция; з - жандармерия; 4 - автовокзал; 5 - контора; 6 - школа; 7, 8, 12, 26, 33, 37, 39, 47, 48 - торговые центры; 9 - спортплощадка, цирк; 10 - спортшкола; 11 - зал многоцелевого назначения; 13 - водный спорт; 14 - парк для детей; 15 - игровые площадки, клуб; ресторан и т. д. ; 16 - талассотерапия; отель; 17 - начальная школа парусного спорта; 18 - детский сад; 19 - культурный центр; 20 - общественный парк выставка; 21, 43 - спорт; 22 - частная марина; 23 - отель типа 'бунгало'; 24, 46 - бассейн; 25 - благоустроенный пляж; 27 - ресторан; 28 - пешеходные и верховые прогулки; 29 - мотель; 30 - станция обслуживания; 31 - отель для семейных; 32 - ночное кафе; 34 - эспланады; 35 - административный центр; 36 - культурный центр; 38 - отель; 40 - зимнее хранение садов; 41 - зона обслуживания; 42 - контора порта; 44 - казино, театр; 45 - бар-ресторан
Гранд-Мотт. Террасообразные формы жилищ. Гранд-Мотт. Солнцезащитные экраны криволинейных очертаний
Гранд-Мотт. Жилой дом - пирамида. Архит. А. Кан. Фасад, план
Гранд-Мотт. Отель Франтель. Архит. Ж. Балладюр. План Разрез. 1 - комната (номер); 2 - ванная; 3 - туалет; 4 - умывальная с туалетом; 5 - кладовая
Порт Камарг - Новый приморский курортный центр. Архит. Ж. Балладюр. Общий вид Особенности природного ландшафта - равнинная местность, сильно изрезанная каналами, обилие прудов и озер с множеством небольших островов (что потребовало производства большого объема земляных работ для намыва искусственных участков под застройку) - привели главного архитектора Ж. Балладюра к разработке проекта нового приморского городка, всецело приспособленного для водного спорта и представляющего собой взаимосвязанную систему поселков - марин, расположенных на морском берегу, искусственных островах и на сваях. Здесь получили максимальное линейное развитие причалы, а также были учтены направления господствующих ветров.
Кап Д'Агд. Архит. ле Кутёр. Генеральный план. 1 - небольшой порт Бреску; 2 - аванпорт; 3 - порт захода; 4 - рыбацкий порт; 5 - главный порт; 6 - остров Сен-Мартэн; 7 - порт Сен-Мартэн; 8 - 'марины'; 9 - порт Люно; 10 - дома коллективного типа; 11 - кампинг автоприцепов; 12 - зона коллективных домов второй очереди строительства; 13 - зона культурного и административного центра; 14 - жилища индивидуального типа; 15 - крупный автоперекресток в центре города; 16 - виллы; 17 - пляши; 18 - отель на 300 мест; 19 - отель на 500 мест; 20 - отель и мотели; 21 - застройка вокруг акватории; 22 - автостоянки; 23 - парки
Кап Д'Агд. Архит. ле Кутёр. План городского центра
Порт Амбонн На восточной окраине Кап д'Агд в 1965 г. приступили к возведению порта Амбонн, уникального "городка обнаженных", так называемого "ситэ напорист" (архит. Ф. Лопез). Этот обширный комплекс рассчитан на 7 тыс. любителей отдыхать в обнаженном виде. Особенности, присущие характеру "отдыха обнаженных", и специфика местных природно-климатических условий предопределили замкнутую объемно-пространственную структуру необычного городка, изолированного от внешней среды и получившего своеобразную организацию пространства на основе применения системы взаимосвязанных протяженных объемов криволинейного очертания в плане. Композиционное ядро построенного квартала - внутренний парк с торговым центром, занимающим площадь 4 тыс. м 2; его одноэтажные объемы магазинов образуют замкнутый круг - озелененный и обводненный дворик. Жилища, полукольцом охватывающие центральное пространство, ориентированы на водные поверхности и зеленый ковер парка. 150 квартир, распределенных на трех уровнях этого ступенчатого объема, имеют благоустроенные террасы, непосредственно связанные с жилыми комнатами и внешней средой. Главный внутренний фасад с висячими садами получил профиль среза в 45° с тем, чтобы обеспечить хорошую инсоляцию квартир и широкий обзор из них. При каждой квартире имеется гараж, размещенный с внешней стороны этого развернувшегося по дуге окружности оригинального архитектурного объема.
Лекат-Баркарес. Архит. Ж. Кандилис. Генеральный план свайные жилища- 'Марины' Лекат-Баркарес. Архит. Ж. Кандилис. Общий вид
Лекат-Баркарес. Одно-, двухэтажные жилые дома-виллы. План
Лекат-Баркарес. Жилища для отдыха, отлитые из пластмассы. Варианты компоновки
Лекат-Баркарес. Общий вид застройки с 'Аллеей искусств' В глубине территории курорта, между морским побережьем и внутренней водной системой, распластались жилые дома замкнутой объемно-планировочной композиции, с внутренними озелененными и обводненными двориками. Это так называемые "греческие" кварталы, которые при взгляде на них сверху напоминают сетчатую ткань с белым геометрическим рисунком, покрытую темными пятнами зеленых насаждений. Колористическое обогащение композиции достигнуто введением охристых, пурпуровых и розовых тонов. Разновеликие и тесностоящие кубы с террасами, окружающие патио, формируют жилища, которые могут вмещать в себя до 8 квартир. Здесь мощеные узкие улочки теряются в лабиринте маленьких, хорошо затененных площадей. Это самые недорогие жилища на всем побережье.
Лекат-Баркарес. Полифункциональные структуры (схема)
Курорт Сан- Киприен. Архитекторы Э. Бодуэн, И. Женар. Общий вид. Генеральный план
'Марина - залив ангелов'. Один из корпусов курорта
Курортный комплекс - 'Марина - залив ангелов' 1, 2 - дороги; з - въезд на территорию курорта; 4, 5, 6, 7 - жилые массивы; 8 - набережная для прогулок; 9 - сады; 10 - торговый центр вдоль набережной; 11 - международный отель; 12 - бассейн; 13 - администрация порта; 14 - спуск на воду лодок; 15 - хранение лодок и судов; 16 - причалы; 17 - пляж; 18 - яхтклуб
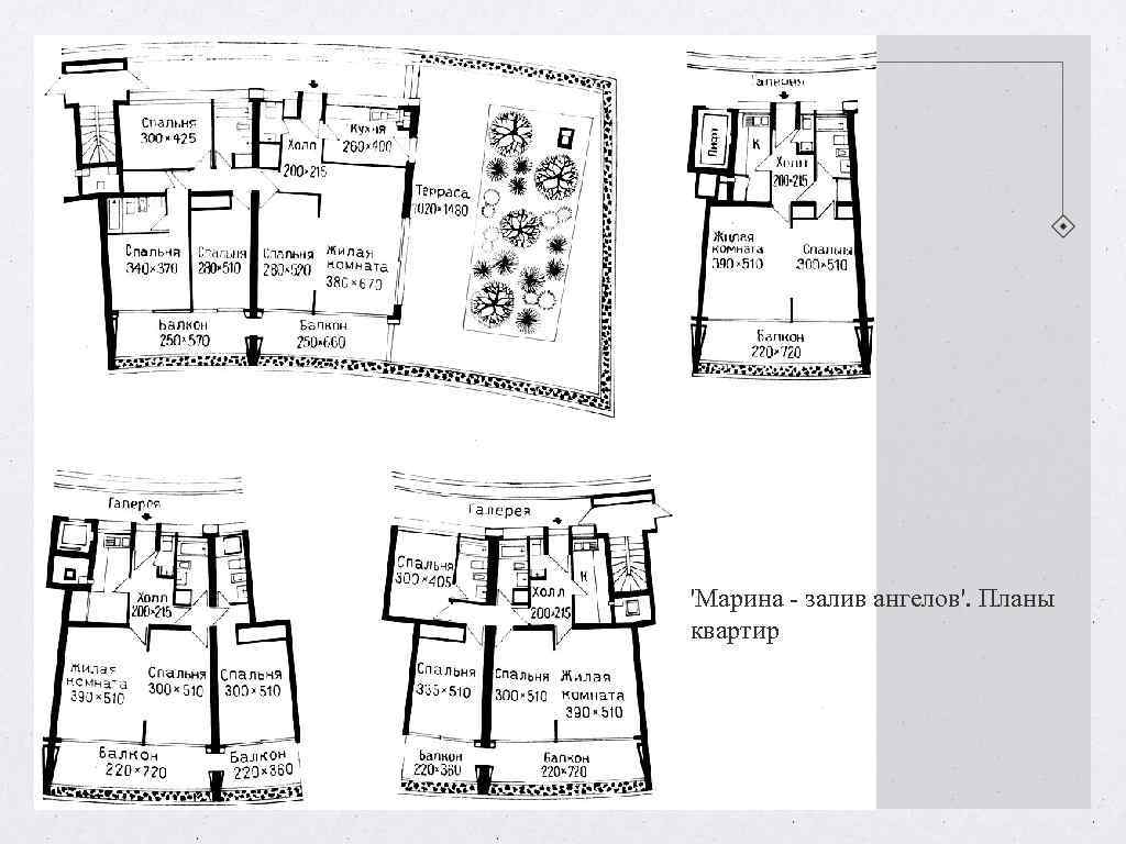
'Марина - залив ангелов'. Планы квартир
'АРК-1800'. Фасад и план
Деревня отдыха 'Шантель'. 'АРК - 1800'. Архитекторы Тейлефер и Линхард. Генеральный план
Поселки и дома отдыха. Генеральные планы. 1 - Сутьер Бесс (департамент Пюи-де-Дом); 2 - Гуретт (департамент Атлан тические Пиренеи); 3 - Шамбона (департамент Ардеши); 4 -Ла Коль-Сюр-Лу (департамент Приморские Альпы); 5 - Гидель (департамент Морбиан)

