9153afb2a06776f973bfb617469d1417.ppt
- Количество слайдов: 65
DI – 34231 KOLOKIUM/Pra Tugas Akhir DESAIN INTERIOR
1. PERENCANAAN MATERI PEMBELAJARAN MENGACU PADA GBPP/SAP • Materi perkuliahan : sesuai dengan GBPP/SAP 2. PERENCANAAN STRATEGI PEMBELAJARAN DAN TUGAS/KUIS • Strategi pembelajaran – Ceramah mimbar – Diskusi kelompok – Responsi / Asistensi – Tugas Rumah Mandiri • Jumlah Tugas, latihan dan kuis yang akan diberikan • Tugas Mingguan : 5 tugas • Jenis tugas • Tugas Proposal Proyek Kajian • Tugas Jadwal Kerja • Tugas Studi literature • Prosentase Penilaian berdasarkan : – Tugas (sebutkan masing-masing prosentase tugas bila ada lebih dari satu tugas) = 50 % – UTS =15 % – UAS = 25 % – Absen = 10 %
3. JADWAL KEGIATAN SETIAP PERTEMUAN SESUAI KALENDER AKADEMIK No. Tanggal pertemuan 1. I 2. II 3. III 4. IV 5. V 6. VI 7. VII Ujian Tengah Semester 8. VIII Asistensi Bab II 9. IX Kuliah Umum (dosen tamu 2)dan asistensi draft Bab. III 10. X Asistensi Bab. III, Analisis masalah 11. XI Asistensi Bab. III, Analisis masalah 12. XII 13. XIII 14. XIV 15. XV Materi yang diberikan setiap pertemuan Introduksi, Pengantar Kuliah, Peraturan, penjelasan SAP, tugas 2, jadual dan bobot nilai dsb. Studi literatur, survey Programming, strategi pemilihan judul; lingkup kajian proyek, proposal judul; Studi literatur, survey Kuliah umum (dosen tamu 1), Laporan tudi literatur dan survey. Studi literatur, survey; Menjelaskan Sistematika penulisan laporandan evaluasi Proposal Judul Proyek, draft Bab I Asistensi Bab I, Latar Belakang, Rumusan masalah, Ruang Lingkup Perencanaan dan Tujuan Perencanaan Asistensi draft Bab II; Dasar Pemikiran; Tujuan Umum, Tujuan Khusus Kuliah Umum (dosen tamu 3); Asistensi draft Bab. VI: Pedoman Desain Asistensi Bab. IV: Pedoman Desain; Melengkapi Skema dan Bagan-bagan Menyusun dan evaluasi draft laporan lengkap Ujian Akhir Semester (ujian presentasi Kolokium)
4. PEDOMAN PENSKORAN • Setiap tahap programming direkapitulasi dengan penilaian sbb: • Tahapan programming memiliki bobot penilaian sesuai jadwal yang disepakati. • Setiap tahap programming diwajibkan melalui proses asistensi disertai bukti kartu asistensi yang ditandatangani oleh dosen pembimbing. • Mahasiswa diperkenankan mengikuti UTS apabila telah melalui proses asistensi minimal 3 (tiga) kali dan diperkenankan mengikuti UAS apabila telah melalui asistensi minimal 6 (enam) kali. • Tata cara penulisan tugas dan laporan harus berdasarkan kaidah-kaidah penulisan ilmiah. • Tahap analisa Masalah diadakan presentasi kolokium guna mendapatkan masukan dalam proses programming. • Khusus untuk ketepatan Waktu pengumpulan Tugas, diberikan reward berupa tambahan nilai bagi yang mengumpulkan tugas lebih cepat / awal dari yang ditentukan diberikan punishment bagi yang mengumpulkan terlambat dengan pengurangan nilai.
Kolokium n Silabus: Mengembangkan dan menerapkan kemampuan berfikir rasional, logis, bersistem dan berorientasi pada optimasi hasil akhir menggunakan metode programming dalam tahap awal perancangan proyek tugas akhir. n Tujuan Mata Kuliah - Mengembangkan kemampuan berfikir komprehensif dan metodologis dalam penelusuran masalah perencanaan (problem seeking). - Menerapkan sikap profesional dan dapat mempertanggungjawabkan secara ilmiah dalam mengambil keputusan-keputusan desain
“Everyone thinks of changing the world, but no one thinks of changing himself. ” - Leo Tolstoy
To design requires talent, But to program requires genius…. . LE CORBUSIER
Daftar Pustaka I. Pustaka Utama: n. Akiyama, Jiro, Small & Luxury Hotels as a Home, Process Architecture Co. Ltd. , Japan, 1993 n Lawson, Fred, Hotels & Resorts, Planning, Design and Refurbishment, Architectural Press, Oxford, 1999. n Rutes, Walter A, Hotel Planning and Design, A guide for Architects, Interior Designer, and Hotel executives, The Architectural Press, London, 1988. II. Pustaka Sekuder: n Ching, Francis DK, Interior Design Illustrated, , Van Nostrand Reinhold, 1985. n Reznikoff, S. C. , Interior Graphic and Design Standards, Whitney Library of Design, New York, 1986. n Mc. Guinnes, Stein, Reynolds, Mechanical and Electical Equipment for Buildings, 6 th ed. , John Wiley & Sons, Inc. , Singapore, 1981. III. Pustaka Metodologi: n Pena, William, Problem Seeking, Washington D. C. , AIA Press. 1989. n Ballast, David K. , A. I. A, Interior Design Reference Manual, Professional Publications, Inc. Belmont, CA, 1992. IV. Jurnal, majalah: n Marga, Nama, (Tahun), Judul tulisan, nama jurnal/majalah, volume, halaman V. Website: n Marga, Nama, Judul tulisan, www. . . , tanggal dan jam diunduh
MASALAH
JENJANG PEMBOBOTAN MATA KULIAH MERENCANA INTERIOR M K BOBOT DI I (ONE ROOM APRTEMENT) DI III (RUMAH TINGGAL) (SPECLTS SHOPS) DI IV (OFFICE) DI V (PUBLIC FACILITIES) T. A. (PUBLIC FACILITIES) PEMAKAI 1 ORANG 3 -7 ORANG 20 - 50 ORANG 100 - 200 ORANG 500 - 1000 ORANG 1000 - 2000 ORANG ORGANISASI KECIL SEDANG BESAR KOMPLEKS – MULTI KOMP. SIFAT PROYEK HUNIAN / PERSONAL KOMERSIAL / PUBLIK OFFICE SPACE PUBLIC SPACE BESARAN RUANG 12 - 35 M 2 120 - 240 M 2 40 - 60 M 2 700 - 1000 M 2 1200 - 2000 M 2* PENCITRAAN PERSONAL PRODUK & PELAYANAN LEMBAGA / PERUSAHAAN & PELAYANAN PENDEKATAN PARSIAL SISTEMIK HOLISTIK KOMPLEKSITAS MENINGKAT * Tidak mutlak bila pertimbangan pembobotan filosofis dan pencitraan menjadi prioritas HOLISTIK
LINGKUP KAJIAN PROYEK DESAIN INTERIOR MANUSIA DENGAN SARANA HUNIAN MANUSIA DENGAN SARANA PERKANTORAN MANUSIA DENGAN SARANA AKOMODASI MANUSIA DENGAN SARANA PENDIDIKAN MANUSIA DENGAN SARANA IBADAH MANUSIA DENGAN SARANA REKREASI MANUSIA DENGAN SARANA KESEHATAN MANUSIA DENGAN SARANA TRANSPORTASI
STRATEGI PEMILIHAN JUDUL n INTEREST n ACCESSIBILITY n CAPACITY n FEASIBILITY
PROPOSAL PERENCANAAN Latar Belakang Masalah Perencanaan (Kejadian, fenomena dan mengapa masalah tersebut diambil sebagai topik perencanaan) Rumusan Masalah Perencanaan (Permasalahan: apa yang menjadi masalah perencanaan) Batasan Masalah Perencanaan (Fokus masalah perencanaan) Tujuan Perencanaan (Menjawab Permasalahan perencanaan) Metode Perencanaan (meliputi pengumpulan data dan informasi mengenai suatu masalah untuk dianalisa, dirumuskan dinyatakan dengan jelas untuk menghasilkan landasan desain) Daftar Literatur
Menurut Edmunt B. Feldman ada beberapa jenis kritik, tinjauan atau tulisan mengenai fenomena seni rupa (termasuk desain) n n Kritik Jurnalistik Pembahasan seni/desain di suratkabar Kritik Pendidikan Pembahasan seni/desain di lingkungan pendidikan / sekolah Kritik Keilmuan Pembahasan seni/desain secara ilmiah dan obyektif, berdasarkan azas-azas keilmuan yang disepakati Kritik Populer Pembahasan yang dilakukan oleh orang awam dengan bebas, tanpa batasan keilmuan yang ketat.
Ada tiga unsur yang menjadi dasar dari sebuah kritik atau tinjauan, yaitu : 1. Formalistik Kata ‘formalistik’ berasal dari kata form (=wujud). Membahas karya dari sudut pandang kualifikasi formal atau wujud fisik desain, misalnya : bentuk, skala, warna, dan sebagainya. 2. Ekspresifistik Membahas karya dari sudut pandang kemampuan karya mengungkapkan suatu tema atau pesan. 3. Instrumentalistik Membahas karya dari sudut pandang fungsi karya tersebut sebagai instrumen atau alat untuk mencapai tujuan sosial, politik, ekonomi maupun psikologis.
Ada empat tahap yang setidaknya harus ada dalam sebuah kritik atau tinjauan yang baik n Tahap deskripsi Terlebih dahulu mengamati dan menguraikan unsur-unsur sebuah karya (desain interior) tanpa membuat penilaian atau kesimpulan n Tahap analisa formal Membahas bagaimana elemen-elemen dasar dalam suatu karya terjalin menjadi sebuah karya (desain interior) n Tahap interpretasi menafsirkan makna yang terkandung dalam suatu karya (desain interior) n Tahap evaluasi Melakukan evaluasi lebih luas : membandingkan suatu karya (desain interior) dengan karya-karya pendahulunya, peran dan makna karya tersebut dalam konteks lingkungan sosial pada jamannya.
Pengertian Konsep Dalam setiap kegiatan perancangan yang dilakukan oleh desainer interior, dari perancangan interior kamar tinggal sampai dengan perancangan interior bangunan fasilitas publik yang kompleks, pemikiran desain muncul dari satu ide atau satu kumpulan gagasan yang disebut konsep. n Konsep adalah suatu gagasan atau pemikiran – sekecil apapun, atau yang tidak rinci – merupakan pemikiran awal, atau serangkaian pemikiran dari suatu proyek. n Konsep dalam ilmu desain adalah tahap awal dalam semua kegiatan- kegiatan yang melibatkan kemampuan kreatifitas. Adakalanya sebuah konsep diperoleh dari informasi dan adakalanya konsep berawal dari sentuhan inspirasi – kemampuan berpikir membuat kesimpulan yang cepat dari informasi fakta-fakta, pengalaman empirik atau dari kebutuhan untuk memecahkan suatu masalah (Tate & Smith, 1986: 97).
Pengertian Konsep Programatik dan Konsep Desain n Konsep Programatik (programmatic concept) adalah suatu bentuk persyaratan mengenai bagaimana suatu masalah dapat dipecahkan, atau suatu kebutuhan dapat terpenuhi. n Konsep Desain (design concept) adalah tanggapan fisik tertentu tentang bagaimana suatu konsep programatik dapat dikembangkan.
Berfikir konseptual n adalah sebuah proses, yaitu berfikir yang bertujuan memecahkan suatu masalah. Agar semua masalah yang akan dipecahkan terpetakan dengan baik, masalah yang kompleks dapat diidentifikasikan dengan jelas dan mudah difahami, maka dibutuhkan suatu metoda. n Berfikir konseptual dalam arsitektur dan desain interior untuk memecahkan masalah desain dikenal melalui metoda programming (programming method).
PROGRAMMING n adalah proses perencanaan yang meliputi pengumpulan data dan informasi mengenai suatu masalah untuk dianalisa, dirumuskan dinyatakan dengan jelas untuk menghasilkan landasan desain. Menetapkan suatu masalah terlebih dahulu sebelum sebuah solusi dilakukan ( Ballast, 1992: 33). n Programming adalah melakukan analisa masalah (problem analysis), sedangkan design adalah sintesa masalah (problem synthesis) (Peña, 1978: 18). n Architectural programming dinyatakan Edith Cherry (1999: 3) sebagai penelitian dan proses pengambilan keputusan yang menetapkan masalah untuk dipecahkan melalui desain.
Metoda programming Terdapat beberapa metoda programming yang dapat digunakan untuk menyusun informasi dan panduan yang dijadikan landasan desain. Untuk proyek-proyek bangunan hunian dan bangunan komersial yang sederhana, suatu program hanya terdiri dari beberapa kalimat yang menyatakan tujuan sasaran proyeknya, suatu daftar kebutuhan ruang dan furniture yang dibutuhkan. Pada proyek yang besar seperti kantor pusat korporasi maka programnyapun berisi informasi yang lebih rinci mengenai kebutuhan organisasi untuk masa kini dan masa yang akan datang. Apabila suatu program dianggap belum lengkap, adalah tanggung jawab desainer interior untuk menentukan seberapa banyak informasi yang perlu dikumpulkan dianalisa sebelum desain dimulai.
PROSES LIMA TAHAP PROGRAMMING 1. Menentukan sasaran / tujuan 2. Mengumpulkan fakta – fakta 3. Menjabarkan dan menguji konsep 4. Menentukan kebutuhan dan 5. Menyatakan masalah (Ballast, 1992: 33)
1. Menentukan Sasaran / tujuan (Establishing goals) Mengindikasikan apa (what) yang dikehendaki oleh siapa pemakai / klien (who), mengapa (why), dimana (where), kapan (when) dan bagaimana (how). Langkah ini penting untuk menentukan arah dari konsep programatik yang pada akhirnya memberikan usulan penerapan secara fisik untuk mencapai sasaran / tujuan desain. n Sebagai contoh, sasaran / tujuan seorang pemilik restoran adalah untuk menambah pendapatan, salah satunya dengan mempercepat pergantian pengunjung yang datang. Maka fasilitas ruangnya didesain agar pengunjung tidak berlama-lama sewaktu menikmati makanannya.
2. Mengumpulkan fakta-fakta (Collecting facts) Fakta-fakta yang menggambarkan kondisi-kondisi eksisting dan persyaratan dari tuntutan permasalahannya seperti karakteristik pemakai, aktifitas pemakai, jumlah pemakai yang akan ditampung, kebutuhan pemakai, kondisi bangunan, persyaratan bangunan dan sebagainya. n Jumlah fakta-fakta ini tidak terbatas, seorang desainer dituntut tidak hanya mampu untuk mengumpulkannya, tetapi juga harus mampu menyusunnya secara sistematis agar dapat bermanfaat dalam proses desain.
3. Menjabarkan dan menguji konsep (Uncovering concepts) Proses programming dapat mengembangkan pemikiran-pemikiran / gagasan-gagasan abstrak yang merupakan solusi fungsional dari masalah yang muncul tanpa mendefinisikan pemahaman-pemahaman secara fisik yang digunakan untuk memecahkan masalah.
Contoh 1 Menjabarkan dan menguji konsep (Uncovering concepts) n “Menyediakan tingkat keamanan menengah sebuah toko untuk melindungi benda jual dari pencurian tanpa membuat metoda pengamanan yang kasat mata”. Pernyataan tersebut menanggapi masalah khusus yang berkaitan dengan keamanan, dengan tujuan mengatasi pencurian. Pernyataan tersebut adalah pernyataan konsep programatik (programmatic concept).
Untuk memenuhi konsep programatik tadi ada beberapa konsep desain (design concept) yang dapat dikembangkan dengan kemungkinan-kemungkinan sebagai berikut: 1. Menyediakan tempat pembayaran (cashier) dekat sirkulasi keluar-masuk pengunjung toko 2. Menyematkan alat sensor elektronik yang dapat memindai benda jual dan alat sensor pada pintu keluar 3. Memamerkan / mendisplay hanya contoh benda jual saja untuk dipilih pembeli, dan barang yang akan dibeli sesuai dengan pilihan akan diambil dari gudang stock.
Contoh 2 Menjabarkan dan menguji konsep (Uncovering concepts) n Sebagai ilustrasi yang kedua: Pemilik rumah sering mengadakan perjamuan atau pesta, namun memiliki putra-putri usia sekolah. Masalahnya adalah bagaimana solusi desain agar kegiatan perjamuan tersebut tidak mengganggu privasi putra-putrinya.
Pada gambar dibawah ini memperlihatkan 5 (lima) kemungkinan konsep desain (design concept). Diagram memiliki implikasi fisik yang sesungguhnya. Pemisahan area orang tua dan area anak menjadi dua blok bangunan, masing-masing memiliki pintu masuk yang dihubungkan oleh sebuah koridor (diagram A) (A) Memperlihatkan tanggapan fisik yang lain, dengan kedua area dalam bangunan yang sama namun dipisahkan oleh daerah penyangga (buffer zone) (diagram B) (B)
Diagram (C), (D) dan (E) memperlihatkan pemecahan desain yang lain. (C) (D) (E)
4. Menentukan kebutuhan (Determining needs) Langkah proses programming ini menyelaraskan tuntutan klien / pemakai yang mencakup kebutuhan terhadap batasan yang ada atau menentukan batasan-batasan berdasarkan berbagai tujuan dan kebutuhan yang telah ditetapkan. Dalam tahap ini “keinginan” (wants) harus dapat dipisahkan dari “kebutuhan” (needs). Karena umumnya klien / pemakai ingin mendapatkan lebih dari yang dapat mereka mampu sediakan, pernyataan yang nyata dari kebutuhan-kebutuhan yang obyektif dapat membantu menghindari persoalan-persoalan baru yang akan muncul kemudian.
5. Merumuskan Masalah (Stating the problem) Merumuskan pokok masalah secara ringkas setelah melalui ke-empat langkah sebelumnya. Merumuskan masalah menjembatani antara programming dan proses desain. Isinya adalah pernyataan-pernyataan yang disepakati bersama-sama antara klien dan penyusun program yang menggambarkan aspek-aspek yang sangat penting berkaitan dengan masalah desain dan diajukan sebagai landasan desain serta sebagai kriteria untuk mengevaluasi pemecahan masalah. Setidaknya paling sedikit terdapat 4 (empat) rumusan masalah, masing-masingmempertimbangankan 4 (empat) hal yang utama yaitu bentuk, fungsi, ekonomi dan waktu.
ANALISA - SINTESA n Analisa masalah (problem analysis), adalah menguraikan masalah menjadi komponen masalah yang terkecil. n Sintesa masalah (problem synthesis), adalah meletakkan komponen masalah dengan komponen-komponen lain sehingga keterkaitannya membentuk sistem yang dapat dijelaskan secara obyektif dan ilmiah
PEMROGRAMAN (PROGRAMMING) n Apa yang dihasilkan melalui programming? INFORMASI, bukan desain n Apa tujuan programming? Mengumpulkan, menganalisa data dan informasi yang berkaitan dengan proyek desain n Siapa pelaku programming? Pemberi tugas dan designer n Siapa yang memerlukan programming? - Pemberi tugas: sebagai pedoman pengendalian dan pengawasan - Designer: sebagai referensi dalam pengambilan keputusan desain
KERANGKA BERFIKIR PROGRAMMING RUMUSAN MASALAH PENGENALAN MASALAH KRITERIA KENDALA ANALISA MASALAH PEDOMAN DESAIN
KERANGKA BERFIKIR PROGRAMMING SPACE PLANNING DESIGN RUMUSAN MASALAH PENGENALAN MASALAH KRITERIA KENDALA ANALISA SINTESA KEPUTUSAN DESAIN PEDOMAN DESAIN PROGAMMATIC CONCEPT Logical Thinking DESIGN CONCEPT Creative Thinking WORKING DRAWING Communication Thinking
RUMUSAN MASALAH PENGERTIAN, DEFINISI (STUDI LITERATUR) PENGERTIAN TAMBAHAN (SPESIFIK) PEMBATASAN
PENGENALAN MASALAH What, Who, Why, Where, When; 1 H: How) Latar Belakang Permasalahan Identifikasi Masalah Perencanaan (Permasalahan: apa yang menjadi masalah perencanaan) Batasan Masalah (Fokus masalah perencanaan) > Kasifikasi Proyek, Pemakai > Tuntutan - Waktu - Tempat - Ekonomi Tujuan Perencanaan (Menjawab Permasalahan perencanaan) menurut Dimensi - Pemilik - Pemakai - Masyarakat (5 W:
KRITERIA Profil Lembaga / Perusahaan - Visi, Misi, Filosofi Perusahaan - Jenis Usaha /Pelayanan - Sejarah Organisasi - Struktur Organisasi / Hierarki - Jumlah Personil dan deskripsi kerja - Tata alur kerja dan hubungan kerja Pelayanan - Prosedur - Persyaratan-persyaratan Kebutuhan aktifitas dan fasilitas Persyaratan spatsial / standar arsitektur-interior Persyaratan Fungsional - Ergonomi - Fire Safety, Security, Humadity Persyaratan Kondisional - Sosial, Adat Budaya, Politik, Ekonomi Peraturan Pemerintah dan Peraturan Hukum lainnya.
KENDALA Kondisi tempat (fisik) dimana program dasar kebutuhan dialokasikan n TAPAK / SITE - Besaran - Potensi orientasi, view - Pola sirkulasi manusia, barang, kendaraan ARSITEKTUR - Besaran horizontal, vertikal - Fungsi, Bentuk, Ekspresi - Struktur, Mekanikal, Elektrikal - Lansekap INTERIOR - Jenis, jumlah, besaran ruang - Fungsi, bentuk - Entrance, pola sirkulasi, sirkulasi vertikal horizontal - Bahan dan material
KENDALA Kondisi tempat (fisik) dimana program dasar kebutuhan dialokasikan n FURNITURE - Fungsi, bentuk - Fleksibilitas - Bahan dan material POTENSI DAERAH - Adat / tradisi budaya setempat - Agama / Kepercayaan - Peraturan daerah DAMPAK TERHADAP LINGKUNGAN FISIK - Lay-out, gaya / style dsb. - Kebiasaan bekerja, produktifitas dll.
ANALISA MASALAH n n n n n Analisa citra / image (visual / non visual) Analisa potensi lingkungan / tapak Analisa program aktifitas Analisa kebutuhan fasilitas Analisa fungsi dan besaran ruang Analisa persyaratan ruang Analisa organisasi ruang Analisa pola sirkulasi Analisa material dan warna
ANALISA CITRA KOMPONEN MASALAH LEMBAGA PEMAKAI AKTIFITAS LOKASI BENDA KOLEKSI (Museum) URAIAN KATA KUNCI CITRA/IMAGE SIMPULAN
ANALISA KEBUTUHAN AKTIFITAS DAN FASILITAS PELAKU AKTIFITAS KEB. AKT DIMENSI P L T KEB. RUANG PERSYARATAN RUANG P. U. P. B. AKT. ANT. KAM BESARAN RUANG ZONA RUANG
(Karlen, Mark, 2007: hal 10)
(Karlen, Mark, 2007: Hal. 19)
ANALISA BESARAN RUANG / ANTROPOMETRI (Karlen, Mark, 2007: Hal. 15)
DIAGRAM KETERKAITAN (Karlen, Mark, 2007: hal. 26)
ANALISA MATERIAL DAN WARNA ZONA RUANG AKTIFITAS CITRA RUANG SPESIFIKASI MATERIAL MODUL / DIMENSI MATERIAL F W C
PEDOMAN DESAIN Merupakan sintesa masalah dari kriteria yang digunakan sebagai acuan arahan desain n n n n Konsep umum perencanaan Konsep organisasi ruang (zoning, blocking) Konsep lay-out (perletakan furniture) Konsep pola sirkulasi (horizontal-vertikal) Konsep furniture Konsep material dan warna Konsep pengkondisian ruang (lighting, AC) Konsep keamanan (thd pencurian, kebakaran, dsb)
SINTESA MASALAH adalah meletakkan komponen masalah dengan komponen-komponen lain Sehingga keterkaitannya membentuk sistem yang dapat dijelaskan secara Obyektif dan ilmiah
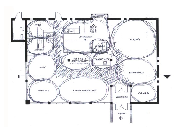
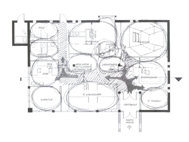
Konsep zoning dengan metode Buble
DESAIN SKEMATIK
Kerangka Penulisan Laporan BAB I PENDAHULUAN 1. 1 Latar Belakang Masalah 1. 2 Rumusan Masalah 1. 3 Batasan Masalah 1. 4 Tujuan Perencanaan 1. 5 Metode Programming 1. 6 Sistematika Penulisan (menjelaskan daftar isi) 1. 7 Peristilahan (terminologi)
Kerangka Penulisan Laporan BAB II DASAR PEMIKIRAN (Hasil studi literatur dan lapangan) 2. 1 Tinjauan umum - Pengertian - Teori - Sejarah - Aspek Yuridis formal 2. 2 Tinjauan khusus Data spesifik yang berkaitan dengan proyek kajian.
Kerangka Penulisan Laporan BAB III ANALISA MASALAH Berisi uraian hasil analisa kriteria masalah yang berkaitan dengan proyek kajian dan kendala-kendala yang ada BAB IV PEDOMAN DESAIN Merupakan konsep programatik yang digunakan sebagai acuan arahan desain
Struktur Penulisan Laporan Kolokium BAB I PENDAHULUAN Latar Belakang Masalah (Kejadian, fenomena dan mengapa masalah tersebut diambil sebagai topik perencanaan) Rumusan Masalah (Permasalahan: apa yang menjadi masalah perencanaan) Batasan Masalah (Fokus masalah perencanaan) Tujuan Perencanaan (Menjawab Permasalahan perencanaan) Metode Programming (meliputi pengumpulan data dan informasi mengenai suatu masalah untuk dianalisa, dirumuskan dinyatakan dengan jelas untuk menghasilkan landasan desain) Sistematika Penulisan (Gambaran singkat tiap bab penulisan laporan kolokium) Peristilahan (terminologi)
Struktur Penulisan Laporan Kolokium BAB II DASAR PEMIKIRAN (Berisi Tinjauan Literatur &Data Proyek) Menjelaskan teori atau dasar pemikiran apa yang dipakai sebagai pijakan untuk menganalisis / menguraikan masalah yang diteliti. Biasanya uraian dari studi pustaka, berkaitan dengan definisi-definisi dan definisi tambahan yang dikemukakan para ahli. Misalnya topik “ Desain Interior Hotel Bintang Lima di Jakarta”: Maka dicari landasan teori yang berkaitan dengan unsur, definisi hotel, klasifikasi hotel secara umum, khusus, dsb. 2. 1 Tinjauan umum: - Pengertian - Teori (kompilasi teori-teori yang disebut pada sub-bab kerangka teori) - Sejarah singkat - Aspek Yuridis formal 2. 2 Tinjauan khusus Data spesifik yang berkaitan dengan topik yang akan dibahas
Struktur Penulisan Laporan Kolokium BAB III ANALISA MASALAH Berisi Analisa masalah yang meliputi: Analisa citra / image (visual / non visual) Analisa potensi lingkungan / tapak Analisa program aktifitas Analisa kebutuhan fasilitas Analisa fungsi dan besaran ruang Analisa organisasi ruang Analisa persyaratan ruang Analisa pola sirkulasi Analisa material dan warna
Struktur Penulisan Laporan Kolokium BAB IV PEDOMAN DESAIN Berisi uraian konsep programatik yang Meliputi: n konsep umum perencanaan n konsep organisasi ruang (zoning, blocking) n konsep lay-out (perletakan furniture) n konsep pola sirkulasi (horizontal-vertikal) n konsep dinding (wall treathment, balustrade, dsb) n konsep langit-langit n konsep furniture n konsep material dan warna n konsep persyaratan ruang (lighting, AC) n konsep keamanan (thd pencurian, kebakaran, dsb) - Daftar Lampiran - Daftar Pustaka
PENYAJIAN TULISAN LAPORAN n n n Kertas A 4, 80 gr (21, 5 x 29, 5 Cm) Huruf : Times New Roman atau Palatino Linotype, ukuran 12 point. Margin kiri dan atas: 4 Cm, margin kanan dan bawah: 3 Cm. Kata-kata asing dicetak miring Dibelakang kutipan ditulis sumbernya, contoh : (Ballast, 1992 : Hal. 18) Daftar pustaka disusun menurut abjad, contoh: kalau nama orang asing yang ditulis nama keduanya dahulu, sedangkan nama orang indonesia ditulis utuh. Judul buku, nama penerbit, kota penerbit dan tahun penerbit. Contoh: Ballast, David K. , A. I. A, Interior Design Reference Manual, Professional Publications Inc. , Belmont, CA, 1992.


