Admin_zdania2pptx.pptx
- Количество слайдов: 61
Будівлі адміністративного та побутового призначення Адміністративно-побутові будівлі (АПБ) промислових підприємств призначені для розміщення приміщень, які обслуговують працюючих: санітарно-побутових, охорони здоров’я, громадського харчування, служби побуту, громадських організацій, управління, охорони праці тощо. Конкретний склад приміщень установлюють у завданнях на проектування відповідно до санітарних особливостей виробничих процесів. Проектування АПБ пов’язано з розрахунком необхідної кількості санітарно-побутового обладнання та розмірів площ для його розміщення, способів розташування приміщень з логічними зв’язками між ними та робочими місцями, а також з розрахунком розмірів площ їдалень, медичних закладів, адміністративних служб тощо. Адміністративно-побутові будівлі розміщують, як правило, у прибудовах до виробничих будівель. У випадках, коли таке розміщення суперечить вимогам освітлення, аерації або їх захисту від шкідливих виробничих впливів, проектують окремо розташовані будівлі та опалювані наземні або підземні переходи. Об’ємно-планувальні рішення окремо розташованої триповерхової каркасно-панельної адміністративнопобутової будівлі наведені на рисунку.
Об’ємно-планувальні рішення окреморозташованої триповерхової каркасно-панельної адміністративнопобутової будівлі: а – фасад; б – план першого поверху; в – план другого поверху; г – план третього поверху
У проекті запроектувати каркасно-панельну АПБ зі збірних залізобетонних індустріальних конструкцій за серією 1. 020 -1/83 «Типовые конструкции каркаса межвидового применения. Конструкции каркаса межвидового применения для многоэтажных общественных, производственных и вспомогательных зданий промышленных предприятий» . Уніфіковані об’ємно-планувальні рішення за цією серією передбачають проектування будівель висотою до 12 поверхів, з підвалами або без них, з висотою поверхів – 3, 3; 3, 6; 4, 2; 6, 0; 7, 2 м. Рекомендується запроектувати двоповерхову будівлю з висотою поверхів 3, 3 м, без підвалу, шириною 12 або 18 м і довжиною 30… 60 м, прибудовану до виробничої будівлі. За правилами пожежної безпеки, кількість евакуаційних виходів з АПБ і сходових кліток повинно бути не менше двох. Входи до будівлі передбачають через тамбури, які ведуть у вестибюлі, коридори або сходові клітки. Тамбури – прибудовані або вбудовані, утеплені, шириною не менше 1500 мм. Рівень підлоги тамбуру і вхідної площадки перед ним повинен бути вище рівня планувальної позначки землі на 150 мм. Площу вестибюля приймають з розрахунку 0, 2 м 2 на одну людину найбільш чисельної зміни, але не менше 18 м 2. Ширина сходових маршів і площадок, коридорів, переходів між будівлями, проходів і дверей для евакуації людей приймається не менше: сходових маршів і площадок – 1200 мм; коридорів і переходів між будівлями – 1400 мм; проходів між приміщеннями – 1000 мм; дверей – 800 мм.
Плани прибудованої адміністративної будівлі: а – першого поверху; б – другого поверху
а б Плани адміністративної будівлі шириною 18 м: а – другого поверху; б – першого поверху; 1 – гардеробний блок; 2 – їдальня; 3 – медична кімната; 4 – зал зібрань; 5 – приміщення громадських організацій; 6 – приміщення управління і конструкторського бюро; 7 – підсобні приміщення
а б Планувальні рішення вхідного вузла першого поверху прибудованої адміністративно-побутової будівлі: а – вестибюля із гардеробними для верхнього одягу; б – варіанти розміщення сходової клітки; 1 – тамбур; 2 – вестибюль; 3 – гардеробна верхнього одягу; 4 – сходова клітка
Санітарно-побутові та адміністративні приміщення Склад санітарно-побутових і адміністративних приміщень та їх планувальні рішення виконують за положеннями ДБН В. 2. 2 -28: 2010 «Будинки адміністративного призначення» і відомчими нормами проектування. Побутові приміщення включають загальні (гардеробні, душеві, умивальні, убиральні) та спеціальні санітарно-побутові приміщення, а також приміщення охорони здоров’я і громадського харчування. Їх приміщення проектують залежно від санітарних груп виробничих процесів за даними таблиці 1. Усі виробничі процеси за санітарними характеристиками розділені на 4 групи і підгрупи. Наприклад, до першої групи віднесені виробничі процеси, що викликають забруднення речовинами 3 і 4 класів небезпеки: тільки рук – група 1 а; тільки одягу – 1 б; тіла і спецодягу – 1 в. Якщо виробничий процес характеризується ознаками різних груп, склад обладнання приймають за групою з найбільш високими вимогами, а спеціальні приміщення і пристрої – за сумою вимог. Для виробничих процесів, віднесених до четвертої групи, склад спеціальних приміщень і пристроїв приймають відповідно до вимог відомчих нормативних документів. Геометричні параметри, мінімальні відстані між осями і ширина проходів між рядами обладнання приймається за таблицею 2.
Група виробничих процесів Група, санітарна характеристика і перелік виробничих процесів Санітарна характеритика виробничих процесів 1 1 2 Перелік процесів і виробництв кількість відділень у шафах тільки рук 1 б тіла і спецодягу 2 2 а 2 б Спеціальні побутові приміщення та пристрої на 1 душ. кран сітку 3 4 5 6 Процеси, що викликають забруднення речовинами 3 -го і 4 -го класів небезпеки 1 а 1 в Розрахункова Тип гардекількість працю- робних, ючих Основні процеси швейного виробництва; точного приладобудування; склади готової продукції; годинникових заводів Основні процеси машинобудування в цехах механоскладання, інструментальних, модельних, складських; холодна обробка металів (крім чавуну) тіла і спецодягу, що Холодна обробка пластмас; видаляються із засто- деревообробка; ремонтно-механічні суванням спеціальних роботи; наладка верстатів миючих засобів 7 25 7 Загальні, одне відділення — 15 10 Загальні, два відділення — 5 20 Роздільні, Хімчистка або по одному прання спецодягу відділенню Процеси, які протікають при надлишках явного тепла або за несприятливих метеорологічних умов за надлишками явного Основні процеси прядильних і ткацьких конвекційного тепла виробництв текстильних фабрик; сушильні відділення різних виробництв 7 за надлишками явного Основні процеси в цехах: доменних, променевого тепла сталепрокатних, ковальських, ливарних, випалу цегляних і цементних заводів 3 20 20 Загальні, два відділення Приміщення для охолоджування
1 2 2 в пов’язані з впливом вологи та намокання спецодягу 2 г 3 Процеси: в мийних і красильних відділеннях; гідравлічної очистки виробів; 4 5 5 6 7 20 Роздільні, Сушіння спецодягу по одному відділенню 5 20 Те ж саме на заводах залізобетонних виробів; переробки відходів за температури повітря Робота в кар’єрах, на відкритих складах, в до 10 о. С, включаючи холодильниках роботи на відкритому повітрі Приміщення для обігрівання та сушіння спецодягу 3 Процеси, які викликають забруднення речовинами 1 -го і 2 -го класів небезпеки, а також речовинами, зі стійким запахом: 3 а тільки рук Робота в цехах: фарбувальних з 7 10 Загальні, пульверизацією; просочування; переробки одне — нафтопродуктів; відділеннях руберойдових відділення заводів 3 б тіла і спецодягу Процеси, пов’язані із значним виділенням 3 10 Роздільні, Хімчистка, штучна хлору, фенолу; з використанням свинцю, по одному вентиляція місць ртуті, бензину; переробка відходів відділенню зберігання спецодягу; дезодорація 4 Процеси, що вимагають особливих умов до дотримання чистоти або стерильності виготовлення продукції Основні процеси на підприємствах: хліба, молока, макаронів, кондитерських виробів, Відповідно до вимог відомчих нормативних цукру, м’яса, риби; стерильних документів перев’язочних матеріалів, сироватки вакцин; електронної промисловості Примітки: 1. При поєднанні ознак різних груп виробничих процесів тип гардеробних, кількість душових сіток і кранів умивальних приймають за групою з найбільш високими вимогами. 2. При будь-яких процесах, пов’язаних з виділенням пилу і шкідливих речовин, у гардеробних повинні передбачатися респіраторні (на облікову чисельність), а також приміщення і пристрої для знепилювання спецодягу. 3. При роботі з інфекційними і радіоактивними матеріалами санітарно-побутові приміщення слід проектувати за відомчими нормативними документами.
Геометричні параметри, відстані між осями та ширина проходів між рядами обладнання побутових приміщень Найменування Показник, м, не менше Розміри у плані Кабіни: душових закриті душових відкриті та із наскрізним проходом, напівдушів особистої гігієни жінок туалетів Лави у гардеробних Пристрій питного водопостачання Шафи у гардеробних для вуличного та домашнього одягу і спеціального одягу і взуття: *) для всіх груп працюючих (мінімальні) для інвалідів Розміри за висотою Розділові перегородки: до верху перегородки від підлоги до низу перегородки Шафи для зберігання одягу Відстані між осями санітарних приладів Умивальники одиночні Ванни для рук і ніг, пісуари Ширина проходів між рядами Кабіни душових закриті, умивальники групові Кабіни душових відкриті, туалети, пісуари Умивальники одиночні Ванни для рук і ніг, кабіни особистої гігієни жінок і фотарії Шафи гардеробних зберігання одягу за кількістю відділень в ряду: до 18 понад 18 до 36 1, 8 х0, 9 (1, 8 х1, 8) 0, 9 х0, 9 (1, 2 х0, 9) 1, 8 х1, 2 (1, 8 х2, 6) 1, 2 х0, 8 (1, 8 х1, 65) 0, 3 х0, 8 (0, 6 х0, 8) 0, 5 х0, 7 0, 25 х0, 5 0, 4 х0, 5 1, 8 0, 2 1, 65 0, 7 1, 2 (1, 8) 1, 5 (1, 8) 1, 8 2, 0 1, 4/1, 0**) (2, 4/1, 8) 2/1, 4**) (2, 4/1, 8) *) Надалі – спецодягу. Для звичайного складу спецодягу (халати, фартухи, легкі комбінезони) передбачають шафи розмірами в плані 0, 25 х0, 5 м, для розширеного складу (звичайний плюс натільна білизна, засоби індивідуального захисту) – 0, 33 х0, 5 м, для громіздкого спецодягу (розширений склад плюс кожухи, валянки, спеціальні комбінезони) – 0, 4 х0, 5 м. **) У знаменнику наведена ширина проходів між рядами шаф без лав. Примітка 1. Ширину проходів між стіною і рядами обладнання допускається зменшувати на 40%, за кількості одиниць обладнання більше шести в ряду – збільшувати на 25%. Примітка 2. При тупикових проходах між шафами для одягу кількість відділень в ряду зменшують на 35 %. Примітка 3. У дужках вказані показники для інвалідів із порушенням роботи опорно-рухового апарата.
Гардеробні обладнують шафами, що закриваються, з відкидними, стаціонарними або окремо розташованими лавками шириною 250 мм. Кількість відділень у шафах повинна відповідати обліковому складу працюючих в усіх змінах. Ширина відділень шаф приймається: 250 мм – для одягу звичайного складу (фартухи, халати, куртки, комбінезони тощо); 330 мм – для одягу розширеного складу (чоботи, засоби індивідуального захисту); 400 мм – для громіздкого спецодягу (куртки, кожухи, зимове взуття). При окремому зберіганні вуличного одягу на відкритих вішалках у вестибюлі з обслуговуванням, а також при розділеному зберіганні одягу у двох приміщеннях ширина шаф – 250 мм. Для кращого освітлення та інсоляції гардеробних приміщень ряди шаф розташовують перпендикулярно до зовнішніх стін, щоб прохід між шафами відповідав розміщенню вікон. Допускається розміщення гардеробних у прогонах будівель, які не мають природного освітлення. Біля гардеробних розташовують: комори спецодягу; роздавальні для хімічної обробки спецодягу; місця для чистки взуття, сушки волосся. Входи до гардеробних, які розміщують суміжно з вестибюлем, проектують через тамбури. При розділених гардеробних для спеціального одягу, шляхи сполучення між гардеробною спеціального одягу та домашнього одягу повинні бути: для тих, хто йде з роботи – через переддушові, а для тих, хто іде на роботу – обминаючи переддушові.
Гардеробні. Приклади розміщення шаф у гардеробних шириною: а – 18 м; б, в – 12 м; г, д – 9 м
Плани прибудованої адміністративної будівлі шириною 12 м з гардеробним блоком роздільного зберігання одягу: а – першого поверху; б – другого поверху; 1 – тамбур; 2 – вестибюль; 3, 4 – гардеробні домашнього та спеціального одягу; 5 – душові; 6 – убиральні; 7 – кімната жіночої гігієни; 8 – комора; 9 – їдальня; 10 – медична кімната; 11 – зал зібрань; 12 – громадських організацій; 13 – управління і конструкторського бюро; 14 – підсобні
Душові розміщують у приміщеннях суміжних з гардеробними. Біля душових проектують переддушові, обладнані лавками довжиною 800 або 400 мм на одну душову сітку. Душові обладнують відкритими кабінами відгородженими з трьох боків перегородками. До 20 % душових допускається проектувати із закритими кабінами. Для забезпечення повітрообміну в приміщеннях душових розміщують вентиляційні блоки з розмірами у плані не менше, ніж 300 х1200 мм. Приміщення душових і переддушових, в яких підвищена вологість, не рекомендується розміщувати біля зовнішніх стін будівель для запобігання утворення конденсату на внутрішніх поверхнях їх огороджувальних конструкцій. Розміри душових кабін у плані: відкритих – 900 х900 мм; закритих – 1800 х 900 мм, які включають місце для переодягання – 600 х900 мм. Мінімально допустимі розміри проходів: між рядами кабін – 1500 мм; між рядом кабін і стіною або перегородкою – 1200 мм. Кількість душових кабін в одному приміщення має бути не більше 20. Площу переддушової беруть із розрахунку 0, 7 м 2 на одну душову сітку. Вхід до душових із наскрізним проходом, які проектують для виробничих процесів груп 1 в, 2 г, 3 б і 4 передбачають через тамбур, а вихід – через переддушові.
Душові при сумісному зберігання одягу з лавками у переддушових: а, б – довжиною 800 мм на одну душову сітку; в, г – те саме, довжиною 400 мм; 1 – душові; 2 – переддушові; 3 – гардеробні з умивальниками
Душові з наскрізним проходом при роздільному зберіганні одягу: а, б – при ширині будівлі 18 м; в, г – те саме, 12 м; 1 – душові; 2 – тамбур; 3 – гардеробні з умивальниками домашнього одягу; 4 – переддушові; 5 – комори Стрілками зображений напрям руху працюючих. Двері відмічені + зачиняють під час проходу працюючих.
Умивальні розміщують суміжно з гардеробними спеціального одягу або загальними гардеробними. Допускається розміщення рукомийників безпосередньо в гардеробних. Розміри рукомийників: ширина 500… 650 мм, глибина 400… 600 мм. Мінімально допустимі відстані: між осями кранів – 850 мм; між віссю крана крайнього рукомийника і перегородкою – 450 мм; між рядами рукомийників – 1800 мм. Кількість душових кабін і рукомийників приймають залежно від санітарної характеристики виробничих процесів за обліковим складом працюючих найбільш чисельної робочої зміни. Ручні ванни – для працюючих, які зазнають впливів вібрацій на руки, за вимогами відомчих документів. Їх розміщують в умивальних з розрахунку: одна ванна площею 1, 5 м 2 на три працюючих найбільш чисельної зміни. Ножні ванни (обладнані гідромасажами) – для виробничих процесів, робота яких пов’язана з передачею впливів вібрацій на ноги, за вимогами відомчих документів. Їх розміщують в умивальних або душових з розрахунку: 40 працюючих найбільш чисельної зміни на одну ванну площею 1, 5 м 2. Приміщення та місця відпочинку в робочий час і приміщення психологічного розвантаження проектують біля гардеробних домашнього одягу або біля приміщень охорони здоров’я. Площу цих приміщень приймають з розрахунку – 0, 9 м 2 на одного працюючого найбільш чисельної робочої зміни.
Умивальні та туалети: а…г – розміщення умивальників у окремих приміщеннях біля гардеробних; ж…к – планувальні рішення туалетів з тамбурами
Туалети обладнують унітазами у кабінах розміром 1200 х800 мм. Двері кабін повинні відкриватися назовні. Чоловічі туалети обладнують пісуарами, на кількість яких зменшують кількість унітазів. Розміри: унітазів – ширина 380 мм, довжина 460 мм; пісуарів – ширина 360 мм, довжина 290 мм, а мінімальна відстань між їх осями 700 мм. Мінімально допустима ширина проходів: між рядами кабін або пісуарів – 1500 мм; між рядами кабін або пісуарів і стіною – 1300 мм. Загальну кількість пристроїв вибирають з розрахунку – один пристрій на 18 чоловіків і на 12 жінок найбільш чисельної робочої зміни. Входи до убиралень передбачають через тамбури, в яких розміщують рукомийники, з розрахунку, один на чотири пристрої, але не менше одного. У кожному приміщенні убиралень розміщують вентиляційні блоки. Суміжно з туалетами передбачають приміщення для зберігання інвентарю прибиральниць, обладнані системою водопостачання, площею 0, 8 м 2 на кожні 100 м 2 площі поверху, але не менше 4 м 2. Приміщення особистої гігієни жінок розміщують суміжно з жіночими убиральнями з входом з тамбуру туалету. Їх обладнують: унітазом, біде з, умивальником, душем розміром 1800 х1200 мм і лавкою з розрахунку – один пристрій на 75 працюючих жінок найбільш чисельної зміни. Відстань від робочих місць виробничої будівлі до убиралень не повинна перевищувати 75 м.
Планувальні рішення туалетів: а, г, д – у секціях 6 х6 м; б, в – у секціях 3 х6 м; 1 – приміщення прибиральниці; 2 – електрорушник; 3 – вентиляційний канал
Нормативні показники площ приміщень на одну особу, одиницю обладнання, які обслуговуються в санітарно-побутових приміщеннях Найменування приміщення Показник 2, не менше Площа приміщень на одну особу, м Гардеробні вуличного одягу, роздавальні спецодягу*), приміщення для обігрівання чи 0, 1 охолодження Комори для зберігання спецодягу**): при звичайному складі спецодягу 0, 04 при розширеному складі спецодягу 0, 06 для громіздкого спецодягу 0, 08 Респіраторні 0, 07 Приміщення централізованого складу спецодягу і засобів індивідуального захисту: для зберігання 0, 06 для видачі, включаючи кабіни примірки і підгонки 0, 02 Приміщення чергового персоналу з місцем для інвентарю, збирання сміття, приміщення для куріння біля убиралень або приміщення для відпочинку 0, 02 Місця для чищення взуття, гоління, сушіння волосся 0, 01 2, не менше Площа приміщень на одиницю обладнання, м Переддушові біля кабін душових відкритих і з наскрізним проходом 0, 7 Шлюзи (тамбури) при туалетах із кабінами 0, 4 Кількість працюючих, що обслуговуються в зміну на одиницю обладнання Підлогові чаші (унітази) і пісуари туалетів: у виробничих будівлях 18/12 в адміністративних приміщеннях 45/30 при залах зборів, нарад, гардеробних, їдалень 100/60 Умивальники та електрорушники в тамбурах туалетів: у виробничих будівлях 72/48 в адміністративних приміщеннях 40/27 Пристрої питного водопостачання залежно від груп виробничих процесів: 2 а, 2 б 100 1 а, 1 б, 1 в, 2 г, 3 а, 3 б, 4 200
Приміщення охорони здоров’я На промислових підприємствах з кількістю працюючих 300 чоловік і більше проектують фельдшерські пункти охорони здоров’я, склад і площа яких наведені у таблиці. Приміщення фельдшерського пункту охорони здоров’я Приміщення Вестибюль-приймальня та реєстратура Кімната тимчасового перебування хворих Процедурні кабінети Кабінет для прийому хворих Кабінет фізіотерапії Кабінет стоматолога Кабінет гінеколога Комора медичного обладнання Туалет з умивальником у тамбурі Площа, м 2, не менше 18 9 24 (2 приміщення по 12) 12 18 12 12 6 На 1 унітаз На підприємствах при обліковій чисельності від 50 до 300 працюючих передбачають медичні кімнати, які обладнують умивальником. Площу медичної кімнати приймають: 12 м 2 – при складі працюючих 50. . . 150 чоловік; 18 м 2 – при 150. . . 300 чоловік.
Планувальні рішення приміщень охорони здоров’я: а – фельдшерський пункт; б – медична кімната; в – кабінний фотарій; г – кімната особистої гігієни жінок із убиральнями; 1 – вестибюль-приймальня; 2 – регистратура; 3, 9 – перев’язочні; 4 – кімната медичного персоналу; 5 – кімната тимчасового перебування хворих; 6 – комора медичного обладнання; 7, 8 – кабінети лікарів; 10 – кімната особистої гігієни жінок
Приміщення громадського харчування Передбачають: при кількості працюючих більше 200 – їдальню; 200… 30 – їдальню-роздавальну; менше 30 – кімнату для приймання їжі. Кількість посадочних місць у їдальнях-роздавальнях (буфетах) приймають з розрахунку – одне місце на чотири працюючих найбільш чисельної зміни. Приміщення їдальні-роздавальної (буфет) Приміщення буфету 16 20 Зал з роздаточною Підсобне приміщення Мийниця посуду Всього: 31 7 5 43 38 8 6 52 Кількість місць 24 28 32 36 Площа приміщень, м 2 42 49 58 61 10 11 12 13 6 6 7 8 58 66 77 82 40 50 68 14 8 90 80 18 12 110 Їдальні бажано розташовувати на перших поверхах АПБ, у навчальному проекті допускається їх розміщення на другому поверсі. Площу кімнати для приймання їжі визначають із розрахунку не менше 1, 35 м 2 на кожного відвідувача або не менше 1, 65 м 2 на інваліда-колясочника, але не менше 12 м 2. Ця кімната повинна бути обладнана умивальником, стаціонарним кип’ятильником, електричною плитою і холодильником.
Планувальне рішення їдальні на 50 посадочних місць: 1 – зал із роздаточною; 2 – комора; 3 – камера охолодження продуктів; 4 – контора; 5 – холодний цех; 6, 7 – підсобно-виробничі приміщення; 8 – приміщення персоналу; 9 – гарячий цех; 10 – посудомийна
Приміщення культурного обслуговування Зал зібрань трудового колективу є основним приміщенням культурного обслуговування, який проектують у складі АПБ і приміщень промислових підприємств. Площа залу зібрань приймається за таблицею залежно від кількості працюючих на підприємстві. Площа залу зібрань трудового колективу Кількість працюючих найбільш чисельної зміни Площа приміщень у м 2 50 … 100 24 100 … 200 36 200 … 300 48 300 … 400 54 Приміщення управління і конструкторських бюро 400 … 600 72 Площа цих приміщень приймається із розрахунку 6 м 2 на робоче місце працівника управління, а на одного працівника конструкторського бюро і для працюючих інвалідів, що користуються кріслами-колясками – не менше 7, 65 м 2. Площу кабінетів керівників рекомендується проектувати не більше 15% загальної площі робочих приміщень управління. Біля кабінетів керівників підприємств і їх заступників передбачають приймальні площею не менше 12 м 2. Допускається влаштовувати одну приймальню на два кабінети. На підприємствах із кількістю інженерно-технічних працівників менше 300 осіб для проведення нарад допускається збільшувати площу одного з кабінетів керівників підприємства із розрахунку 0, 8 м 2 на одне місце, але не більше 72 м 2.
Плани залів зібрань: а – на 59 посадочних місць; б – на 36 посадочних місць
Послідовність розрахунку санітарно-побутових приміщень: визначення облікового складу працюючих, кількості працюючих у найбільш чисельній зміні та кількості чоловіків і жінок (за завданням); • визначення групи та санітарної характеристики виробничого процесу та необхідної кількості санітарно-побутових пристроїв за даними табл. 1, додаток 2 (залежно від призначення будівлі за завданням). Результати розрахунку зводять у таблицю. • Розрахункові показники для проектування санітарно-побутових приміщень Списочний склад, А А 1 А 2 Найбільш чисельна зміна, В В 1 В 2 Кількість відділень в гардеробних шафах для видів одягу Сумісного Розділеного зберігання А 1 А 2 Санітарне обладнання (кількість, шт. ) Душові сітки В 1 В 2 Туалети Умивальники Унітази і пісуари Група виробничих процесів Кількість працюючих В 1 В 2 Унітази В 2 Обліковий склад працюючих: А = ; чоловіків А 1 = ; жінок А 2 =. Кількість працюючих у найбільш чисельній зміні: В = ; чоловіків В 1 = ; жінок В 2 =.
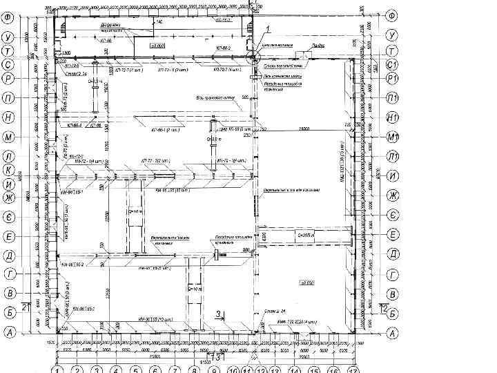
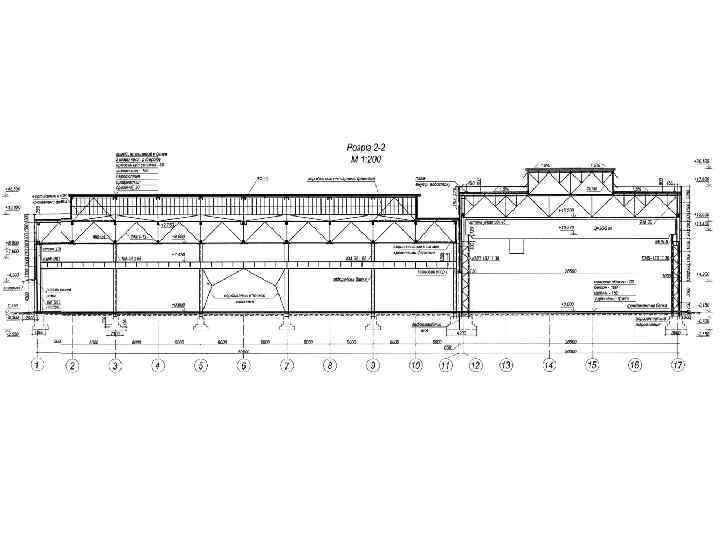
Конструктивні рішення адміністративно-побутових будівель Основні збірні елементи уніфікованого каркасу АПБ проектують на основі сітки колон 6 х 6 м. У місцях розташування сходових кліток установлюють додаткові колони для утворення комірки 6 х 3 м. У курсовому проекті висоту поверхів приймають 3, 3 м. Конструктивне рішення уніфікованого каркаса приймається за зв’язковою конструктивною схемою, в якій роль горизонтальних діафрагм жорсткості виконують диски перекриттів і покриття, а вертикальних – залізобетонні діафрагми жорсткості, відстань між якими не повинна перевищувати 36 м за довжиною будівлі і не менше 18 м від її торця. Уніфікований каркас допускає поперечне та поздовжнє розміщення ригелів. У курсовому проекті рекомендується приймати поперечне розміщення ригелів уздовж короткої сторони будівлі. Основною конструктивною особливістю каркаса зв’язкової конструктивної схеми є мала несуча здатність і жорсткість вузлів з’єднання ригелів і колон. Тому в таких будівлях навантаження на перекриття не повинне перевищувати 12, 5 к. Н/м 2. Фундаменти каркасно-панельних будівель серії 1. 020 -1, залежно від геологічних умов площадки будівництва та величини навантажень. У курсовому проекті рекомендується приймати монолітні залізобетонні фундаменти стаканного типу для всіх колон. Під зовнішніми навісними стіновими панелями влаштовують фундаментні балки, а під діафрагмами жорсткості – стрічкові фундаменти із монолітного залізобетону або стінових фундаментних блоків.
Каркасно-панельна адміністративна будівля зв’язкової конструктивної системи: 1 – фундамент стовповий; 2 – стрічковий фундамент під діафрагму жорсткості; 3 – крайня колона; 4 – середня колона; 5 – колона сходової клітки; 6 – ригель; 7, 8 – діафрагми жорсткості; 9 – рядові плити перекриття; 10 – те саме, зв’язкова; 11 – ригель сходової клітки; 12 – сходовий марш; 13 – стінова панель; 14 – вікно
Будівля 6 -ти поверхового гаража легкових машин із збірним залізобетонним зв’язковим каркасом із типових конструкцій серії 1. 020 -1/83
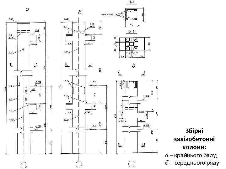
Колони. У будівлях висотою до п’яти поверхів, усі колони приймають перерізом 300 х 300 мм. В будівлях висотою від 6 до 12 поверхів, переріз колон збільшують до 400 х 400 мм. При більшій висоті будівель колони нижніх поверхів приймають перерізом 600 х 600 мм і 800 х 800 мм або використовують жорстку несучу арматуру для армування колон. Усі колони мають центральну прив’язку до поздовжніх і поперечних координатних осей. Збірні колони виготовляються постійного перерізу довжиною на 1. . . 3 поверхи. Колони можуть мати висоту до 14, 5 м, що дозволяє в будівлях висотою до п’яти поверхів використовувати безстикові колони, а в багатоповерхових будівлях більшої висоти обходитися мінімальним числом стиків. Стикові колони включають: нижні (висотою на два поверхи із позначкою низу колони – 1, 1 м); середні (висотою на три і чотири поверхи); верхні. Стики колон контактні, їх здійснюють зварюванням випусків поздовжньої робочої арматури, установкою хомутів і бетонуванням вузлів. Колони проектують одноконсольними, якщо вони розміщуються по крайніх рядах, або двоконсольними – по внутрішніх рядах АПБ. Для покращення інтер’єру приміщень, скорочення витрат сталі та зниження трудомісткості вузол спирання ригеля на колону в уніфікованому каркасі вирішують із «прихованою консоллю» , розміри якої 150 х150 мм. Для з’єднання колон із ригелями і стіновими панелями на поверхнях колон встановлені закладні деталі.
Схеми прив’язки колон і стін до координатних осей та вузли кріплення стінових панелей до колон: а – герметизація вертикальних стиків; б – кріплення верху панелей до колон; 1 – захисний шар; 2 – еластична мастика; 3 – пружний шнур (герніт); 4 – цементно-піщаний розчин; 5 – монтажний з’єднальний елемент; 6 – закладна деталь; колона; 8 – колона; 9 – цегляна кладка; 10 – монтажна піна
Збірні залізобетонні колони: а – крайнього ряду; б – середнього ряду
Ригелі Збірні залізобетонні ригелі міжповерхових перекриттів і покриття можна розташовувати у поздовжньому або поперечному напрямках або змінювати напрямок в будь-якому місці будівлі. Для зменшення сумарної конструктивної висоти перекриттів ригелі мають тавровий переріз із поличкою внизу, для спирання плит перекриттів і покриття. Вибір розмірів перерізів ригелів здійснюють відповідно до типів плит перекриттів і покриттів та величини навантажень на них. У курсовому проекті рекомендується вибирати ригель висотою 450 мм і шириною: нижньої частини 400 мм, а верхньої 200 мм. Для з’єднання ригелів із колонами та плитами перекриттів і покриттів на їх поверхнях встановлюють сталеві закладні деталі. Ригелі верхньою подовженою частиною спирають на скриті консолі колон. Міцність таких вузлів забезпечують зварюванням закладних деталей ригелів і колон. У статичних розрахунках багатоповерхових рам каркасів такі вузли вважаються шарнірними, тобто здатними працювати лише на вертикальні навантаження.
Збірні залізобетонні ригелі: а – розміри, розміщення закладних деталей, армування; б – розташування; в – кріплення ригеля покриття до верху колони; г – кріплення ригелів перекриття до середньої колони
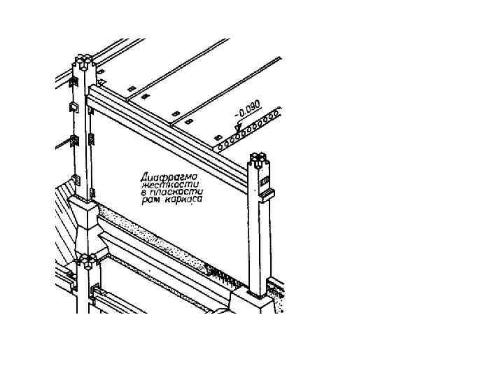
Діафрагми жорсткості Типові діафрагми жорсткості – це збірні залізобетонні панелі товщиною 140 мм, які працюють на сприйняття вертикальних і горизонтальних зусиль за схемою консольної складеної балки, затиснутої в фундаменті. Вітрові навантаження на діафрагми жорсткості передають перекриття та покриття, які являють собою жорсткі горизонтальні диски. Кількість діафрагм жорсткості установлюють за результатами розрахунку. Конструктивно в кожному температурному блоці будівлі повинно бути не менше двох діафрагм в поздовжньому і в поперечному напрямах. У двопрогінних будівлях допускається установка по одній діафрагмі жорсткості – в середній частині будівлі. Щоб запобігти перевантаженню окремих діафрагм і закручуванню будівлі, діафрагми розміщують симетрично на плані будівлі. Для запобігання перевантаження окремих колон, в одній точці не повинно сходитись більше двох діафрагм. Місця розташування діафрагм повинні повторюватися на всіх поверхах будівлі. Діафрагми можна суміщати із стінами сходових кліток, в них можна робити дверний проріз. Діафрагми проектують висотою в один поверх, вони мають одно- або двосторонні консольні полички у верхній зоні для спирання плит перекриттів і покриття. Діафрагми між собою та з колонами з’єднують зварюванням закладних деталей, не менше ніж у двох рівнях за висотою. Спирання діафрагм одна на другу здійснюється зварюванням випусків арматури із бетонуванням.
Збірні залізобетонні діафрагми жорсткості: а – варіант компоновки; б – вузли стикування; в – схеми розрізів дво- та одноконсольних діафрагм; 1 – колона; 2 – консоль колони; 3 – цементно-піщаний розчин; 4 – панель перекриття; 5 – бетон замонолічування; 6 – консоль діафрагми жорсткості; 7 – діафрагма жорсткості; 8 – закладна деталь; 9 – монтажний з’єднальний елемент
Типові збірні залізобетонні каркаси: а – двопрогоновий (6+6): б – трипрогоновий (6+3+6); в – деталь спирання ригеля на залізобетонну консоль; г – те саме, на сталеву консоль; 1 – ригель; 2 – одноярусна колона; 3 – двоярусна колона; 4 – монтажна деталь; 5 – з’єднальні стрижні; 6 –сталева консоль; 7 – залізобетонна консоль
Перекриття каркасно-панельних будівель виконують, за трьома варіантами: із багатопустотних панелей висотою 220 мм; ребристих плит висотою 300 мм; плит типу 2 Т висотою 600 мм. Для перекриттів використовують багатопустотні плити довжиною до 9 м включно, плити 2 Т довжиною 9 і 12 м. Ребристі плити використовують у плитах розпірках (сантехнічні плити). Багатопустотні та ребристі залізобетонні плити проектують у двох модифікаціях: рядові та зв’язкові (плити-розпірки). Зв’язкові плити розміщують між колонами і жорстко з’єднують між собою та з ригелями для забезпечення стійкості колон із площини рами каркаса. Номінальні розміри плит за шириною, м: багатопустотних – 1, 2 і 1, 5; ребристих – 1, 5; 2 Т – 3, 0; 1 Т – 1, 3; 1, 5 і 1, 7. У курсовому проекті рекомендується приймати багатопустотні плити перекриттів. Покриття проектують суміщеними, пологими, з внутрішнім відводом атмосферних опадів, з рулонною покрівлею по шарах утеплювача та пароізоляції. В якості несучих елементів покриття використовують такі самі плити, як для перекриттів із спиранням їх на ригелі та розкладкою рядових і зв’язкових плит за аналогією із міжповерховими перекриттями.
Схема розташування плит перекриття та вузли стикування конструкцій каркаса: 1490 1 – багатопустотна плита перекриття; 2 – залізобетонний ригель; 3 – залізобетонні колона; 4 – стінова панель
Плити перекриттів багатоповерхових каркасних будівель зв’язкової конструктивної схеми: а – багатопустотні з сантехнічною плитою-розпіркою; б – поперечні розрізи плит;
Стикування колони із збірним перекриттям Вузол стикування зв’язкових багатопустотних (а) і ребристих плит (б) із ригелем Конструкції стикування ригеля з колоною в зв’язковому каркасі: а) із скритою консолью і верхнею монтажною з’єднальною пластиною; б) із скритою прямокутною консолью; в) схема розподілу зусиль при дії горизонтального навантаження
7 Фрагменти зв’язкових каркасів: а – КМС-101; б – ИИ-04; в – 1. 020 -1; 1 – колона; 2 – ригель; 3 – зв’язкова плита; 4 – рядова плита; 5 – металеві анкери; 6 – діафрагми; 7 – стіни; 8 – сходові марші
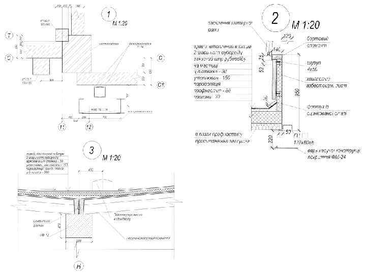
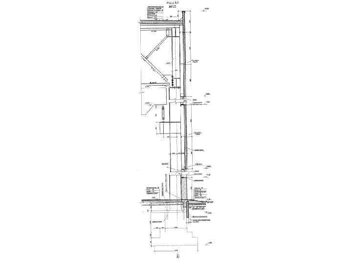
Зовнішні стіни в будівлях з конструкціями за серією 1. 020 -1 проектують самонесучими або навісними. Розрізка стін на панелі – дворядна. До номенклатури збірних елементів входять поясні, простіночні, парапетні, цокольні та кутові панелі. Конструкція панелей тришарова з ефективним утеплювачем товщиною 300 мм. Номінальні розміри панелей за висотою: 900; 1200; 1500; 1800 і 2100 мм. Панелі самонесучих стін установлюють по цементно-піщаному розчину на фундаментні балки та закріплюють зверху приварюванням до закладних деталей колон. Панелі навісних стін закріплюють до опорних металевих столиків колон каркаса. Плоскі горизонтальні стики панелей навісних стін заповнюють нетвердіючою мастикою та ізолюють за принципом закритих стиків. Схеми розрізки та компоновки панелей зовнішніх стін наведені на рисунку.
Конструктивні рішення будівлі із зв’язковим каркасом: а – розріз по зовнішній стіні; б – спирання ригеля на консолі колон; в – кріплення зв’язкових плит перекриття; г – кріплення стінових панелей до колон; д – кріплення стінових панелей; 1 – з’єднальний стрижень; 2 – ригель; 3 – закладні деталі ригеля; 4 – колона; 5 – верхній з’єднальний елемент; 6 – бетон; 7 – зв’язкова плита; 8 – стінова панель; 9 – пристінна плита перекриття
Схеми розрізки та компоновки панелей зовнішніх стін: а – фрагмент фасаду; б – із поперечним розташуванням ригелів; в – те саме, із поздовжнв; г – фрагмент фасаду біля входу до будівлі; 1 – колона; 2 – ригель; 3 – стінова панель
Сходову клітку розміщують впоперек або вздовж будівлі, біля зовнішньої стіни із віконними прорізами на кожному поверсі для забезпечення природного освітлення. Конструкції сходів проектують за серією 1. 020 -1/83 у вигляді збірних залізобетонних ребристих маршів Zподібної форми. В межах нахиленої частини маршу розташовують сходи, відформовані разом із косоурами, а горизонтальні ділянки утворюють сходові напівплощадки. При висоті поверху 3, 3 м сходи мають два марші висотою по 1, 65 м. Сходові марші мають довжину 5770 мм, а ширину 1155 мм і своїми короткими кінцями горизонтальних поверхових та міжповерхових площадок спираються на збірні залізобетонні або металеві балки (ригелі Р 3 і Р 4) довжиною 3, 0 м. У свою чергу ці балки спирають на сталеві консолі, які приварюють до спеціальних закладних деталей колон сходової клітки. Внутрішні стіни сходової клітки, враховуючи вимоги пожежної безпеки, проектують панельними залізобетонними або цегляними, з центральною прив’язкою до координатних осей. У курсовому проекті рекомендується влаштовувати діафрагми жорсткості уздовж поздовжньої та внутрішньої поперечної стіни сходової клітки.
Збірні залізобетонні елементи сходових кліток: а – для будівель із висотою поверхів 3, 3 м; б – для будівель із висотою 3, 0 м; в – вузол спирання сходів на ригель; 1 – колона; 2 – ригель довжиною 3 м для спирання сходів; 3 – сходи
Вузли спирання сходових маршів на залізобетонні ригелі
Admin_zdania2pptx.pptx