Архитектура гражданских и промышленных зданий Основные элементы и



























































































































48-odnoevartirnye_ghilye_doma_masha.ppt
- Количество слайдов: 128
Архитектура гражданских и промышленных зданий
Основные элементы и конструктивные схемы зданий
Основные требования, предъявляемые к зданиям
Техническая целесообразность здания определяется решением его конструкций, которые должны находиться в полном соответствии с законами механики, физики и химии.
К зданию и его конструкциям предъявляется комплекс технических требований: прочность – способность воспринимать внешние воздействия без разрушения и существенных остаточных деформаций; 2) устойчивость – способность сохранять равновесие при внешних воздействиях, 3) пространственная жесткость – способность конструкции осуществлять свои статические функции с малыми, заранее заданными величинами деформации
долговечность – прочность, устойчивость и сохранность здания и его элементов во времени. Она зависит от следующих параметров: ползучести материалов, т.е. от процесса малых непрерывных деформаций, протекающих в материалах в условиях длительного воздействия нагрузок; морозостойкости материалов, т.е. от способности влажного материала противостоять многократному попеременному замораживанию и оттаиванию; влагостойкости материалов, т.е. их способности противостоять разрушающему действию влаги (размягчению, набуханию, короблению, расслоению, и т.д.); коррозионной стойкости, т.е. от способности материала сопротивляться разрушению, вызываемому химическими и электрохимическими процессами; биостойкости, т.е. от способности органических строительных материалов противостоять действию насекомых и микроорганизмов.
Стабильность эксплуатационных качеств, к которым относятся тепло-, звуко- гидроизоляция и воздухонепроницаемость ограждающих конструкций - способность конструкций сохранять постоянный уровень изоляционных свойств в течение проектного срока службы здания или конструктивного элемента. Поэтому применяется оценка долговечности по предельному сроку службы здания. По этому признаку здания и сооружения разделяют на четыре степени: 1-я - со сроком более 100 лет, 2-я - от 50 до 100 лет, 3-я - от 20 до 50 лет, 4-я - до 20 лет (временные здания и сооружения).
основные конструктивные системы зданий: - каркасная; - бескаркасная (стеновая);
Рис. 3.1. Бескаркасная (стеновая) конструктивная система: 1 – наружная несущая стена; 2 – внутренняя несущая стена; 3 – сборный настил перекрытия
Рис. 3.2. Каркасная конструктивная система: 1 – колонны каркаса; 2 – ригели каркаса; 3 – сборный настил перекрытия; 4 – наружная навесная стеновая панель
Рис. 3.8. Конструктивная схема каркасного здания с поперечным расположением ригелей
Рис. 3.9. Конструктивная схема каркасного здания с продольным расположением ригелей
Рис. 3.10. Конструктивная схема здания с безригельным каркасом: 1 – колонны каркаса; 2 – сборный или монолитный настил перекрытия
КЛАССИФИКАЦИЯ ЖИЛЫХ ЗДАНИЙ
Малоэтажные (1... 4 этажа) безлифтовые здания, в свою очередь, классифицируют по двум группам: I – дома для усадебной застройки; 1...2-этажные одноквартирные, 1... 2-этажные 2... 4квартирные, 1... 3-этажные блокированные II – 2...4-этажные многоквартирные дома для застройки высокой плотности: блокированные, секционные комбинированного планировочного решения.
ФУНКЦИОНАЛЬНЫЕ И СОЦИАЛЬНЫЕ ТРЕБОВАНИЯ К ЖИЛИЩУ (СТРУКТУРЕ КВАРТИР И ИХ ЭЛЕМЕНТАМ) Общие функциональные требования прежде всего относятся к основной потребительской единице – дому, квартире: составу, размерам и взаимосвязи основных помещений. При проектировании индивидуальной квартиры многоквартирного дома должны быть решены задачи обеспечения оптимальных условий проживания семьи и всех процессов ее жизнедеятельности: семейное общение и возможность обособления членов семьи, активный и пассивный отдых, воспитание детей, ведение домашнего хозяйства, любительская и профессиональная трудовая деятельность, поддержание личной гигиены и т. д.
Кухня
полноценное помещение кухни должно состоять из двух основных зон – рабочей и зоны приема пищи.
Планировочная организация кухни: а – схемы размещения оборудования в кухнях: 1 – однорядное; 2 – угловое; 3 – двухрядное; 4 – П-образное (площадь помещений 9 м 2); б – минимальные проходы в кухне
Пространственная организация кухни
Санитарные узлы квартиры проектируют в виде двух смежно расположенных помещений – ванной и уборной Минимальные внутренние размеры санитарных помещений составляют, м: для уборной при открывании двери наружу – 0,8 × 1,2, то же, внутрь – 0,8 ×1,5, для ванных комнат – 1,71 × 1,50; совмещенного санитарного узла– 2,08 × 1,82, при варианте с душевым поддоном – 1,4 × 1,52;
1 – уборные; 2 – ванные комнаты (с вариантом расположения водогрейной колонки); 3 – совмещенные санитарные узлы
Все помещения санитарных узлов оборудуют вытяжной вентиляцией. Не допускается размещение уборной и ванной (или душевой) непосредственно над жилыми комнатами и кухнями. Размещение уборной и ванной (или душевой) в верхнем уровне над кухней допускается в квартирах, расположенных в двух уровнях.
Габариты передней в зависимости от месторасположения ее в плане квартиры
Переднюю проектируют шириной не менее 1,4 м Помимо передней в квартирах предусматривают и другие коммуникационные помещения – коридоры , ширина которых составляет не менее 1,1 - 0,85 м. Кладовые предусматривают для хранения одежды, продовольствия, посуды, книг и т. д. Площади кладовых должны быть не менее 1,5 м2 при ширине не менее 0,8 м.
Общая комната (гостиная) должна иметь площадь 16 ÷ 22 м2 и минимальную ширину 3,0 м (между стенами). Спальни разделяются на два вида: спальня на двух человек (для родителей) площадью 14 ÷ 16 м2, спальня на двух человек (для двух детей) площадью 10 ÷ 12 м2 и спальня на одного человека площадью 8 ÷ 10 м2. Минимальная ширина любой спальни – 2,5 м (между стенами). Кухня должна иметь площадь 8 ÷ 12 м2 и длину и ширину не менее 2,7 м (между стенами).
Раздельный санитарный узел (ванная и туалет с вентиляционным блоком): а – план размещения в стандартной санитарно-технической кабине; б – размеры приборов
Прихожая должна иметь ширину не менее 1,4 м (между стенами). В прихожей желательно запроектировать встроенные шкафы глубиной 0,6 м. Внутриквартирные коридоры должны иметь ширину не менее 0,85 м (между стенами). Балконы и лоджии должны иметь ширину 0,9 ÷ 1,2 м и вертикальное ограждение высотой 1 м. В однокомнатных и 2-комнатных квартирах должен проектироваться балкон, в 3- и 4-комнатных квартирах – балкон и лоджия. При определении размеров помещений ширину и длину жилых ячеек можно увеличивать с шагом 3М = 300 мм: ширина – 3 м; 3,3 м; 3,6 м; длина – 6 м; 6,3 м; 6,6 м; 6,9 м; 7,2 м.
Рис. 4. Геометрические размеры ступеней лестничного марша
При проектировании коттеджа применяют три основных типа лестниц: - при входе в здание (для подъема на крыльцо, веранду или террасу); - главная (внутриквартирная) (для сообщения между этажами и эвакуации); - вспомогательная (для подъема на чердак, спуска в подвал и т.п.). При проектировании всех типов лестниц должны выполняться условия удобства и неутомляемости подъема, а также безопасности эвакуации людей. Удобство подъема по лестнице обеспечивается при выполнении условия: 2a + b = 60…65 см, где a – высота подступенка (см); b – ширина проступи (см). Безопасность эвакуации людей из здания обеспечивается пропускной способностью лестниц, которая зависит от ее ширины и уклона: 1) Лестница при входе в жилое здание должна иметь не менее трех ступеней, ширину лестничного марша не менее 1,05 м и уклон (отношение высоты лестничного марша к его длине) не более 1:1,5 [2]. 2) Внутриквартирная лестница должна иметь ширину марша не менее 0,9 м и уклон не более 1:1,25 [2]. Количество ступеней в одном марше должно быть не менее 3 и не более 18 [2].
Планировочные схемы различных типов внутриквартирных лестниц с указанием габаритных размеров (размеры даны в см)
Схема внутриквартирной лестницы с поворотом на 90º: в нижнем марше 8 ступеней высотой 200 мм, в верхнем –7 ступеней
Определение площадей и габаритов помещений, их функциональная взаимосвязь Общая жилая комната (гостиная) предназначена для дневного отдыха и общения, поэтому должна располагаться в зоне дневной активности, чаще всего на первом этаже. В мансардных домах часто в общей комнате размещена лестница, ведущая в мансарду, что оказывает существенное влияние на планировку всего здания. Кроме этого в домах с придомовым участком гостиная может быть связана с летними помещениями (террасой, верандой). В гостиной иногда проектируют эркер (выступающую из плоскости фасада остекленную часть комнаты), окно от пола до потолка, камин и т.п. Площадь общей комнаты должна быть не менее 12 м2, однако рекомендуется ее увеличивать относительно нормативных значений
Спальные комнаты предназначены для сна и отдыха, иногда индивидуальных занятий, хранения одежды, книг и т.п. Минимальная площадь спален в соответствии с требованиями [1] составляет 8 м2. Рекомендуется принимать площадь спальных комнат, рассчитанных на одного, в пределах 12 – 15 м2. Одну из спален, предназначенную для супругов, проектируют большей площади: 15 – 18 м2. При одной или двух спальнях иногда проектируют отдельное помещение гардеробной комнаты с входом из спальни. Площадь гардеробной принимают 3 – 6 м2. Гардеробная может не иметь оконного проема.
Одна из спален может служить детской игровой комнатой. Ее площадь несколько превышает площадь обычной спальни и составляет 16 – 20 м2. Помещения спален и детских игровых комнат обычно объединяют в единый блок и размещают в глубине здания. При этом все спальные комнаты должны быть изолированы друг от друга и иметь отдельные входы. Кабинет должен располагаться в тихой зоне и может иметь либо отдельный вход из коридора или холла, либо вход из спальни для супругов. Площадь кабинета обычно составляет 8 – 10 м2. При размещении в кабинете библиотеки для хранения книг площадь увеличивается до 10 – 12 м2.
Кухня – помещение, предназначенное только для приготовления пищи. Проектируется в том случае, если в проекте предусмотрено отдельное помещение для приема пищи (столовая). Рекомендуемая площадь кухни 8 – 12 м2. Минимальный фронт оборудования должен иметь длину не менее 2,7 м. Столовая должна напрямую сообщаться с кухней, поэтому обычно эти помещения располагают смежно. Площадь столовой принимается 8 –12 м2. При использовании помещения кухни в качестве столовой (кухня-столовая) целесообразно увеличение ее площади до 10 – 15 м2 в зависимости от количества жилых комнат в доме
Передняя (прихожая) – основной распределительный узел квартиры, расположенный при главном входе в дом. Передняя обеспечивает связь между жилыми и хозяйственными блоками квартиры. Исходя из этого прихожую проектируют достаточно большой площади – 6 – 12 м2 (в зависимости от количества комнат в доме – см. табл. 2.3). Ширина передней должна быть не менее 1,4 м. В прихожей необходимо предусмотреть место для установки шкафов или запроектировать встроенные шкафы (глубиной 0,6 – 1,0 м) для хранения одежды. Коридоры, связывающие прихожую с жилыми помещениями квартиры, проектируются шириной «в свету» не менее 1,1 м, с хозяйственными – не менее 0,85 м. Санузлы должны быть расположены на каждом уровне (этаже) квартиры.
Постирочная (прачечная) особенно удобна в двухуровневых квартирах и обычно располагается на первом уровне при санузле. Площадь постирочной принимается в пределах 2 – 4 м2. Это помещение должно быть оборудовано раковиной и может иметь как отдельный вход, так и вход через смежный санузел. Часто в коттеджах проектируют сауну, расположенную либо в подвальном этаже, либо на первом уровне здания. Сауна обычно состоит из трех помещений: раздевалки (2 – 4 м2), душевой (2 – 4 м2) и парной (3 – 6 м2). При размещении сауны в пределах дома следует предусматривать мероприятия по теп-ло-, гидро- и пароизоляции всех смежных строительных конструкций. Спортзал предназначен для установки велотренажеров, беговых дорожек, силовых тренажеров и т.п. Обычно спортзал размещают на первом уровне квартиры из соображений защиты от шума других помещений дома. Площадь спортзала выбирается индивидуально.
Помещение бильярдной следует располагать в зоне дневной активности с входом из передней или гостиной. Площадь бильярдной составляет 20 – 25 м2, помещение должно иметь пропорции от 1:1,5 до 1:1,75. Помещение для установки домашнего кинотеатра размещают либо на первом уровне жилого дома в зоне дневной активности, либо в объеме мансарды. В первом случае соблюдается правило функционального деления здания на зоны. Однако из акустических соображений (непараллельные поверхности, высота «в свету» 3 – 4 м) часто подобные помещения располагают в мансарде, имеющей достаточную высоту и наклонный потолок. При этом необходимо предусматривать мероприятия по защите смежных помещений от шума. Площадь помещения для установки домашнего кинотеатра должна быть в пределах 20 – 30 м2.
При входе в здание следует проектировать тамбур глубиной не менее 1,2 м и шириной не менее 2,2 м Холодные кладовые – это неотапливаемые помещения, предназначенные для хранения продуктов, в холодное время используемые в качестве холодильника. Располагаются обычно при кухне с выходом из нее через двойную утепленную дверь. Холодная кладовая должна иметь глубину не менее 0,8 м, полки в ней должны устанавливаться таким образом, чтобы не препятствовать свободному входу в это помещение. Площадь холодной кладовой – от 2 до 6 м2 (см. табл. 3).
Гараж следует проектировать встроенным в объем здания, пристроенным к зданию или отдельно стоящим. Над встроенным гаражом нежелательно размещение спален и особенно детских комнат. Если проектируется встроенный или пристроенный гараж, то следует предусматривать отдельный вход в переднюю или другие помещения хозяйственного блока через двойную утепленную дверь или тамбур. Оптимальные внутренние размеры гаража 4,0×6,0 м, высота «в свету» должна быть не менее 2,0 м. В гараже обязательно предусматривается вентиляция (вентиляционный проем в стене или вытяжная труба, проходящая через кровлю). Помещение мастерской (6 – 10 м2) проектируют смежно с гаражом или в подвале под зданием
Летние помещения (веранды, террасы, балконы, лоджии) выполняют три основные функции: дополнительная теплоизоляция отапливаемых помещений (в том случае, если летние помещения имеют остекление); место занятий и отдыха; дополнительная площадь для хозяйственных и бытовых нужд. Ширина балкона должна быть не менее 0,9 м, ширина лоджии – не менее 1,2 м. Котельная – помещение для установки теплового агрегата, работающего на газовом или жидком топливе. Может быть расположено в первом или цокольном этаже здания, в подвале или в объеме чердака. Площадь котельной обычно составляет 4 – 6 м2. При этом помещение котельной должно иметь окно площадью не менее 0,03 м2 на 1 м3 объема помещения.
Рис. 7. Функциональная схема жилого одноквартирного дома с эскизным изображением планов этажей Функции: 1 – вход–выход; 2 – смена верхней одежды; 3 – связь (вертикальная и горизонтальная коммуникация); 4, 5 – гигиеническая; 6 – приготовление пищи; 7 – прием пищи; 8 – хозяйственная деятельность; 9 – активный отдых; 10 – пассивный отдых; 11 – работа с книгами и т.п.
Несущие и ограждающие конструкции зданий
Общий вид ленточного фундамента
Общий вид отдельностоящих фундаментов
. Общий вид сплошного фундамента
Общий вид свайного фундамента
Свайные фундаменты: а – со сваями-стойками; б – с висячими сваями: 1 – свая; 2 – ростверк; 3 – стена здания
Карта промерзания грунта России
Схема устройства фундаментов: а – в зданиях с подвалом; б – в зданиях без подвала:
Рис. 9. Конструкции сборных ленточных фундаментов: а – под наружные стены в здании без подвала; б – под наружные стены в здании с подвалом; в – под внутренние несущие стены в здании без подвала
Рис. 10. Конструкция отмостки: 1 – фундаментный стеновой блок; 2 – бетонный бордюрный камень размерами 150×60 мм
Наружные стены а – несущие; б – самонесущие; в – ненесущие (навесные)
Каменная стена трехслойной конструкции: 1 – внутренний несущий слой; 2 – слой теплоизоляции; 3 – воздушный зазор; 4 – наружный самонесущий (облицовочный) слой
Бетонные панели наружных стен: а – однослойная; б – двухслойная; в – трехслойная: 1 – конструктивно-теплоизоляционный слой; 2 – защитно-отделочный слой; 3 – несущий слой; 4 – теплоизоляционный слой
Сборно-монолитные наружные стены (в плане): а – двухслойная с наружным слоем теплоизоляции; б – то же, с внутренним слоем теплоизоляции; в – трехслойная с наружным слоем теплоизоляции
Схемы привязки кирпичных стен разбивочным осям здания:
Типы настилов перекрытий: а – сплошные; б – многопустотные; в – ребристые; г – двухконсольные типа 2Т
Покрытия
Организация водоотвода с крыш: а – наружный водоотвод; б – внутренний водоотвод: 1 – скат; 2 – конек; 3 – ребро; 4 – ендова (разжелобок); 5 – водосборный лоток; 6 – водоприемная воронка; 7 – парапет
Основные виды скатных крыш: а – односкатная; б – двухскатная; в – четырехскатная вальмовая; г – четырехскатная полувальмовая; д – многоскатная
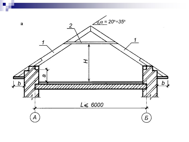
Основные несущие конструкции скатного покрытия: а – общая схема: 1 – опорный брус (мауэрлат); 2 – стропила; 3 – стойка; 4 – подкос; 5 – коньковый брус; 6 – лежень; 7 – наружные стены здания; 8 – внутренняя несущая стена; б – устройство обрешетки по стропилам: 1 – стропила; 2 – обрешетка из брусков; 3 – разреженная обрешетка из досок; 4 – сплошная обрешетка из досок; 5 – двойная обрешетка из досок
Рис. 15. Конструктивные схемы скатных крыш: а – с висячими стропилами; б – с наслонными стропилами; в – с наслонными стропилами переменного уклона (35°÷60°); г – с наслонными стропилами переменного уклона (60° ÷ 70°): 1 – стропильная нога; 2 – ригель; 3 – стойка; 4 – подкос
Рис. 16. Схемы расположения теплоизоляции в чердачном пространстве жилого дома: а – при неотапливаемом (нежилом) чердаке; б – при отапливаемой (жилой) мансарде
Рис. 17. Узел сопряжения скатной крыши и наружной стены жилого дома с мансардой: 1 – мауэрлат (опорный брус сечением 150×150 мм); 2 – стропильная нога (доска сечением 200×50 мм, поставленная на ребро); 3 – кобылка (доска сечением 100×32 мм, поставленная на ребро); 4 – подшивка карниза (доски сечением 100×25 мм); 5 – карнизный щит (доски сечением 150×50 мм); 6 – обрешетка (брусья сечением 50×50 мм); 7 – кровля
Номенклатура и габариты проемов окон и балконных дверей в наружных стенах жилых и общественных зданий
Номенклатура и габариты проемов в стенах и перегородках для внутренних деревянных дверей жилых, общественных и производственных зданий
Номенклатура и габариты проемов для наружных деревянных дверей жилых, общественных и производственных зданий
ПОЖАРНАЯ БЕЗОПАСНОСТЬ Одноквартирные жилые дома относятся к классу Ф 1.4 функциональной пожарной опасности меры по предупреждению возникновения пожара, обеспечению возможности своевременной эвакуации людей из дома на прилегающую к нему территорию, нераспространению огня на соседние строения и жилые блоки
Каждый дом (жилой блок) должен иметь минимум один эвакуационный выход непосредственно наружу, в том числе на лестницу 3-го типа В домах высотой два этажа в качестве эвакуационных допускается использовать внутренние открытые лестницы (2-го типа), а также винтовые лестницы и лестницы с забежными ступенями. В домах высотой 3 этажа открытые внутренние лестницы допускается рассматривать как эвакуационные, если для выхода по ним наружу следует подняться или спуститься не более чем на один уровень (этаж).
Если в этих домах для выхода с верхнего этажа наружу необходимо спуститься на два уровня (этажа), то открытые внутренние лестницы допускается рассматривать как эвакуационные только при соблюдении одновременно следующих условий: а) каждое помещение, которое может быть использовано для сна, должно иметь не менее одного окна, расположенного на высоте не более 1 м над уровнем пола; б) указанные помещения должны иметь выход непосредственно в коридор или в холл с выходом на балкон; в) высота расположения упомянутых окон и балкона над уровнем земли должна быть не более 7 м.
Смежные жилые блоки следует разделять глухими противопожарными стенами с пределом огнестойкости не менее RЕI 45. Блокированные дома классов конструктивной пожарной опасности С2 и СЗ дополнительно должны быть разделены глухими противопожарными стенами 1-го типа по СНиП 21-01 с пределом огнестойкости не менее RЕI 150 и класса пожарной опасности не ниже КО на пожарные отсеки площадью этажа не более 600 м2, включающие один или несколько жилых блоков.
При проектировании и строительстве блокированных домов должны быть приняты меры для предупреждения распространения огня на соседние жилые блоки и пожарные отсеки, минуя противопожарные преграды. Для этого противопожарные стены должны пересекать все конструкции дома, выполненные из горючих материалов. При этом противопожарные, разделяющие дом на пожарные отсеки, должны возвышаться над кровлей и выступать за наружную облицовку стен не менее чем на 15 см, а при применении в покрытии, за исключением кровли, материалов групп горючести ГЗ и Г4 - возвышаться над кровлей не менее чем на 60 см и выступать за наружную поверхность стены не менее чем на 30 см. Противопожарные стены, разделяющие жилые блоки дома, могут не пересекать кровлю и наружную облицовку стен при условии, что зазоры между противопожарной стеной и кровлей, а также между противопожарной стеной и облицовкой стены плотно заполнены негорючим материалом на всю толщину противопожарной стены.

